-
项目定位:希望呈现一个不同于calligaris品牌在中国区域原有的店面形象。calligaris在亚洲区域的店面统一采用一种深灰色调为主的搭配,业主觉得这种暗调并不符合现下客户的进店愿望。另外业主希望在该店面能同时设置一个专业的提案室空间作为客户接待的需求。
-
空间意境:现场位于广州番禺吉盛伟邦家具馆的F馆,属于整个商场的末端区域。优点是拥有大面的户外幕墙带来的自然采光,不足之处是末端位置导致的客流不足。
-
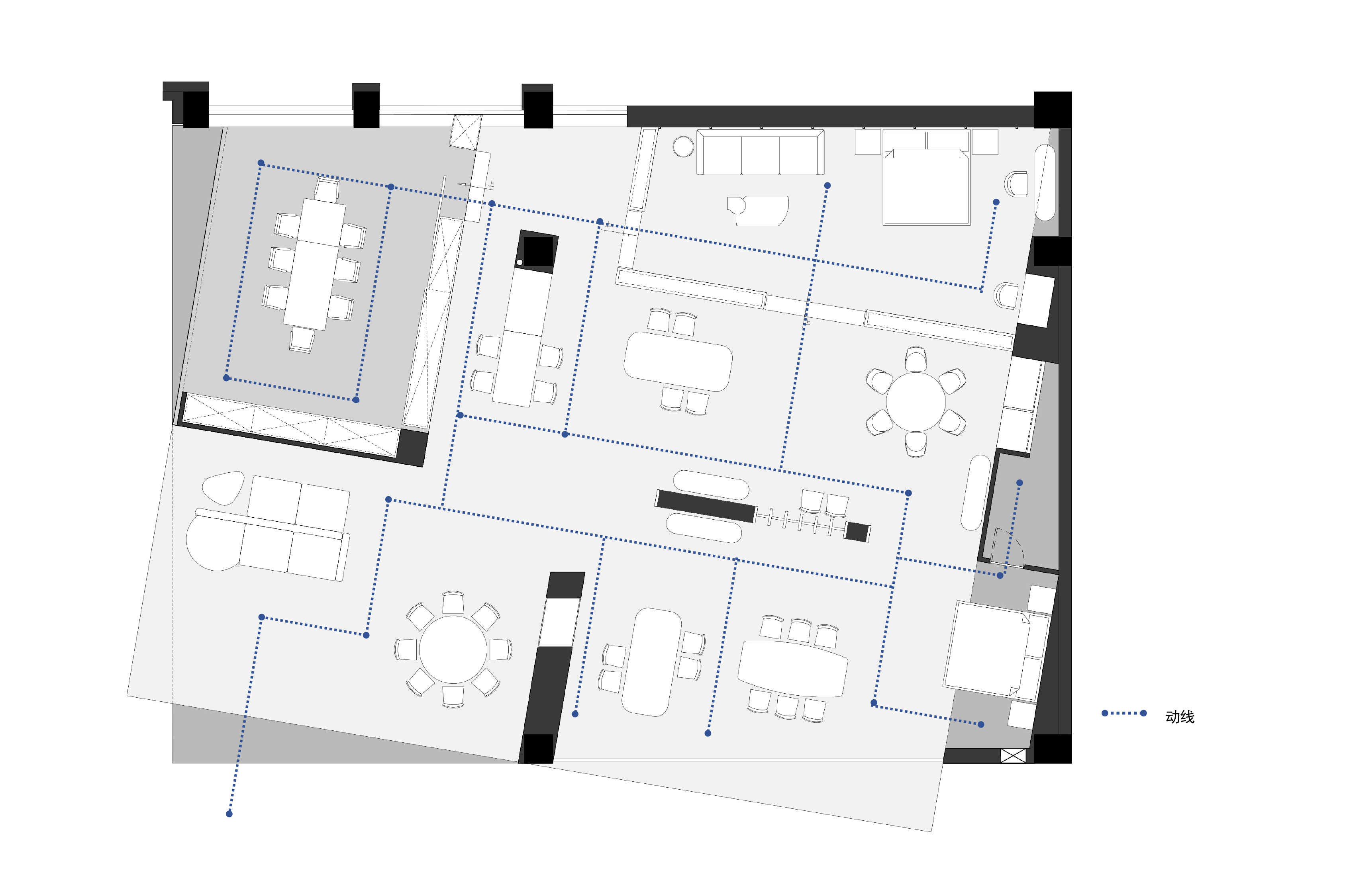
空间布局:Calligaris广州旗舰店落于家居馆端头的特殊区位,在享有天然采光优势的同时,也面临着动线末端流量衰减的局限。基于此,设计运用10°的立面旋转,以斜向切割的空间语言,在规整的商业环境中形成强烈的视觉标识,其动态张力自然吸引远端的客流视线。Calligaris的基因里,一贯蕴含着打破常规的巧思。在其广州旗舰店的全面焕新中,简美设计以品牌标志性的旋转收缩台为设计原点,通过立面10度的精确偏转突破场地局限,让空间设计与产品哲学形成精巧呼应,在材质、光影与动线的多重维度下,完整呈现了意式家具特有的美感与灵动。
-
设计选材:Calligaris广州旗舰店落于家居馆端头的特殊区位,在享有天然采光优势的同时,也面临着动线末端流量衰减的局限。基于此,设计运用10°的立面旋转,以斜向切割的空间语言,在规整的商业环境中形成强烈的视觉标识,其动态张力自然吸引远端的客流视线。Calligaris的基因里,一贯蕴含着打破常规的巧思。在其广州旗舰店的全面焕新中,简美设计以品牌标志性的旋转收缩台为设计原点,通过立面10度的精确偏转突破场地局限,让空间设计与产品哲学形成精巧呼应,在材质、光影与动线的多重维度下,完整呈现了意式家具特有的美感与灵动。
-
用户体验:空间简洁,内容丰富,展陈自由度很高。提案室尤其专业。很好的商业空间。
0
0

认证 · 让您身份增值
134