圆融
229
作品说明
- 项目类型:别墅
- 项目地点:南京市
- 建筑面积:520㎡
- 项目造价:600万元
- 主案设计师: 宣韩冬
- 竣工时间:2025年3月
- 设计机构:南京形册空间设计事务所
票数 : 0
-
项目定位:该项目以 “三代共融” 为核心定位,以居者需求为根本,通过精准洞察不同代际生活与精神诉求,打造专属且兼具成长适配与审美价值的独特空间。
关键定位亮点
核心导向明确:摒弃设计师个人风格植入,坚守 “以居者为本” 的核心原则。
代际需求融合:聚焦三岁宝宝成长核心,兼顾祖辈安宁与父母审美,实现三代诉求的深度契合。
场景专属打造:基于居者日常轨迹与精神世界的细腻洞察,构建滋养童年、安放岁月的专属生活场景 -
空间意境:该作品以 “打破风格局限、适配居者需求” 为核心,在环境风格上实现创新性融合表达。摒弃单一风格的束缚,将现代极简的大气质感作为基底,以温暖柔和的色调铺垫空间温度,更通过吊顶圆形元素、拱形门洞的巧思植入,让整体空间在简约中透着灵动韵律,既满足实用需求,又赋予环境独特的视觉层次与呼吸感。
-
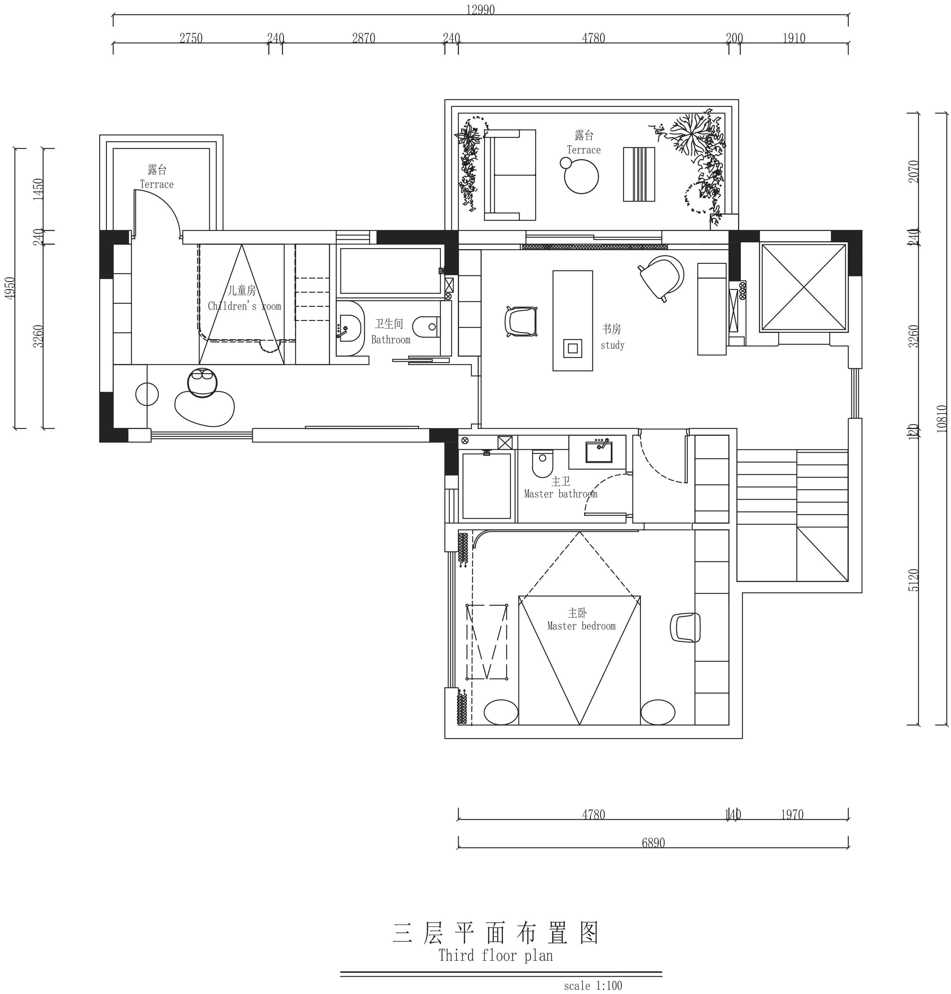
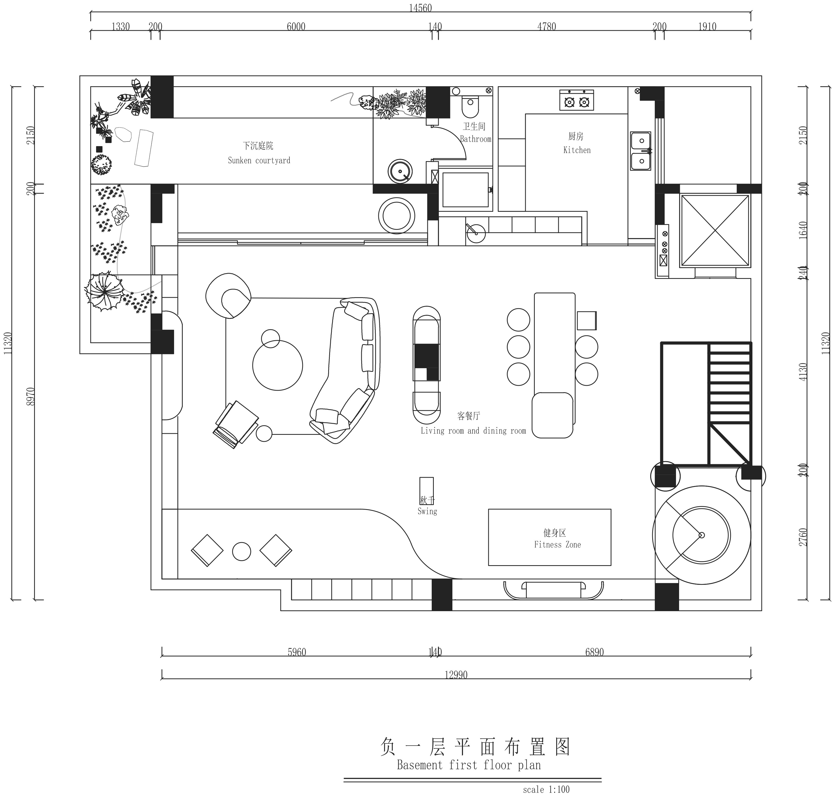
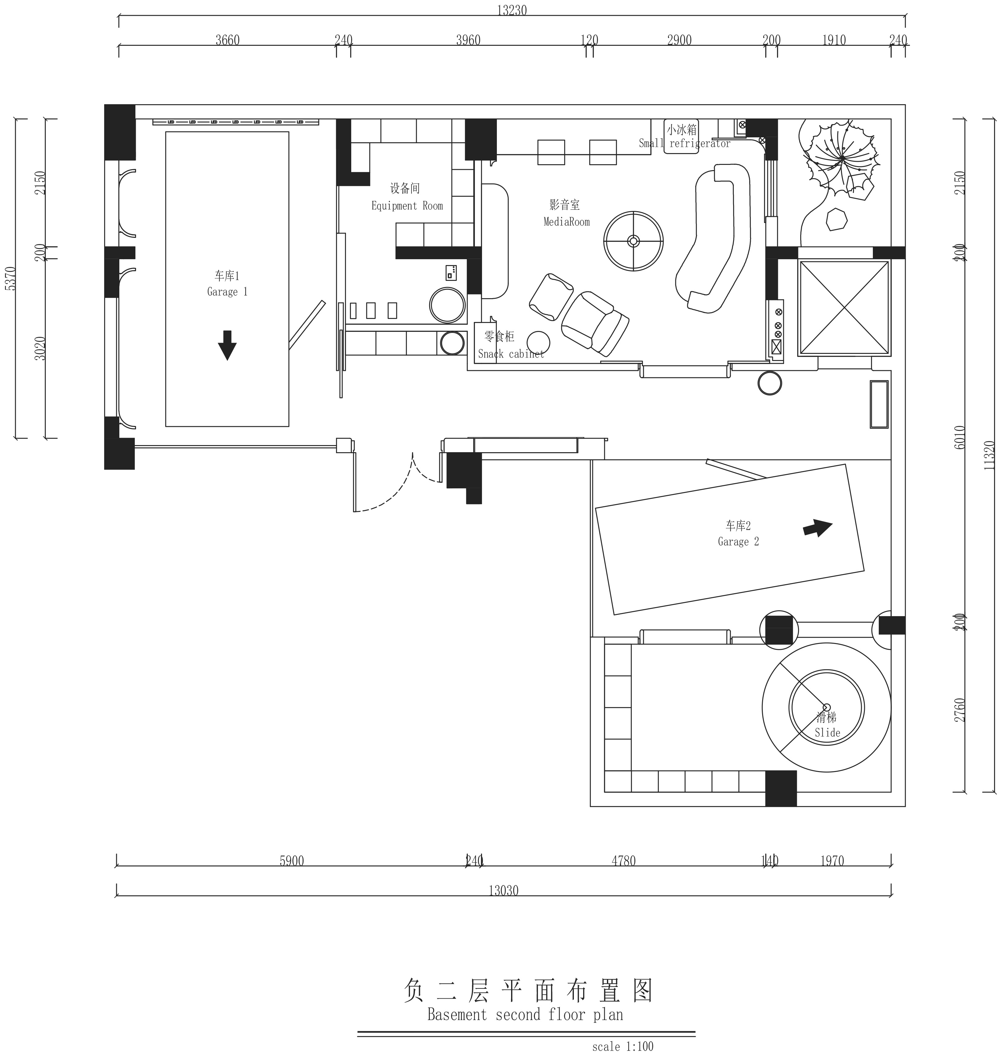
空间布局:该作品以 “适配三代需求、优化空间效能” 为核心,在布局上实现突破性创新,让户型结构与居者生活高频场景精准匹配。
空间布局创新亮点
核心功能下沉:打破传统户型功能分布逻辑,依托负一层最大面积优势,将客厅、餐厅、中厨、西厨等核心活动区集中布局,同时采用全开放设计,既契合 3 岁宝宝自由穿梭的玩耍天性,又能让大人在料理、休憩时随时照看孩子安全。
精神空间聚焦:抢占一层最佳采光区域,专属打造家庭图书馆,精准满足全家精神滋养需求,实现功能与体验的双重兼顾。
动态空间预留:将二层、三层卧室区域设定为可变动布局,前瞻性适配宝宝不同成长阶段的使用需求,让空间具备长期适配性。
-
设计选材:该作品在设计选材上以 “低碳环保为核心、经济适配为准则”,实现实用性与可持续性的双重创新,让选材既贴合三代共融的生活需求,又兼顾环保责任与成本优化。
选材创新亮点
低碳材料优先:聚焦绿色环保理念,优先选用低甲醛、可回收、低碳排放的环保建材(如生态板、再生石材、环保涂料等),从源头减少室内污染,契合老人与幼儿的健康需求,同时降低环境负担,践行可持续设计理念。
高性价比适配:摒弃 “高价即优质” 的选材误区,精准平衡材料性能与经济成本 —— 核心生活区域选用耐磨、易清洁、耐用性强的高性价比材料(如防滑地砖、耐污墙面材料),兼顾日常高频使用需求与后期维护经济性;非核心区域合理搭配实用型材料,在控制预算的同时不降低居住质感。
功能与环保兼顾:选材既注重低碳属性,又紧扣空间功能需求,例如宝宝活动区域选用防滑、防撞且环保的软质材料,老人常用区域优先考虑防滑、易打理的环保石材,既保障居住安全,又避免环保与实用的失衡,实现 “低碳不降配、经济不廉价” 的选材目标。 -
用户体验:投入使用后,空间布局与选材的创新设计完全贴合三代人的日常需求 —— 负一层全开放核心区成为家庭活力中心,3 岁宝宝可自由奔跑玩耍,大人在料理、会客时视线无遮挡,随时响应孩子需求,既保障了幼儿安全,又不束缚大人活动。同时,高性价比材料的耐磨、易清洁属性完全适配家庭高频使用场景 —— 宝宝涂鸦的墙面、频繁踩踏的地面,只需简单擦拭即可恢复整洁,后期维护省时省力,大大降低了生活成本。
用户真实评价反馈
业主(父母):“最惊喜的是设计完全落地了我们的需求!负一层的开放布局让我们既能做饭又能看着孩子,环保材料用着放心,孩子在家赤脚跑、随意涂鸦都不怕,而且选材性价比很高,预算没超还兼顾了质感,住了一年多,空间依旧实用,完全没有‘过时’或‘用着不方便’的问题。”
祖辈:“现在在家待着特别舒心,地面防滑、墙面摸起来温润,没有刺鼻味道,平时在客厅晒太阳、看孩子玩耍都很安全,打扫起来也简单,不用费太多力,这样的房子住着踏实。”
间接反馈(亲友探访评价):“每次来都觉得这个房子特别‘懂生活’,大人孩子都能找到自己的空间,材质看着舒服又耐用,听说还很环保经济,完全打破了‘三代同堂拥挤’‘环保装修贵’的固有印象,值得参考!”
0
0

认证 · 让您身份增值