归心·喧嚣中的宁静
10
作品说明
- 项目类型:住宅公寓
- 项目地点:济南市
- 建筑面积:285㎡
- 项目造价:120万元
- 主案设计师: 夏乐
- 竣工时间:2025-04
-
项目定位:在都市的喧嚣日常中,我们致力于为业主营造一处温暖、宁静、放松的自然栖居。我们不仅构建空间,更构筑一种回归本真的生活方式,让每一次归家,都成为身心安顿的疗愈之旅。
-
空间意境:在美式风格的基调上,我们摒弃繁复的装饰纹样,保留其经典的结构线条与标志性元素,并融合当代中国的生活习惯与审美需求,为业主打造一个既舒适自在、又贴合个人气质,不囿于固定风格标签的居住空间。
-
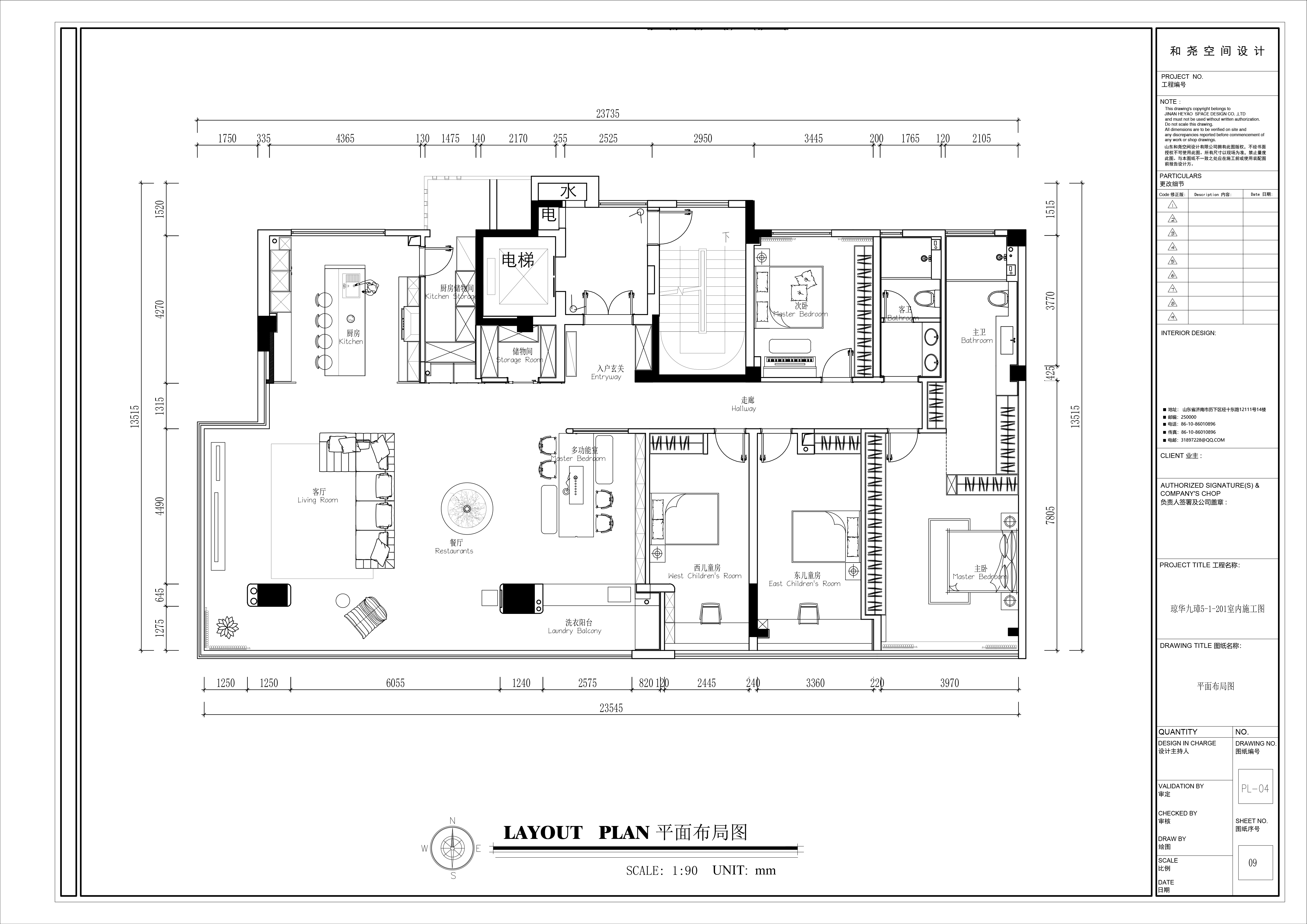
空间布局:为优化空间功能与生活动线,我们对布局进行了系统性整合:
1、南向L型露台被纳入公共区域,形成连贯的室内外生活场景,拓展了采光与活动范围。
2、厨房与原小餐厅合并为开放式餐厨区,增设中央岛台,增强互动与操作空间。
3、将部分空调机位的外部空间纳入室内,改造为厨房专属的储物与收纳区域,进一步优化了空间利用率。
4、入户花园玄关改造为多功能复合空间,兼顾儿童绘画、主人茶叙与亲友接待。
5、将儿童房卫生间调整至原北卧旁的小衣帽间位置。这一改动既释放了老人房与儿童房的使用面积,显著提升了空间的宽敞感与居住舒适度,
也优化了整体布局的结构合理性,进一步提高了空间利用率。
6、主卧区域将卫生间与衣帽间做开敞一体化设计,提升空间通透感与储物效率。 -
设计选材:墙面设计摒弃了繁复的线条墙板,采用PU线条结合蛋壳光艺术漆的简约形式。这一做法不仅降低了基层板与墙板带来的材料浪费与造价成本,还在保证视觉效果优雅呈现的同时,提升了空间的环保性与居住舒适度。所有主要材料均具备低维护、耐磨损、易清洁的特性,体现了我们秉持的“长效设计” 理念——不盲目追随潮流,拒绝使用易过时的材料,从而让空间在历经时间沉淀后,愈发散发出从容、宁静的美感。
-
用户体验:客户入住后,每个家庭成员都对新家的设计表达了高度满意。入住三个月以来,大家依然会在不同时间、不同季节,不经意间发现空间中新的角落与光影细节——这个家仿佛拥有一种持续生长的生命力,不断带来惊喜与滋养。居住于此,身心的放松感与归属感尤为深刻,真正实现了我们对“家”的期待:一个能让人彻底卸下疲惫、感受温暖与自在的治愈空间。
0
0

认证 · 让您身份增值