大都会-花山碧园桃花源
0
作品说明
- 项目类型:住宅公寓
- 项目地点:武汉市
- 建筑面积:300.0000㎡
- 项目造价:300.0000万元
- 参与设计师:孔鑫
- 竣工时间:2021.6
- 设计机构:武汉聆宁设计有限公司
-
项目定位:本案定位为 “都市轻奢生活艺术馆” 。设计不仅遵循法式美学的优雅基因,更聚焦于现代都市家庭的实际生活需求,进行前瞻性的功能策划。核心定位在于:在合规的结构优化基础上,重塑空间动线与功能分区,将严谨的法式线条与自由的当代生活方式深度融合,打造一个既能承办家庭艺术沙龙、又充满日常烟火气的复合型生活场景,实现从“居住容器”到“情感与体验发生器”的升级。
-
空间意境:作品在环境风格上的创新点在于 “法式秩序的当代化解构”。摒弃传统法式的繁复与厚重,保留其经典的比例与线条符号(如回字型墙板、装饰线条),并注入现代简约的块面语言。创新性地通过打通客厅与外廊道,引入“钢琴艺术角”,将自然光景、琴声与室内氛围融为一体,使法式浪漫从视觉延伸至听觉与情境体验,营造出兼具画廊般艺术感与家庭厅温馨感的独特场景。厨房区域的中西分治,则创造了从快速简餐到慢享烘焙的多样化生活场景。
-
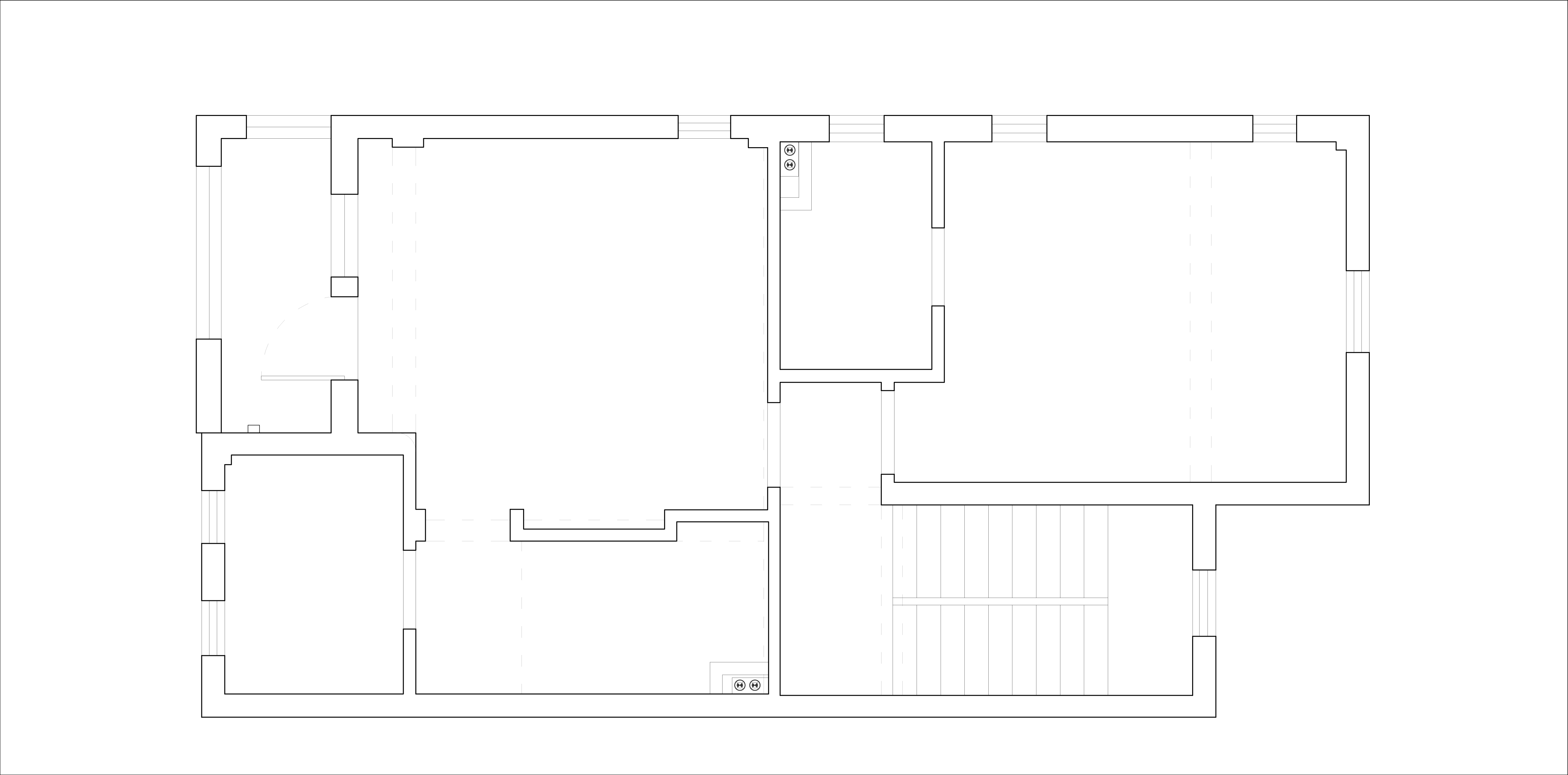
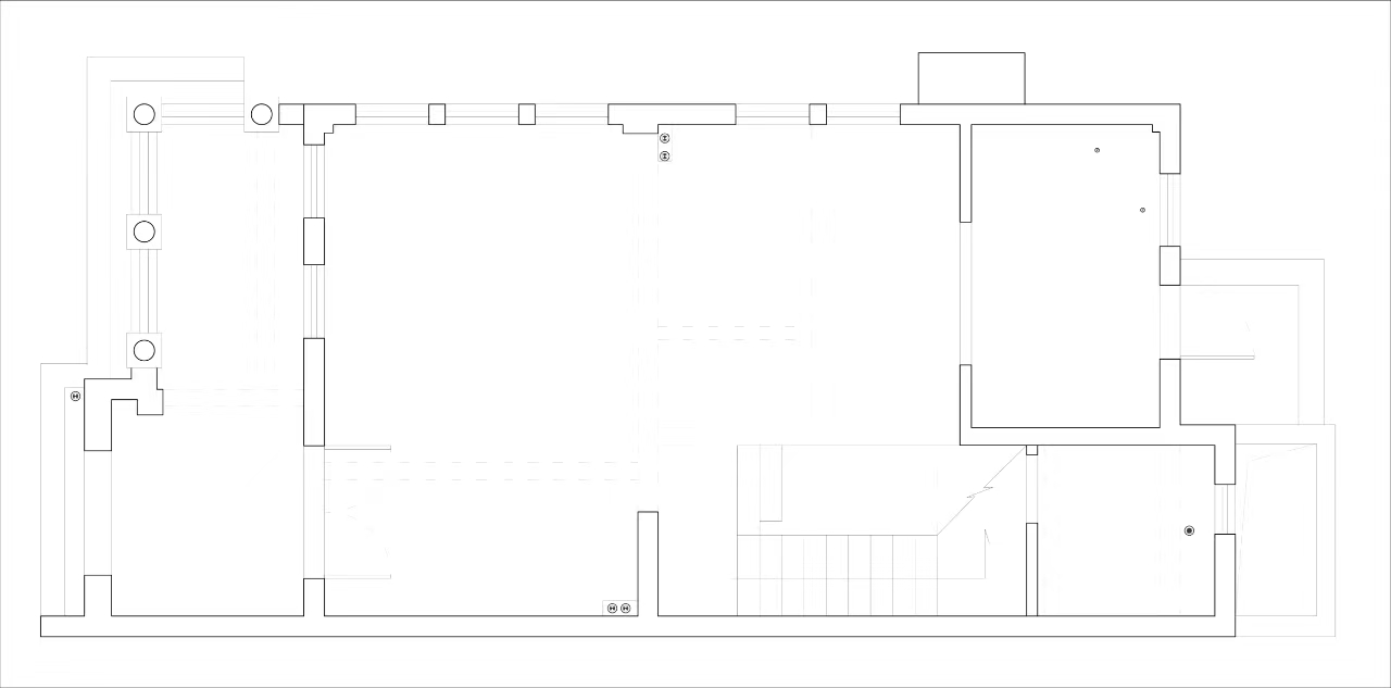
空间布局:布局上的核心创新是 “功能性重组与流动式渗透”。
门厅扩容与动线再造:在合规前提下调整入户方向并扩充门厅,结合满墙的步入式储物系统,形成强大的收纳内核和归家仪式感的序厅。
公区一体化与焦点创造:大胆将客厅与外部廊道打通,拓展出专属的三角钢琴区,不仅优化了采光与视野,更使钢琴成为家庭生活的视觉与精神焦点,促进家庭成员间的互动与艺术熏陶。
厨房功能精细化分割:明确分割中厨与西厨,并增设独立西厨柜体系统,实现了油烟区与开放式料理、社交区的清晰分离,弥补了单一中厨的功能局限,满足了多元化的餐饮需求。 -
设计选材:选材策略强调 “质感叠搭、环保耐久与经济性的平衡”。
-
用户体验:用户反馈空间“明亮通透、充满艺术气息,同时又非常实用”。玄关的超大储物容量彻底解决了家庭收纳难题;钢琴区成为家庭成员最喜爱的休闲与亲子互动角落;中西分厨的设计让烹饪从家务变为乐趣,尤其受到热爱烘焙与招待朋友的家庭成员的赞赏。
门厅的简约定制鞋帽柜,既满足储物功能又达到了轻法的效果。搭配了法式线条在空间中的描绘,白色作为基调营造出了温和优雅而朴实的空间氛围
硬装上采用轻法式设计,轻奢质感用金色点缀,整体氛围精致大气。
餐桌椅用明亮的色彩提升了整体空间的时尚感与年轻活泼的氛围质感
餐厅与厨房一体同时拥有中厨和西厨的功能,一体的壁大大增加了厨房的收纳,酒柜在餐桌旁,整体颜色简洁,营造一种自由放松的氛围,轻奢风格家具重点强调优雅,舒适温馨的感 觉,所以在选择餐桌餐椅方面会较为讲究
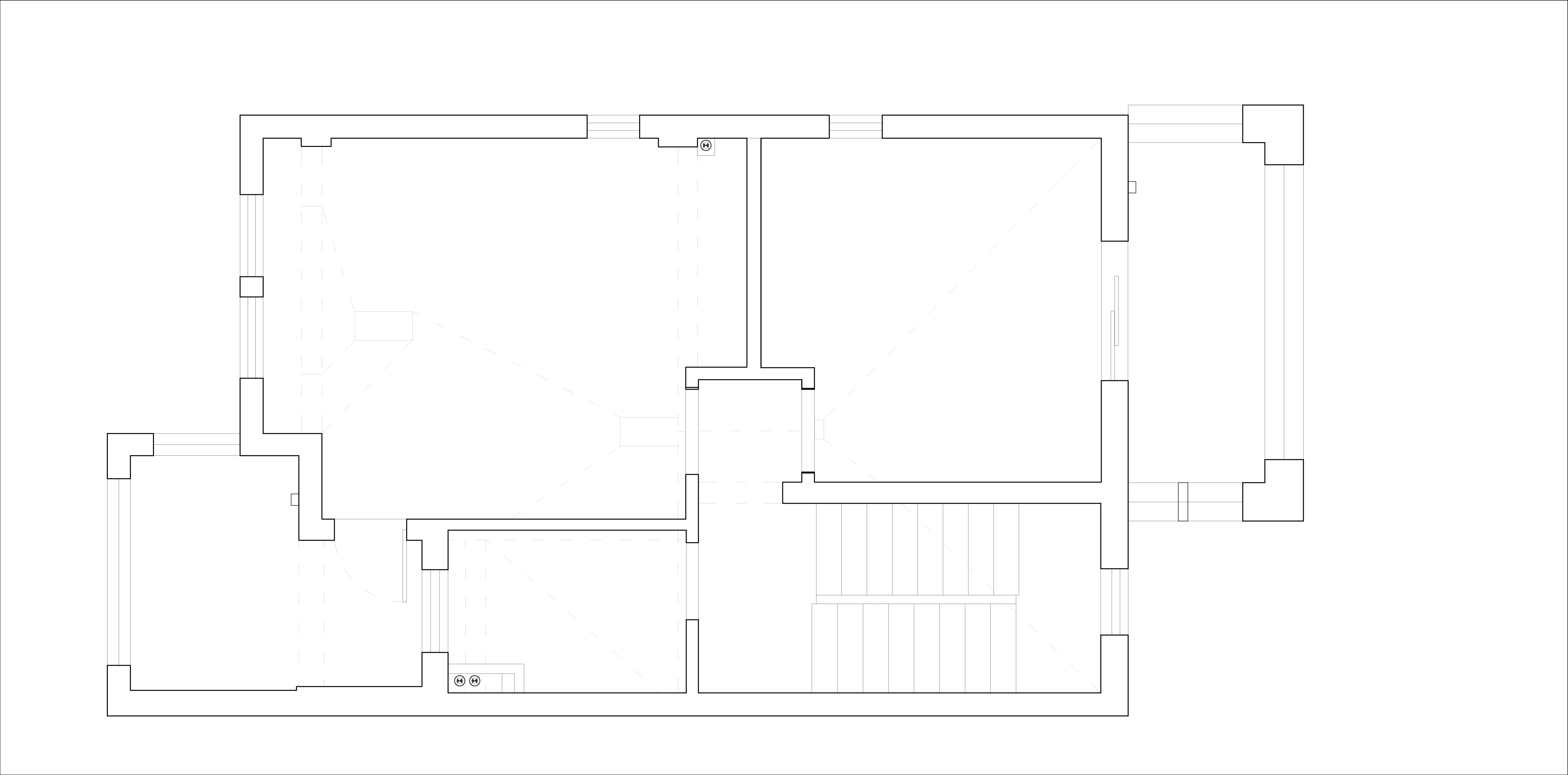
步入二楼空间,重新规划空间,充满法式独有风格的线条回字型墙板,让过道有彰显品质生活的一部分。
非常有艺术感的床品布艺装饰空间,床头台灯散发出柔和的光芒,营造出温馨优雅的卧室氛围。
柔和的线条温润的灯光,精致与慵懒结合的恰到好处简约别墅在初夏品味着一丝凉爽的浪漫情怀
设计师选用经典的白作为浴室空间的主色调,打造具有极简气息的空间。半墙理石砖围绕浴缸,金属线条分割收口使空间的功能分区变得更为奢华,部分墙面与顶面是防水乳胶漆,同色延伸上顶,使空间显得高。
一层门厅在合规修建的情况下,进行了扩充和入户方向的调整。分割除了中厨与西厨的厨房布局,同时增设了一组西厨柜,弥补了中厨功能的不足。 客厅与外廊道打通,拓展出了三角钢琴空间,采光和视野更显通透。 入户玄关及过道做了大量的满墙柜,满足储物功能的同时也充满步入式的仪式感。
0
0

认证 · 让您身份增值