宅中有院
8
作品说明
- 项目类型:住宅公寓
- 项目地点:佛山市
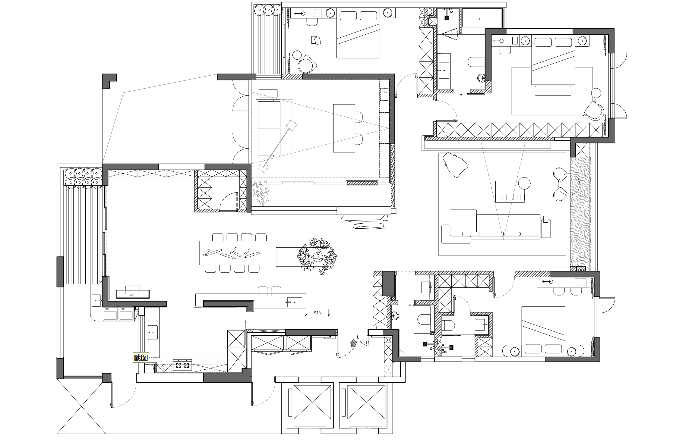
- 建筑面积:340㎡
- 项目造价:350万元
- 参与设计师:宅中有院
- 竣工时间:2024.11
- 设计机构:301设计
-
项目定位:年轻人的第二居所,注重自我审美及精神世界的表达,空间还要具备社交场景
-
空间意境:在大平层中植入宅中有院为营造理念,让场景融入自然元素,松弛、自然、悦已的状态
-
空间布局:把原本在北向的客厅改到了南向为主要的起居空间
-
设计选材:选用实木或者天然石材为主,大面积的地面选用了一款仿的木纹砖也非常自然,还有岩板台面选择了自然机理感
-
用户体验:客户入住体验后很喜欢,亲朋好友相聚时推荐了几个好友找我们
业主职业为酒店管理,出于见多识广,想为自己打造一个与众不同的家。值此契机我们定位不只是设计一个舒适自然的人居场所,而是挖掘空间的更多可能性,打造一个复合可持续、多变有想法的第二居所。 在设计中追求开放行也追求更加质朴纯粹的调性,在空间配色中局部以深色凸显出木的温润,将原木质感发挥到极致。任意一隅定格,皆是生动的取景框。 借框取景,重新梳理内外关系,在家中打造一方院景——“宅中有院”,融入光、石、木、竹、等元素,营造出细腻隽永的气质。 空间尽量以深色与木色为主,尽可能的将线条与体块进行简化,整个空间无形中形成一种舒服而克制的平衡。 侘寂美学,表面上看是不加修饰的美感,内在则讲究纯净、返璞归真的精神修养。 多功能室,在空间的表达上以“极简”为主,顶墙地面色调一致,通过少之又少的家居装饰,以木的质朴与石的斑驳,带来内心的满足与宁静。
0
0

认证 · 让您身份增值