空间的独白
310
作品说明
- 项目类型:住宅公寓
- 项目地点:福州市
- 建筑面积:72㎡
- 项目造价:43万元
- 主案设计师: 于旭辉
- 参与设计师:于旭辉
- 竣工时间:2025年4月
- 设计机构:纵远联行设计
票数 : 25
-
项目定位:作为设计师 我们一直相信&家不只是居住的地方更是一个人气质与生活方式的延伸。 当她一位在日本生活10年的插画师、找到我们时我第一反应是这个家需要像她的作品一样有温度、有故事。
在色彩的选择上我们为她定下了原木与暖白的基调。
原木能带来触觉上的温润感暖白则让空间像被光轻轻包裹。
这种配色既不会分散注意力又能成为承载创作的安静,背景就像画布上的底色包容一切色彩的可能。
这是一个安静的背景让生活和创作自由生。 -
空间意境:原木能带来触觉上的温润感暖白则让空间像被光轻轻包裹。
这种配色既不会分散注意力又能成为承载创作的安静,背景就像画布上的底色包容一切色彩的可能。
这是一个安静的背景让生活和创作自由生。
她的创作离不开光我们让光在家中自由流动。 我们让所有的窗与隔断都互相链接能透光、能呼吸。 窗与隔断采用透光材料与玻璃的透光设计让光线不被截断也不刺眼。 无论在厨房、 客厅还是工作室& 她都能感受到从清晨到傍晚的光影变化。
推开门光和空气都在缓慢流动。 -
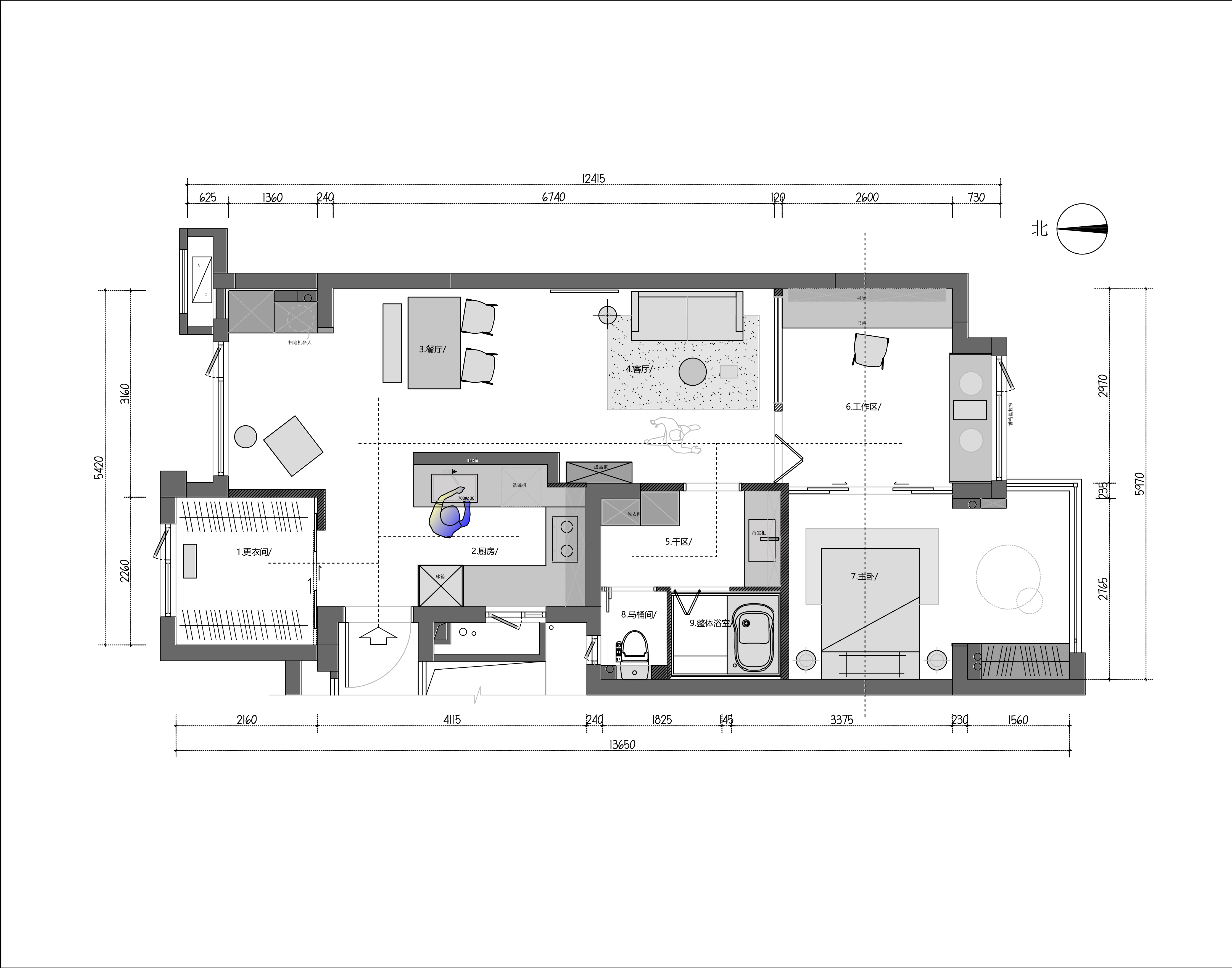
空间布局:屋主是一个在日本呆过十年的插画师
根据业主的空间需求
设计师将原本的三居室的房子 改为一居室且兼顾书房
将原来封闭的厨房空间改造为开放式厨房更好的和客餐厅融合起来为一体空间
把原本卫生间位置改为三分离 同时 置入整体浴室满足屋主对于洗浴的特殊需求
在空间材料中柜体部分我们运用大面积 天然木头的纹理来给整个空间增加温润的自然感 墙面我们采用墙顶一体特殊纹理感的艺术漆 更好的衬托空间整体气质和氛围 -
设计选材:玄关的左侧是障子纸材料的推拉门 门后的衣帽间 原木隔板整排列开放式设计让呼吸感延续到最细处。 右侧的开放式厨房与客餐厅相邻烹饪与交谈的边界被柔化。
客餐厅里一张沙发一盏暖灯、 一张边几⸺这里没有多余的色彩与物件就像画布上的留白给呼吸和梦境留出足够的空间。沙发安静地落在原木底座上 边几、 餐桌、都是温润的木色。
插画师的工作台是宽大的原木桌子墙面装有隔板画材、 手作小物、 灵感速写都可以自然陈列。 这里 既是她的创作基地也是生活中最灵感涌动的⻆落。 -
用户体验:舒适 放松 自然 让空间回归本质 让屋主享受空间
客厅/客餐厅里一张沙发一盏暖灯、 一张边几⸺这里没有多余的色彩与物件就像画布上的留白给呼吸和梦境留出足够的空间。沙发安静地落在原木底座上 边几、 餐桌、都是温润的木色。
书房/插画师的工作台是宽大的原木桌子墙面装有隔板画材、 手作小物、 灵感速写都可以自然陈列。 这里 既是她的创作基地也是生活中最灵感涌动的⻆落。
卧室/工作室与主卧之间由一扇推拉门相连。 推开后原木与暖白的基调依旧延续。 没有过多装饰只有一张床、 一盏柔光台灯和一扇落地窗⸺夜晚的微风和清晨的阳光都是温润日常的一部分。
客厅/
休闲区
书房/工作室与主卧之间由一扇推拉门相连。 推开后原木与暖白的基调依旧延续。 没有过多装饰只有一张床、 一盏柔光台灯和一扇落地窗⸺夜晚的微风和清晨的阳光都是温润日常的一部分。
客厅
卧室
卧室
餐厅
厨房
干区
厨房
客厅
卧室
平面布置图
1
1

认证 · 让您身份增值