绮梦·秘境
0
作品说明
- 项目类型:住宅公寓
- 项目地点:九江市
- 建筑面积:110㎡
- 项目造价:30万元
- 主案设计师: 罗佑南
- 参与设计师:王贤树
- 竣工时间:2025.1
-
项目定位:轻法式风格的家,摈弃传统法式的繁复奢华,以简约笔触勾勒优雅轮廓,用温柔色调晕染慵懒氛围,将空间的艺术气息与生活的温度完美融合。
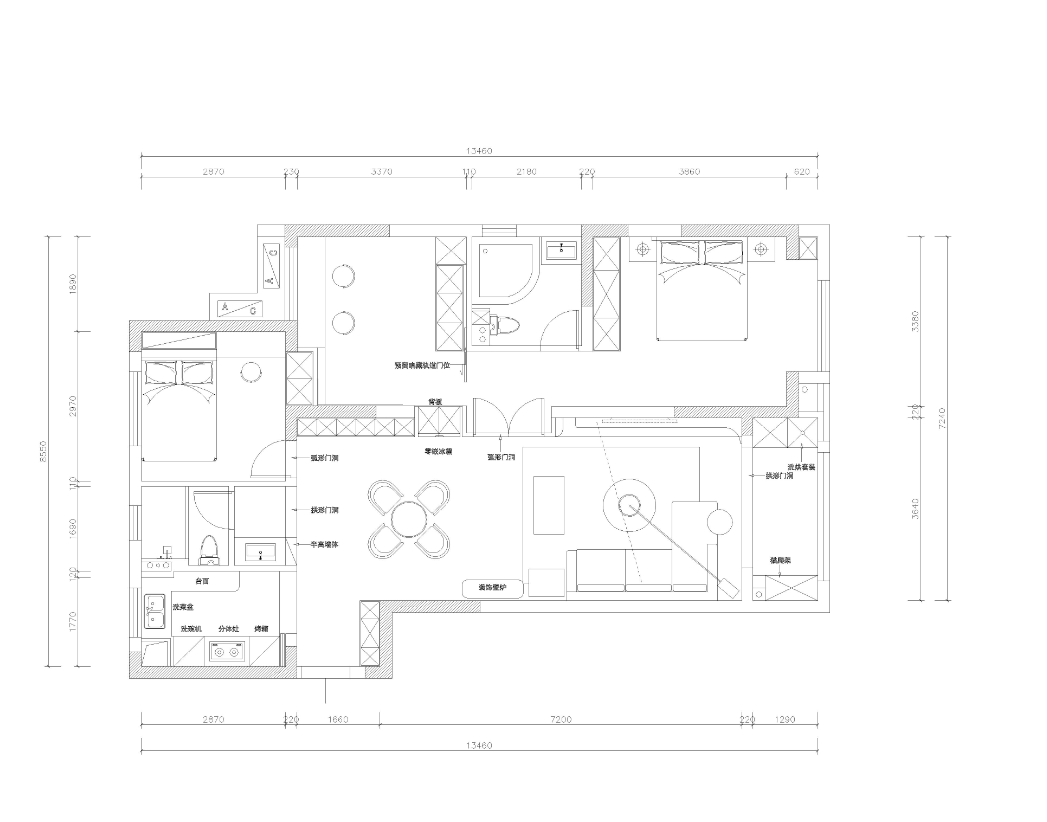
本案位于滨江凯旋城,基于对居者的喜好及实际需求的考虑下,设计师将其原本格局进行优化,将三房改成两房,同时扩大公共区域,保护空间隐私的同时也有了更多场景实现的可能性。 -
空间意境:1.当门霏轻启、柔和的光线如丝缕般倾泻而出,轻轻将人引入那浪漫与优雅交织的充满故事性的客厅。纯白的墙面纯净无瑕、精致线条勾勒其上似雪落的细腻痕迹。那一抹绿藏着复古神秘和深邃,二者在空间中碰撞,奏响视觉的美妙和弦。不同色系的沙发与单椅相互凝望,似在呢喃着那浪漫的情话。花瓣造型的落地灯,散发暖黄色光芒,于角落晕染出一室温馨,恰似塞纳河畔永不消散的温柔暮霭,将时光都染上了诗意。
2.黑色拱形门如同时光的画框,框起空间中的优雅与浪漫;电视背景墙简约大气似无言的诗篇,浪漫与质感在此刻拉满。这里,是法式浪漫诗意的具象呈现,亦是居者日常生活的舞台,每一寸空气都弥漫着独有的氛围,让人久久沉醉其中不愿醒。
3.夜暗方显一颗星、灯明方显一缕尘。”经典黑色壁炉、火焰跃动间,暖意与氛围感满溢。壁炉之上,花卉图案装饰画与精致摆件相映成趣,每一处细节都诉说着法式的细腻与考究。推开黑色镶金的门,空间豁然开朗,黑与白的碰撞,简约与精致的融合,是法式独有的魅力,于无声处,将优雅与格调娓娓道来。 -
空间布局:1.原有次卧的开门方向朝向了公共浴室柜区域,使用时不仅动线局促且隐私得不到保障,因此设计师对房屋结构进行精准测绘与分析,基于结构安全以及空间最大化的原则,将其重新规划至客餐厅区域。
2.原厨房面积偏小,设计师巧妙借用公卫区域,重新规划布局、为烹饪操作提供更加充裕的施展空间。同时充分挖掘衣帽间潜在空间,将冰箱巧妙嵌入酒柜区域,打造一体化的收纳展示系统。
3.根据居者的实际使用需求,设计师将原本三房格局勾勒出两房的惬意天地,墙体拆除后释放的开阔感藏着其与空间对话的惊喜。
4.次卧则采用嵌入式衣柜设计,巧妙借用原衣帽间空间,在满足大容量收纳需求的同时,有效释放其活动空间;通过合理规划,大幅增加书桌长度,为学习办公创造舒适宽敞的环境,让次卧兼具实用性与舒适度。 -
设计选材:根据风格采用法式基本元素并选取既美观又实用的材质,美观环保且易清理。
-
用户体验:业主非常满意。
0
0

认证 · 让您身份增值