空山
7
作品说明
- 项目类型:住宅公寓
- 项目地点:长沙市
- 建筑面积:220㎡
- 项目造价:80万元
- 主案设计师: 王雷
- 竣工时间:2024
-
项目定位:人与自然的关系由抽象趋向具体、亲近、融合以至最终浑然一体。
-
空间意境:以自然而然的方式实现生活空间美学的概念,从而令功能和美学产生美妙的融合。并以极简主义的手法,于创造的空间之中精心考虑其几何的结构形式,讲究恰当的线条比例和可持续性的材料应用。
-
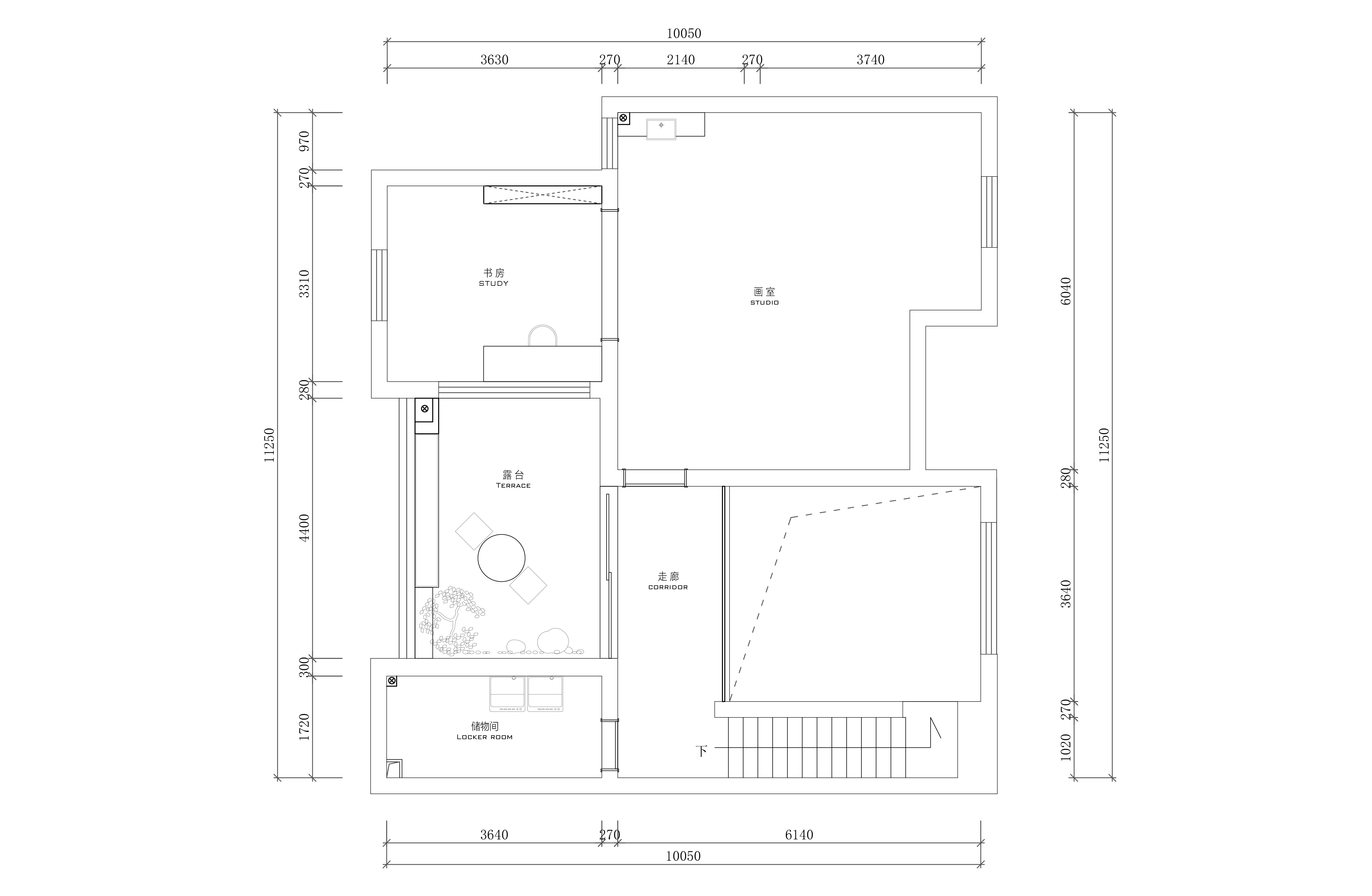
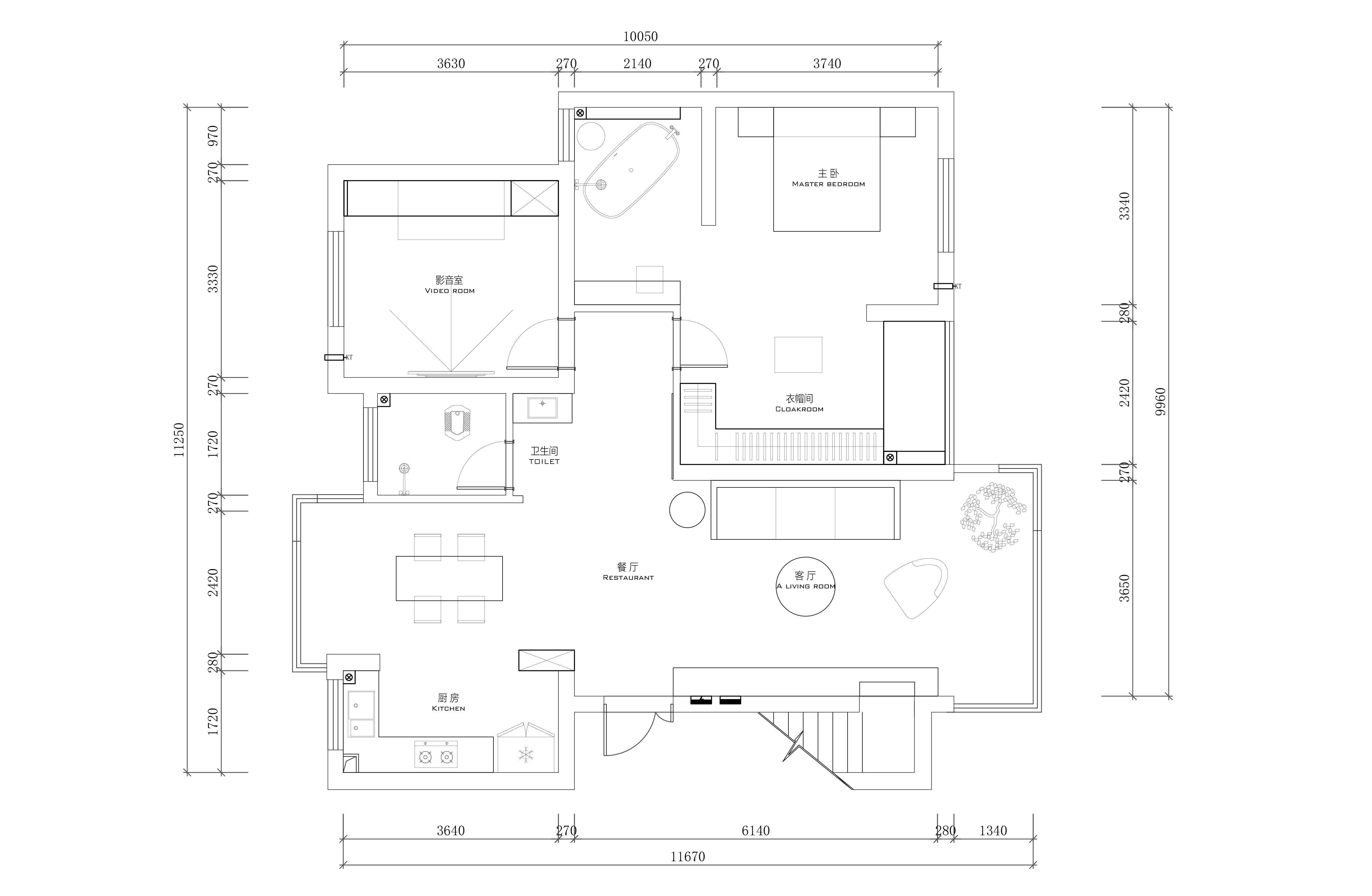
空间布局:采用流畅的比例线面划分出住宅内不同的空间功能,合理的布局有利于提升整体的舒适性和审美体验,更契合当下的生活和工作需要。
-
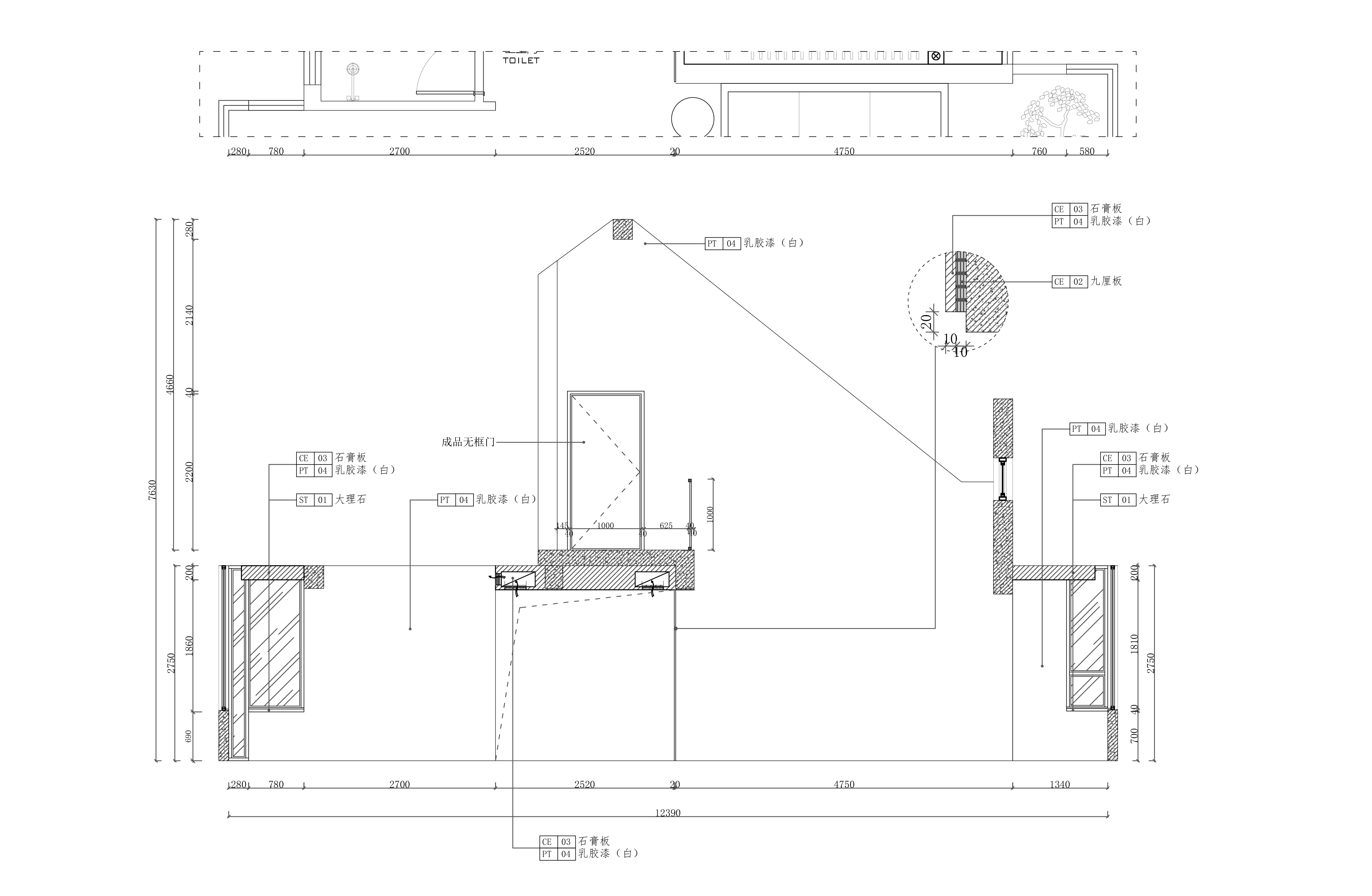
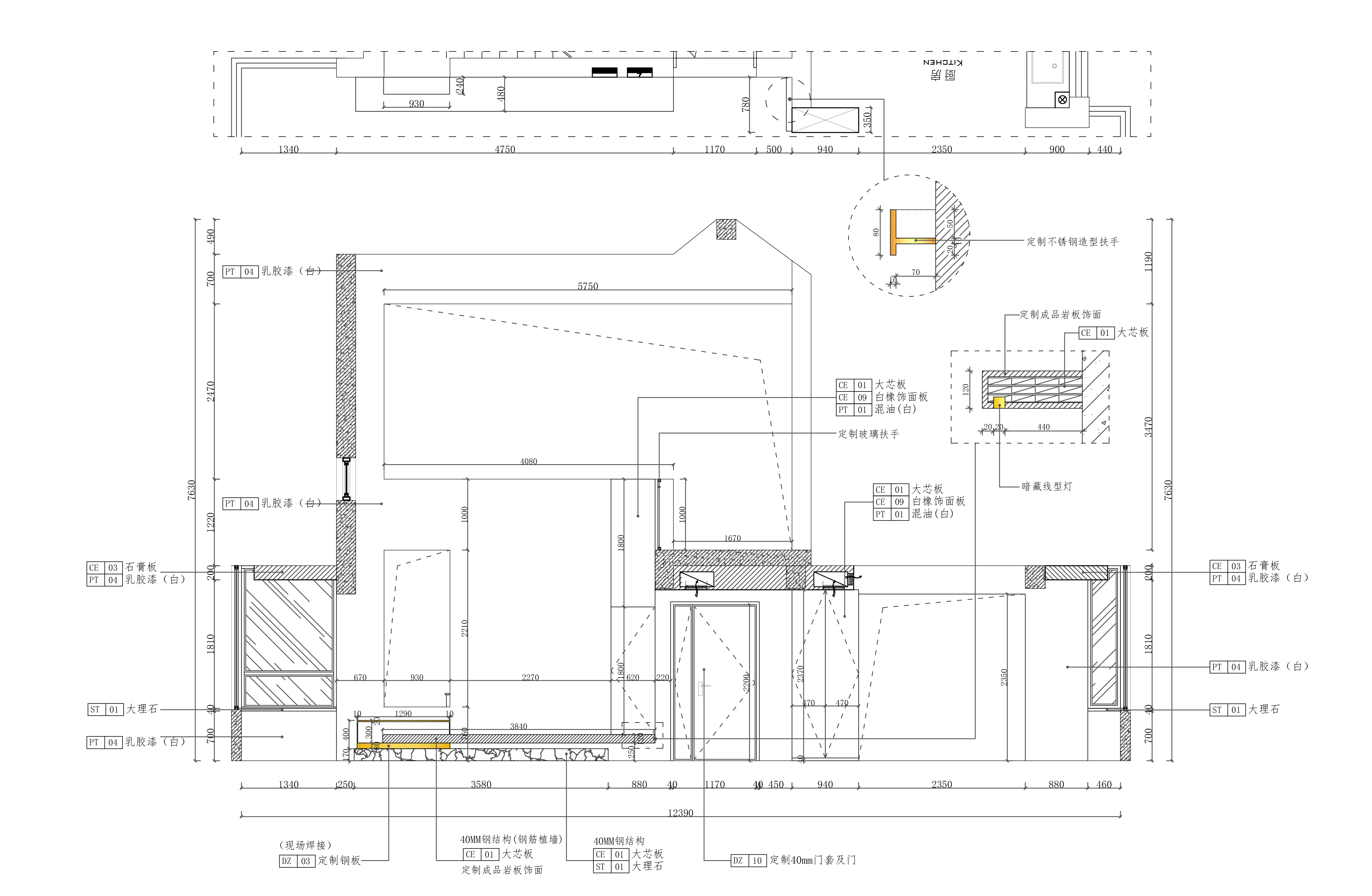
设计选材:白色调和极简主义作为设计的基石,创造出具有品质的空间。在实践过程中,空间的视觉感受一直是考虑的重点,而装饰材料及家具的选择则构成项目的基本元素。深浅不同的材料常常被用来塑造空间的情绪,并在功能区分上起着重要的作用。
-
用户体验:将自然光引入室内,白天光影在墙壁上跳跃,使空间情境更为生动。
0
0

认证 · 让您身份增值