-
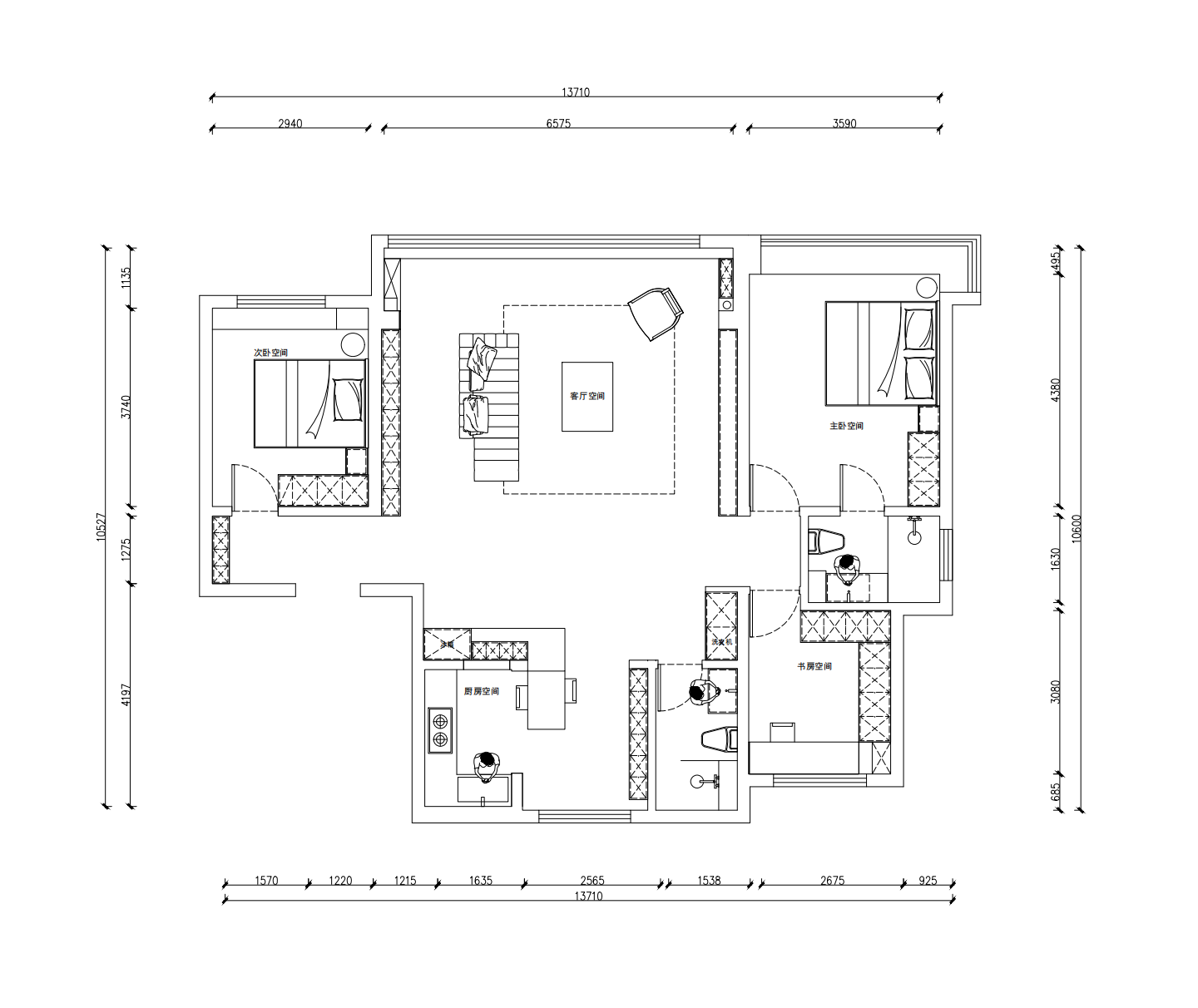
项目定位:在此次改造中,我们从生活场景的重构入手,拆除部分多余的墙体,打破空间界限,同时精心布局收纳系统,让各个区域既能满足日常功能需求,又能展现独特的设计感,实现交互式的家居模式。
-
空间意境:沙发后侧结合空间特性与屋主需求,规划出了开放式书房,统一的深色柜体搭配木色夹芯板做穿插,既能满足客厅空间的收纳,又能陈列屋主的私藏手办,更是营造出空间的层次感与韵律感,藏露有序,储物力颜值双在线!
阳台包进客厅后,大横厅的通透感瞬间拉满,屋主还亲自为家里的两位猫主子设计了"猫咪王国",经过改造之后,原本的家政区也成了猫咪的专属角落。 -
空间布局:客厅布局是标准的横厅,充足的空间尺度为这一区域带来无限的可能,特别是在将阳台并入室内后,更是收获了极致的通透感,也让这一区域成为家里的“社交枢纽”。
衣帽间我们根据屋主人的需求进行了量身定制,60CM的衣柜搭配抽屉柜、手办柜,充分满足收纳。同时靠窗位置配备升降桌,结束一天的工作,随时切换电竞房模式。考虑到整个空间尺度较小,为了避免拥堵感,我们在一侧墙面安装了通体穿衣镜,空间感大大提升。 -
设计选材:客厅软装部分,各类材质与色彩巧妙搭配,舒适亲肤的模块沙发与不锈钢落地茶几相得益彰,金属的光泽与绒布的克制碰撞出现代生活的慵懒科技感。
在与亲友相聚时,客厅也可以通过沙发的重新布局实现灵活的调整,形成一个交互式的空间,家人朋友可以围坐在一起,谈天说地,享受欢乐时光。
主卧床头背景墙采用细格栅搭配仿石纹板做装饰,营造出简约而不失质感的氛围。背景墙后侧L型飘窗转角位置安装了投影仪,夜晚休息前,可以躺在床上享受一场浪漫的私人影院时光。 -
用户体验:在精装房的局限下,两位业主也是最终实现的梦想中的空间居所。
客厅布局是标准的横厅,充足的空间尺度为这一区域带来无限的可能,特别是在将阳台并入室内后,更是收获了极致的通透感,也让这一区域成为家里的“社交枢纽”。
客厅布局是标准的横厅,充足的空间尺度为这一区域带来无限的可能,特别是在将阳台并入室内后,更是收获了极致的通透感,也让这一区域成为家里的“社交枢纽”。
主卧床头背景墙采用细格栅搭配仿石纹板做装饰,营造出简约而不失质感的氛围。背景墙后侧L型飘窗转角位置安装了投影仪,夜晚休息前,可以躺在床上享受一场浪漫的私人影院时光。
客厅布局是标准的横厅,充足的空间尺度为这一区域带来无限的可能,特别是在将阳台并入室内后,更是收获了极致的通透感,也让这一区域成为家里的“社交枢纽”。
主卧床头背景墙采用细格栅搭配仿石纹板做装饰,营造出简约而不失质感的氛围。背景墙后侧L型飘窗转角位置安装了投影仪,夜晚休息前,可以躺在床上享受一场浪漫的私人影院时光。
沙发后侧结合空间特性与屋主需求,规划出了开放式书房,统一的深色柜体搭配木色夹芯板做穿插,既能满足客厅空间的收纳,又能陈列屋主的私藏手办,更是营造出空间的层次感与韵律感,藏露有序,储物力颜值双在线!
阳台包进客厅后,大横厅的通透感瞬间拉满,屋主还亲自为家里的两位猫主子设计了"猫咪王国",经过改造之后,原本的家政区也成了猫咪的专属角落。
客厅布局是标准的横厅,充足的空间尺度为这一区域带来无限的可能,特别是在将阳台并入室内后,更是收获了极致的通透感,也让这一区域成为家里的“社交枢纽”。
客厅布局是标准的横厅,充足的空间尺度为这一区域带来无限的可能,特别是在将阳台并入室内后,更是收获了极致的通透感,也让这一区域成为家里的“社交枢纽”。
客厅布局是标准的横厅,充足的空间尺度为这一区域带来无限的可能,特别是在将阳台并入室内后,更是收获了极致的通透感,也让这一区域成为家里的“社交枢纽”。
主卧床头背景墙采用细格栅搭配仿石纹板做装饰,营造出简约而不失质感的氛围。背景墙后侧L型飘窗转角位置安装了投影仪,夜晚休息前,可以躺在床上享受一场浪漫的私人影院时光。
主卧床头背景墙采用细格栅搭配仿石纹板做装饰,营造出简约而不失质感的氛围。背景墙后侧L型飘窗转角位置安装了投影仪,夜晚休息前,可以躺在床上享受一场浪漫的私人影院时光。
主卧床头背景墙采用细格栅搭配仿石纹板做装饰,营造出简约而不失质感的氛围。背景墙后侧L型飘窗转角位置安装了投影仪,夜晚休息前,可以躺在床上享受一场浪漫的私人影院时光。
在此次改造中,我们从生活场景的重构入手,拆除部分多余的墙体,打破空间界限,同时精心布局收纳系统,让各个区域既能满足日常功能需求,又能展现独特的设计感,实现交互式的家居模式。
0
0

认证 · 让您身份增值
148