-
项目定位:中古风:融合了复古和现代元素的设计风格,这种风格既保留了复古的格调,又加入了现代的时尚气息,通过自然材质与现代工艺结合,营造出复古摩登的空间氛围。
-
空间意境:中古风硬装没有繁杂的设计造型,整体上都非常简洁,但在家具选择上是非常重要的一环,很多经典的家具都是中古风设计的“常客”,造型别致又极富高级感,搭配得当才能展现出风格优势。
-
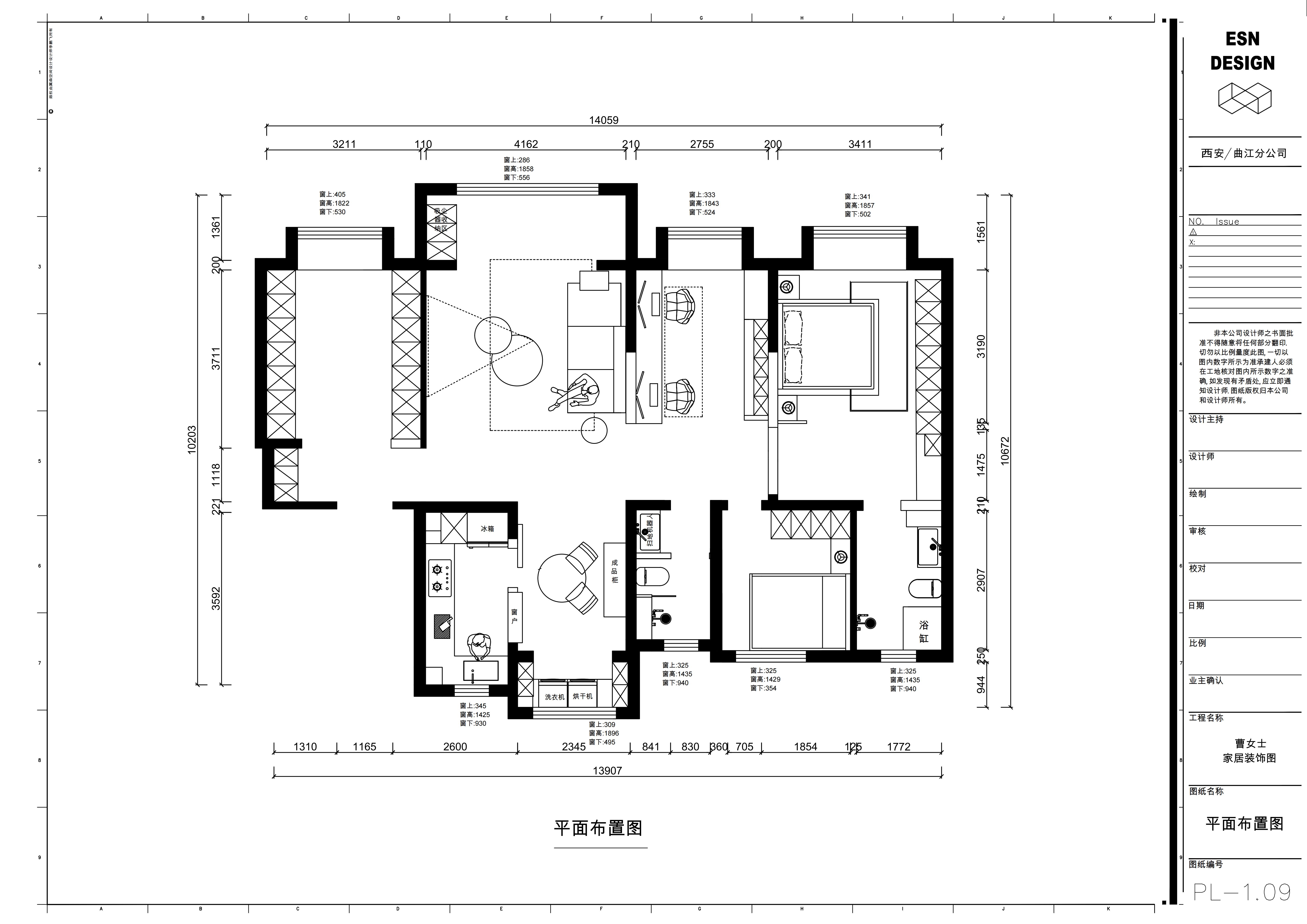
空间布局:拆除原始 入户正对墙体,改成折叠门形式,使入户次卧变身大型衣帽间,厨房拆除半墙,改做上翻窗,实现餐厨互动且空间通透,打通客厅旁边卧室,改做开放式书房,书架增加猫猫爬动,休闲时间可以和猫猫形成互动,主卧拆除原有衣帽墙体,床头调换位置,床尾可做一整排衣柜,增加储物同时让入户空间扩大两倍,主卧门洞改为双开门,增加入户仪式感。
-
设计选材:采用进口质感乳胶漆,性价比高,在保证整体氛围效果的同时,环保程度非常高。
-
用户体验:已经入住几个月了,客户反馈自己家既舒适又很有氛围感
拆除原始 入户正对墙体,改成折叠门形式,使入户次卧变身大型衣帽间,厨房拆除半墙,改做上翻窗,实现餐厨互动且空间通透,打通客厅旁边卧室,改做开放式书房,书架增加猫猫爬动,休闲时间可以和猫猫形成互动
主卧拆除原有衣帽墙体,床头调换位置,床尾可做一整排衣柜,增加储物同时让入户空间扩大两倍,主卧门洞改为双开门,增加入户仪式感。
拆除原始 入户正对墙体,改成折叠门形式,使入户次卧变身大型衣帽间,厨房拆除半墙,改做上翻窗,实现餐厨互动且空间通透,打通客厅旁边卧室,改做开放式书房,书架增加猫猫爬动,休闲时间可以和猫猫形成互动
主卧拆除原有衣帽墙体,床头调换位置,床尾可做一整排衣柜,增加储物同时让入户空间扩大两倍,主卧门洞改为双开门,增加入户仪式感。
拆除原始 入户正对墙体,改成折叠门形式,使入户次卧变身大型衣帽间,厨房拆除半墙,改做上翻窗,实现餐厨互动且空间通透,打通客厅旁边卧室,改做开放式书房,书架增加猫猫爬动,休闲时间可以和猫猫形成互动
主卧拆除原有衣帽墙体,床头调换位置,床尾可做一整排衣柜,增加储物同时让入户空间扩大两倍,主卧门洞改为双开门,增加入户仪式感。
拆除原始 入户正对墙体,改成折叠门形式,使入户次卧变身大型衣帽间,厨房拆除半墙,改做上翻窗,实现餐厨互动且空间通透,打通客厅旁边卧室,改做开放式书房,书架增加猫猫爬动,休闲时间可以和猫猫形成互动
主卧拆除原有衣帽墙体,床头调换位置,床尾可做一整排衣柜,增加储物同时让入户空间扩大两倍,主卧门洞改为双开门,增加入户仪式感。
拆除原始 入户正对墙体,改成折叠门形式,使入户次卧变身大型衣帽间,厨房拆除半墙,改做上翻窗,实现餐厨互动且空间通透,打通客厅旁边卧室,改做开放式书房,书架增加猫猫爬动,休闲时间可以和猫猫形成互动
厨房拆除半墙,改做上翻窗,实现餐厨互动且空间通透
主卧拆除原有衣帽墙体,床头调换位置,床尾可做一整排衣柜,增加储物同时让入户空间扩大两倍,主卧门洞改为双开门,增加入户仪式感。
拆除原始 入户正对墙体,改成折叠门形式,使入户次卧变身大型衣帽间,厨房拆除半墙,改做上翻窗,实现餐厨互动且空间通透,打通客厅旁边卧室,改做开放式书房,书架增加猫猫爬动,休闲时间可以和猫猫形成互动
拆除原始 入户正对墙体,改成折叠门形式,使入户次卧变身大型衣帽间,厨房拆除半墙,改做上翻窗,实现餐厨互动且空间通透,打通客厅旁边卧室,改做开放式书房,书架增加猫猫爬动,休闲时间可以和猫猫形成互动
主卧拆除原有衣帽墙体,床头调换位置,床尾可做一整排衣柜,增加储物同时让入户空间扩大两倍,主卧门洞改为双开门,增加入户仪式感。
拆除原始 入户正对墙体,改成折叠门形式,使入户次卧变身大型衣帽间,厨房拆除半墙,改做上翻窗,实现餐厨互动且空间通透,打通客厅旁边卧室,改做开放式书房,书架增加猫猫爬动,休闲时间可以和猫猫形成互动
厨房拆除半墙,改做上翻窗,实现餐厨互动且空间通透
厨房拆除半墙,改做上翻窗,实现餐厨互动且空间通透
厨房拆除半墙,改做上翻窗,实现餐厨互动且空间通透
拆除原始 入户正对墙体,改成折叠门形式,使入户次卧变身大型衣帽间,厨房拆除半墙,改做上翻窗,实现餐厨互动且空间通透,打通客厅旁边卧室,改做开放式书房,书架增加猫猫爬动,休闲时间可以和猫猫形成互动
厨房拆除半墙,改做上翻窗,实现餐厨互动且空间通透
拆除原始 入户正对墙体,改成折叠门形式,使入户次卧变身大型衣帽间,厨房拆除半墙,改做上翻窗,实现餐厨互动且空间通透,打通客厅旁边卧室,改做开放式书房,书架增加猫猫爬动,休闲时间可以和猫猫形成互动
厨房拆除半墙,改做上翻窗,实现餐厨互动且空间通透
厨房拆除半墙,改做上翻窗,实现餐厨互动且空间通透
拆除原始 入户正对墙体,改成折叠门形式,使入户次卧变身大型衣帽间,厨房拆除半墙,改做上翻窗,实现餐厨互动且空间通透,打通客厅旁边卧室,改做开放式书房
0
0

认证 · 让您身份增值
169