宏信国际花园
180 - 项目类型:住宅公寓
- 项目地点:西安市
- 建筑面积:120㎡
- 项目造价:50万元
- 竣工时间:2025.5
-
项目定位:极简风格:“少而有度,简而有温”的核心,它不是简单的“去一切”,而是通过精心设计,让每个元素都恰到好处,营造出宁静,舒适且有温度的家。
-
空间意境:硬装上面,‘少即是多’,极简主义设计造型简洁明快,多采用直线,方形或规则简单几何体减少一切不必要的凹凸感。
-
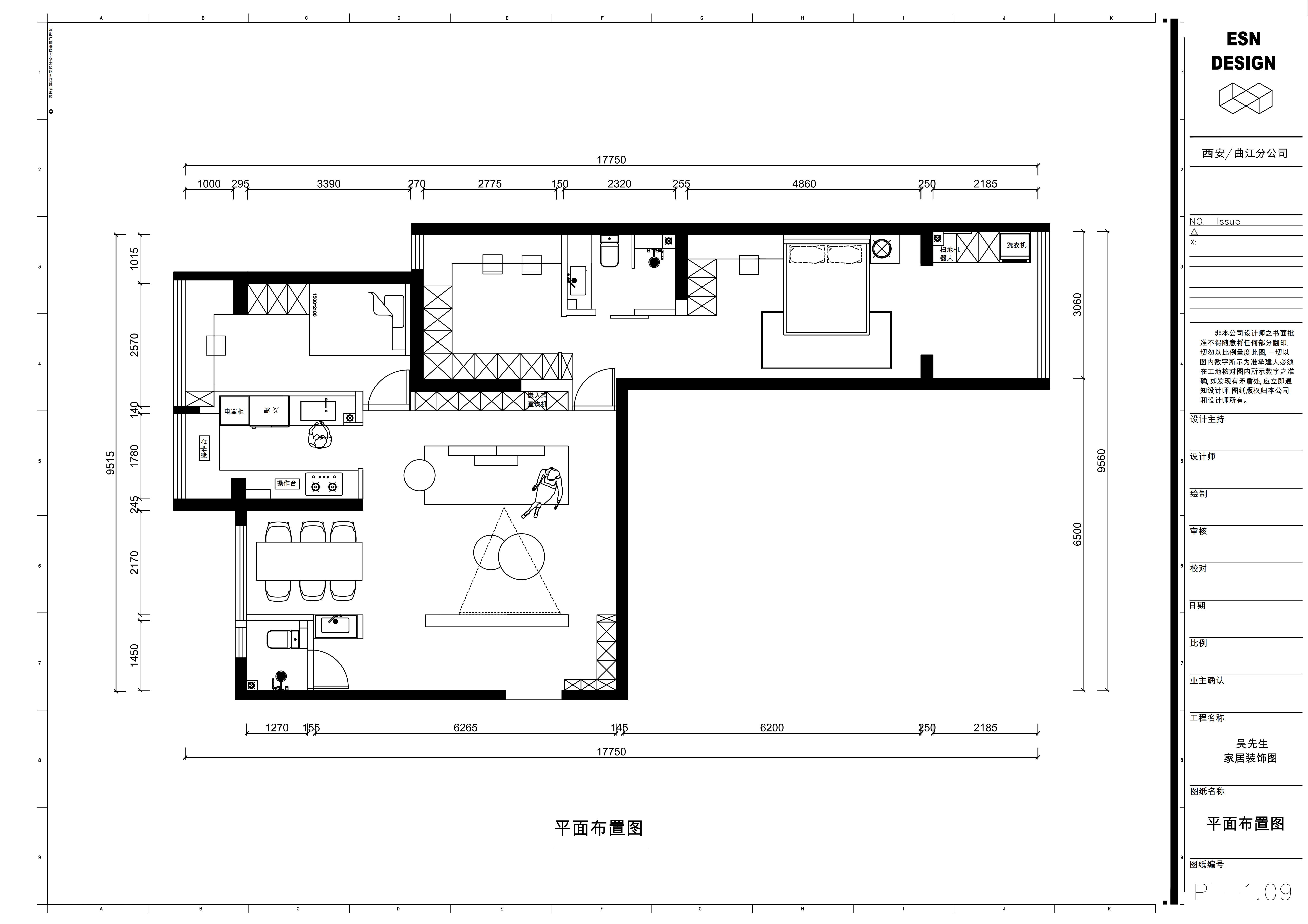
空间布局:入户增加悬浮造型墙,同时充当电视背景墙,形成入户双过道,客卫门位置做改动,增加干区浴室柜,形成干湿分离空间,同时拥有独立餐厅空间,次卧纳进主卧空间,形成主卧套件形式,主卧次卧门外移,增加客厅储物同时可充当餐边柜,放置咖啡机直饮机等小电器功能,使用更方便。
-
设计选材:采用进口质感乳胶漆,性价比高,在保证整体氛围效果的同时,环保程度非常高。
-
用户体验:已经入住几个月了,客户反馈自己家有一种精致而又不失烟火的气息,居住动线更舒适。
增加客厅储物同时可充当餐边柜,放置咖啡机直饮机等小电器功能,使用更方便。
次卧纳进主卧空间,形成主卧套件形式,主卧次卧门外移
次卧纳进主卧空间,形成主卧套件形式,主卧次卧门外移
客卫门位置做改动,增加干区浴室柜,形成干湿分离空间
次卧纳进主卧空间,形成主卧套件形式,主卧次卧门外移
次卧纳进主卧空间,形成主卧套件形式,主卧次卧门外移
增加客厅储物同时可充当餐边柜,放置咖啡机直饮机等小电器功能,使用更方便。
增加客厅储物同时可充当餐边柜,放置咖啡机直饮机等小电器功能,使用更方便。
增加客厅储物同时可充当餐边柜,放置咖啡机直饮机等小电器功能,使用更方便。
增加客厅储物同时可充当餐边柜,放置咖啡机直饮机等小电器功能,使用更方便。
入户增加悬浮造型墙,同时充当电视背景墙,形成入户双过道
客卫门位置做改动,增加干区浴室柜,形成干湿分离空间,同时拥有独立餐厅空间,
增加客厅储物同时可充当餐边柜,放置咖啡机直饮机等小电器功能,使用更方便。
次卧纳进主卧空间,形成主卧套件形式,主卧次卧门外移
客卫门位置做改动,增加干区浴室柜,形成干湿分离空间,同时拥有独立餐厅空间,
客卫门位置做改动,增加干区浴室柜,形成干湿分离空间,同时拥有独立餐厅空间,
增加客厅储物同时可充当餐边柜,放置咖啡机直饮机等小电器功能,使用更方便。
增加客厅储物同时可充当餐边柜,放置咖啡机直饮机等小电器功能,使用更方便。
增加客厅储物同时可充当餐边柜,放置咖啡机直饮机等小电器功能,使用更方便。
增加客厅储物同时可充当餐边柜,放置咖啡机直饮机等小电器功能,使用更方便。
增加客厅储物同时可充当餐边柜,放置咖啡机直饮机等小电器功能,使用更方便。
硬装上面,‘少即是多’,极简主义设计造型简洁明快,多采用直线,方形或规则简单几何体减少一切不必要的凹凸感。
0
0

认证 · 让您身份增值