简而不凡
2
作品说明
- 项目类型:别墅
- 项目地点:重庆市
- 建筑面积:450.0000㎡
- 项目造价:300.0000万元
- 主案设计师: 熊翔飞
- 竣工时间:2025.06
- 设计机构:威尼设计
-
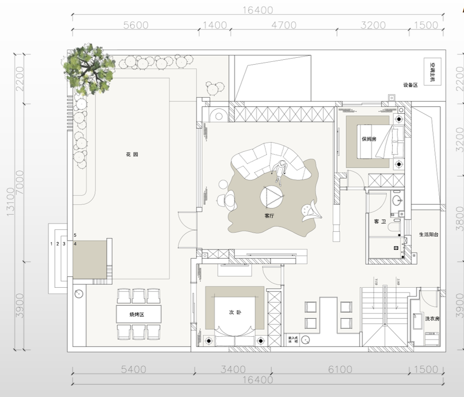
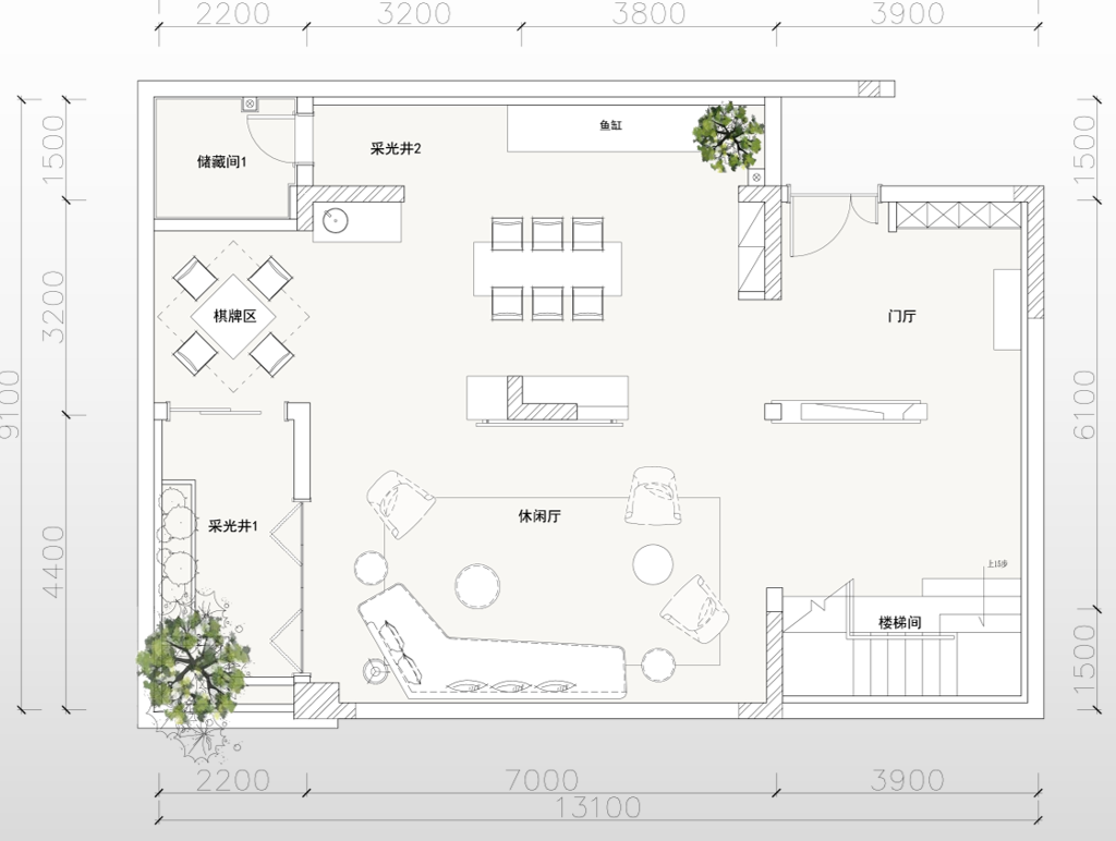
项目定位:本案旨在打破地下室压抑、闭塞的刻板印象,以现代极简主设计哲学为核心,将地下室转化为一个明亮且与自然相连的空间。我们摒弃一切多余的装饰,通过纯粹的空间形态,以及流畅的空气流动,打造一个功能与美学高度统一的“地下室生活空间”。设计的核心策略是“向光而生,因风而活”,巧妙利用空间设计出“双“采光井!辅以新风系统,从根本上解决地下层的先天不足,实现与地上无异的舒适体验。
二.核心问题解决方案:
1.双采光井系统-引光入室,重塑空间:我们并非简单的开设两个天窗,而是对采光井进行系统性设计。一个为主采光井,位于核心区域的客厅,并对客厅做了挑高设计,引入更多的光线。另一个为次级采光井,服务于茶室和餐厅,让每个空间都有充分的采光,同时形成光影的层次与过度。
2.新风系统-隐形呼吸,恒氧恒净:采用全热交换双向流中央新风系统,促进空气流动,保持空气干燥,有效防止霉菌滋生。
三.极简风格:
整体以大面积的白色为基调,营造明亮、开阔的基底。局部采用灰色、黑色、原木色进行点缀和稳定视觉,形成鲜明对比,增强空间的层次与深度。
本案设计通过技术与美学的深度融合,将地下室从一个被动的附属空间,提升为一个主动的、充满活力的生活场所。双采光井实现了与自然的对话,新风系统保障了无形的舒适,而极简主义则赋予这一切宁静而有力的形式! -
空间意境:整体以大面积的白色为基调,营造明亮、开阔的基底。局部采用灰色、黑色、原木色进行点缀和稳定视觉,形成鲜明对比,增强空间的层次与深度。
-
空间布局:通过纯粹的空间形态,以及流畅的空气流动,打造一个功能与美学高度统一的“地下室生活空间”。设计的核心策略是“向光而生,因风而活”,巧妙利用空间设计出“双“采光井!辅以新风系统,从根本上解决地下层的先天不足,实现与地上无异的舒适体验。
-
设计选材:我们并非简单的开设两个天窗,而是对采光井进行系统性设计。一个为主采光井,位于核心区域的客厅,并对客厅做了挑高设计,引入更多的光线。另一个为次级采光井,服务于茶室和餐厅,让每个空间都有充分的采光,同时形成光影的层次与过度。
-
用户体验:把业主最初想放弃装修的空间,变成了最留的住人的空间!
0
0

认证 · 让您身份增值