银川吴裕泰 芳华茶餐厅



- 项目类型:餐饮
- 项目地点:银川市
- 建筑面积:1860.0000㎡
- 项目造价:750.0000万元
- 主案设计师: 周彦刚
- 竣工时间:2019-06-01
- 设计机构:宁夏润木装饰设计有限公司
-
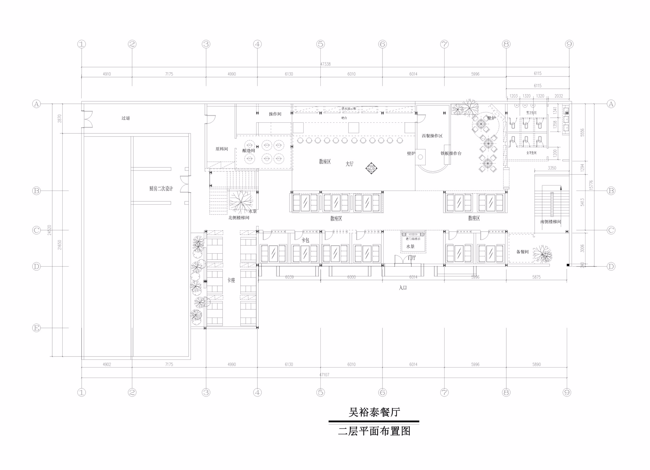
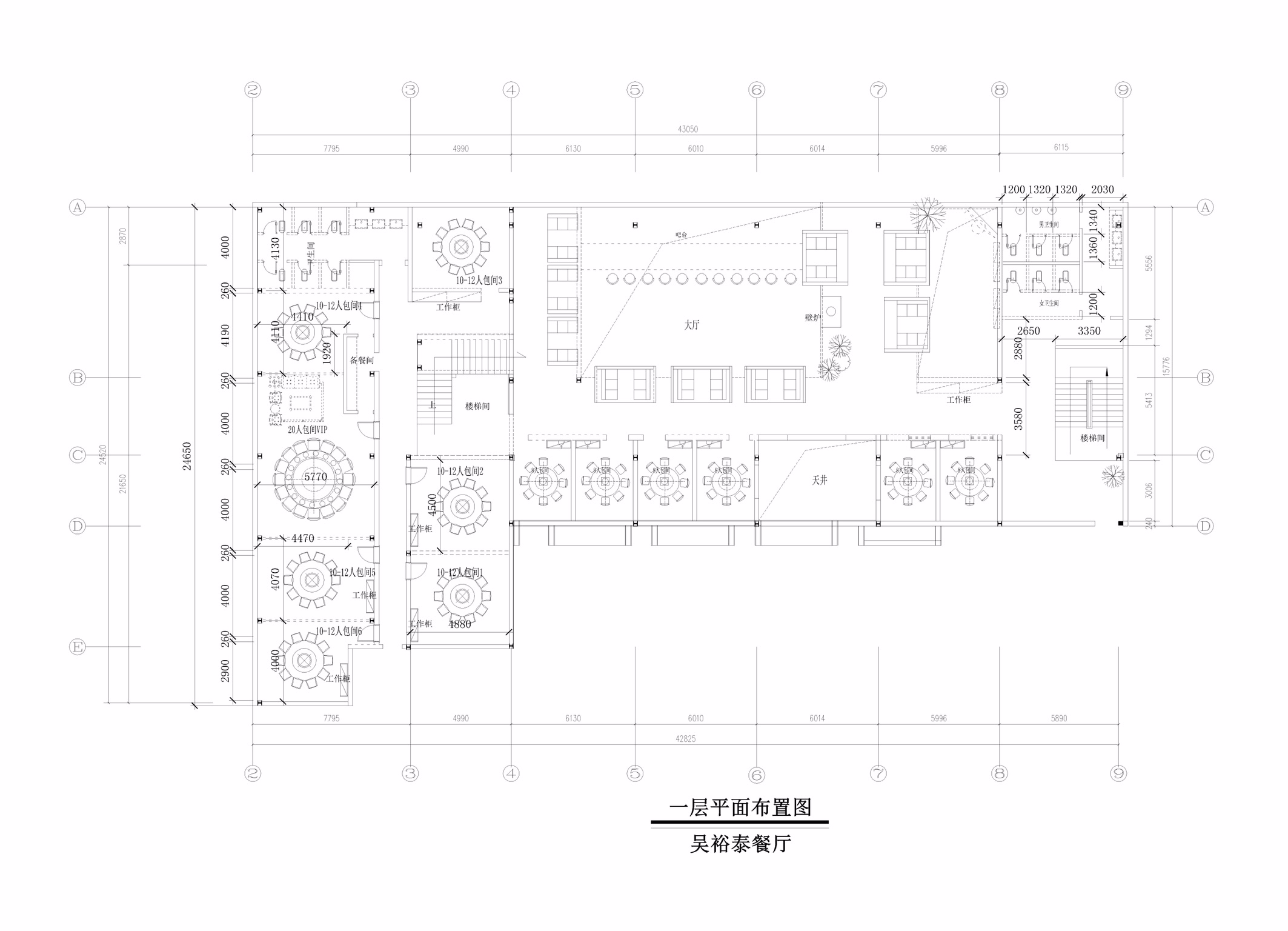
项目定位:建筑面积1800平米,具有大,中,小包间20间,6人卡座28个,庭院1000平米,露台300平米。经营项目以地方特色菜,茶餐,西餐酒吧文化相融合的多元化创新模式。
-
空间意境:本设计汲取当地人文气息与周遭自然元素,结合现代的设计手法,于此绘就出“离城不离尘”的生活画卷。既在主城繁华中,又远离世事尘嚣,宁静优雅,独自芳菲。
以城市的风韵和气质为基调,将内敛雅致的传统文化融入现代的设计语言,以此延续老建筑的良性更新。灌注其中的人与物件、自然的情感关系,是对传统精神的回应,也是对当下生活的反思,更是源自生活本身的诗意。新颖与传统有序链接,塑造一个视觉玩味与悠长内涵并存的魅力场所。 -
空间布局:装修空间布局创造出了一种崭新的风格。茶餐厅类型,既满足了功能,又提供了对民间历史建筑保护的新模式. 芳华餐厅由老房子和新建筑两个部分组合而成.老房子空间结构落脚于此,结合精心设计的钢结构建筑,以空间主题的构架方式出现.被很好的保护起来,木结构不承受雨雪,不在担心虫蚀,这个徽派风格的内部气势和精美以及园林式的花园环境是很少有人身临其境过的.餐厅气质低调.每个空间都精心设置了主题,并以非常少见的艺术界面形式展现.所有艺术品都在空间里的增设,借由此推动餐厅空间的文脉与文化气息.
-
设计选材:在选材上,利用材料与肌理营造室内设计主题。餐饮环境中使用了大量的以自然的材质来提升空前的气质,每种肌理都创造出不同的特殊的肌理效果。在空间中用肌理的应用来改变室内空间形态,烘托整体气氛。运用自然的原石原木,老旧的木隔扇,老瓦片来增加空间的氛围,这样既体现了设计的创新性,又增加了室内的低碳和经济性,从而实现了整体空间的回归自然效果。
-
用户体验:店内环境非常好,雅致,安静,有种世外桃园的感觉
A26A0A30-8A98-498A-BEE5-433431A0063B
3DE8A659-F2C0-4295-8AB8-E318BE2010DF
83BAE81A-48A0-466F-A0F7-07C2C1F21584
B3961EE8-D9EA-483E-86D9-61E281E1A335
FEFADF70-0291-4C0E-A69B-3621D6386F47
A1BE8A12-3DAC-4315-882D-A733B3A4495D
3AE0A1A3-C50D-4D5F-8336-FD4DAC832F52
B1116A71-3154-4727-AA51-8BC7428F96C3
1A895C37-B476-4CE2-8450-45D37865084A
7AE4BFC9-B366-4832-B22E-0FB1A2FE37BF
B94CCF77-2C26-42A7-BCA1-3FE5F9E42330
707A6BBB-E13C-4328-83AE-6AB1990DE835
92E8EB27-5AA7-4A63-B6EC-2DDAD2190673
5508D8E8-CD2E-4AA9-A263-82B1C7C75428
24286F3C-817B-4226-A3A2-72757BBFB088
0C20F4D1-7EF9-4804-9A33-576D12756773
5193070E-9CFC-439E-87CF-588C1EB21913
0BCB3425-D6D8-42FA-B9AB-503258DDFF3B
8F7BF310-9D77-4EC3-9177-7C20C559142B
AA99077C-96D8-46E5-9EBC-EA011E448013
E24F995A-74EA-41A6-AF35-69CA42B7132E

