风华瓴著 原木精装改造
206 - 项目类型:住宅公寓
- 项目地点:常州市
- 建筑面积:140㎡
- 项目造价:30万元
- 竣工时间:2025.7
-
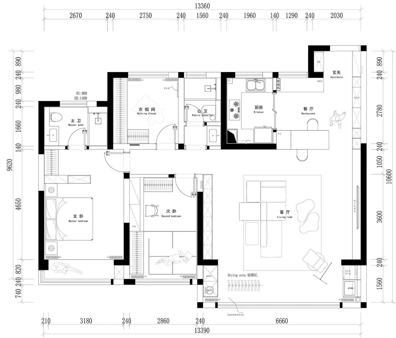
项目定位:改善型住宅,毛细五恒改动尽可能小,天妻两人2个孩子,天妻常住,小孩上大学不在本地,储物要多,空间简洁大方。
现代日式装修风格以其简约而不简单、追求自然与和谐的设计理念。现代日式风格的配色通常以原木色为主,再搭配白色、米色、豆绿色、高级灰、黑色等饱和度比较低的颜色,共同营造出一种清新、质朴的氛围。 -
空间意境:空间布局注重流动性和开放性。没有明显的区城之分,以增加空间的通透感和流动性。同时,空间布局也讲究对称与平衡,通过合理的空间规划营造出宁静、舒适的居住环境。
整个家里的收纳系统非常完善。巧妙地利用空间增加收纳空间,使家居环境更加整洁有序。例如,可以使用开放柜体+收纳盒的方式,利用榻榻米等设计增加储物空间。 -
空间布局:
客餐厅打通,一个回绕全敞开的空间,动线非常流畅,同时满足了各个空间的互动性,也使得整个空间看上去十分的宽敞。
-
设计选材:
原木以及线条的利用,空间十分简洁流畅,比起原始精装,多了几分温润感,同时原木与漆面的搭配也是经典的YYDS。 -
用户体验:餐厅设计的是一个正对客厅的方正型的餐厅,常住人口2人,所以简单的方桌满足日常的就餐需求,合适的餐桌尺寸,更利于空间动线的流畅性。
原木以及线条的利用,空间十分简洁流畅,比起原始精装,多了几分温润感,同时原木与漆面的搭配也是经典的YYDS。
餐厅设计的是一个正对客厅的方正型的餐厅,常住人口2人,所以简单的方桌满足日常的就餐需求,合适的餐桌尺寸,更利于空间动线的流畅性。
玄关的设计,设计师利用了整木柜体的组合完成了整个入户的居住需求。洞洞板的出现,更是增加了收纳的多样化,非常便捷。
整面墙的收纳如果做全闭合的空间,不仅使得功能的机动性变少,也使得整个空间失去了一点生活的质感,设计师通过原木色与白色的组合,打造了一个集功能与爱好为一体的展示收纳区,审美个性化的同时,也为业主生活写下了注脚。
精装房的设计重点一方面是软装还有一方面就是个性功能的展现,厨房空间,设计师通过灯具以及餐桌的呈现,营造了一个非常有浪漫生活质感的空间,小圆桌的使用,既精致也充分尊重了空间的匹配度。
在开放商交付的浅米色地砖基础上,引入低饱和度的主色调和温润的木色作为点缀,营造柔和温暖的基调,拆除原有主灯,改为无主灯设计,强调了重点照明,氛围照明和功能性照明,在软装上面,通过高品质家具,设计感挂画,地毯等元素,打造空间松弛感。
保持原有的基本硬装,在柜体上面做了一个立面的设计,主卧套间与卫生间既又隔断的作用,也能保持空间的空气流畅性。
次卧的空间比较小,要满足休闲+收纳以及睡眠的需求,设计师通过榻榻米以及立面的收纳,满足了整个功能的完善性。
空间布局注重流动性和开放性。没有明显的区城之分,以增加空间的通透感和流动性。同时,空间布局也讲究对称与平衡,通过合理的空间规划营造出宁静、舒适的居住环境。 整个家里的收纳系统非常完善。巧妙地利用空间增加收纳空间,使家居环境更加整洁有序。例如,可以使用开放柜体+收纳盒的方式,利用榻榻米等设计增加储物空间。
0
0

认证 · 让您身份增值