香悦四季顶复.我们的故事
4
作品说明
- 项目类型:住宅公寓
- 项目地点:湖州市
- 建筑面积:235.0000㎡
- 项目造价:100.0000万元
- 主案设计师: 况倩男
- 参与设计师:苏远芳
- 竣工时间:2024年8月
- 设计机构:长兴汤臣装饰
-
项目定位:以顶层复式的物理属性为依据,尊重其开阔视野与双层结构,结合家庭分区需求做理性规划;同时契合居住者对美观时尚、细节匠心的精神诉求,以光与风为载体,打造承载情感的高端人文居所。
-
空间意境:遵循顶层通透、双层差异的物理特质,一层定调开放互动,二层侧重静谧独立,选材兼顾实用适配;以居住者情感为核心,用 LDK 场景联动、复古与现代家具搭配,及专属色系,营造和谐有温度的个性氛围
-
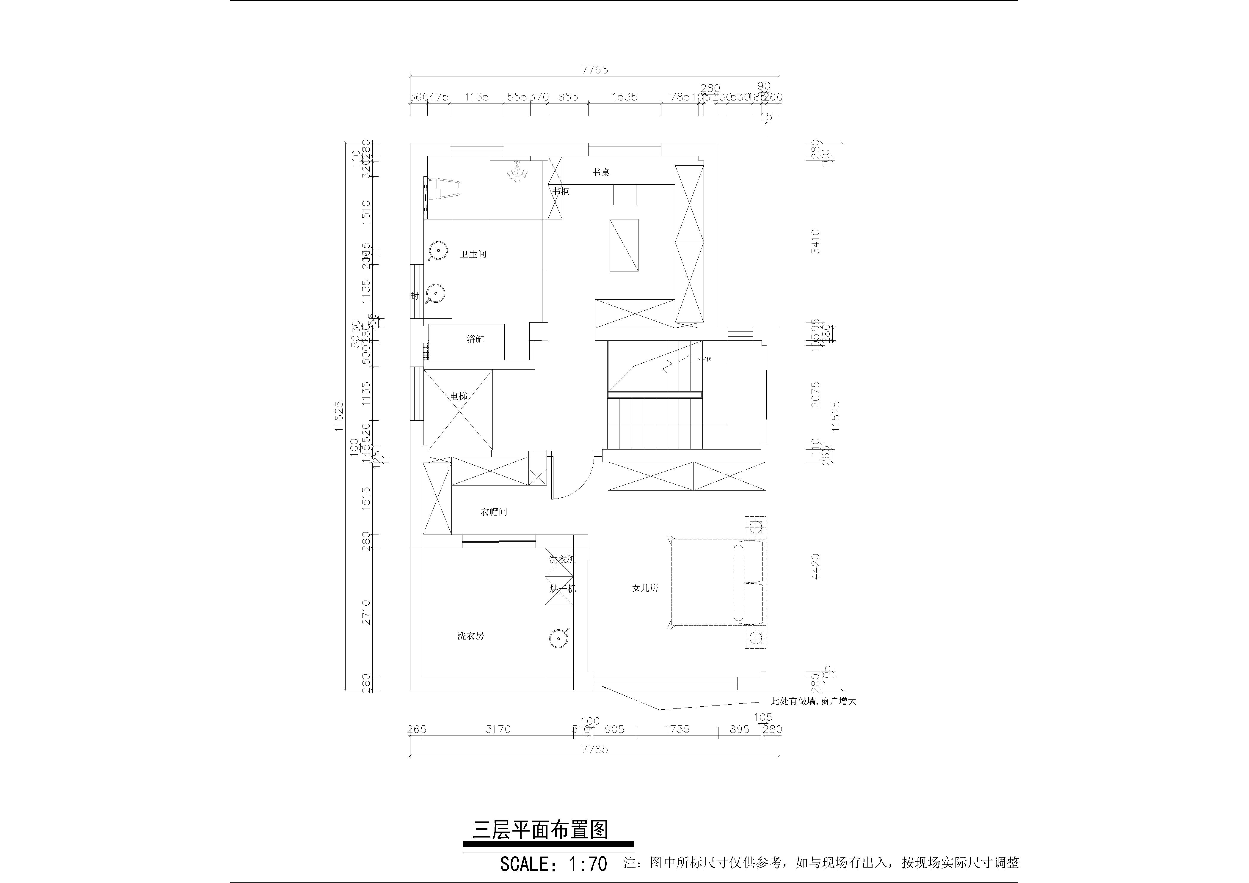
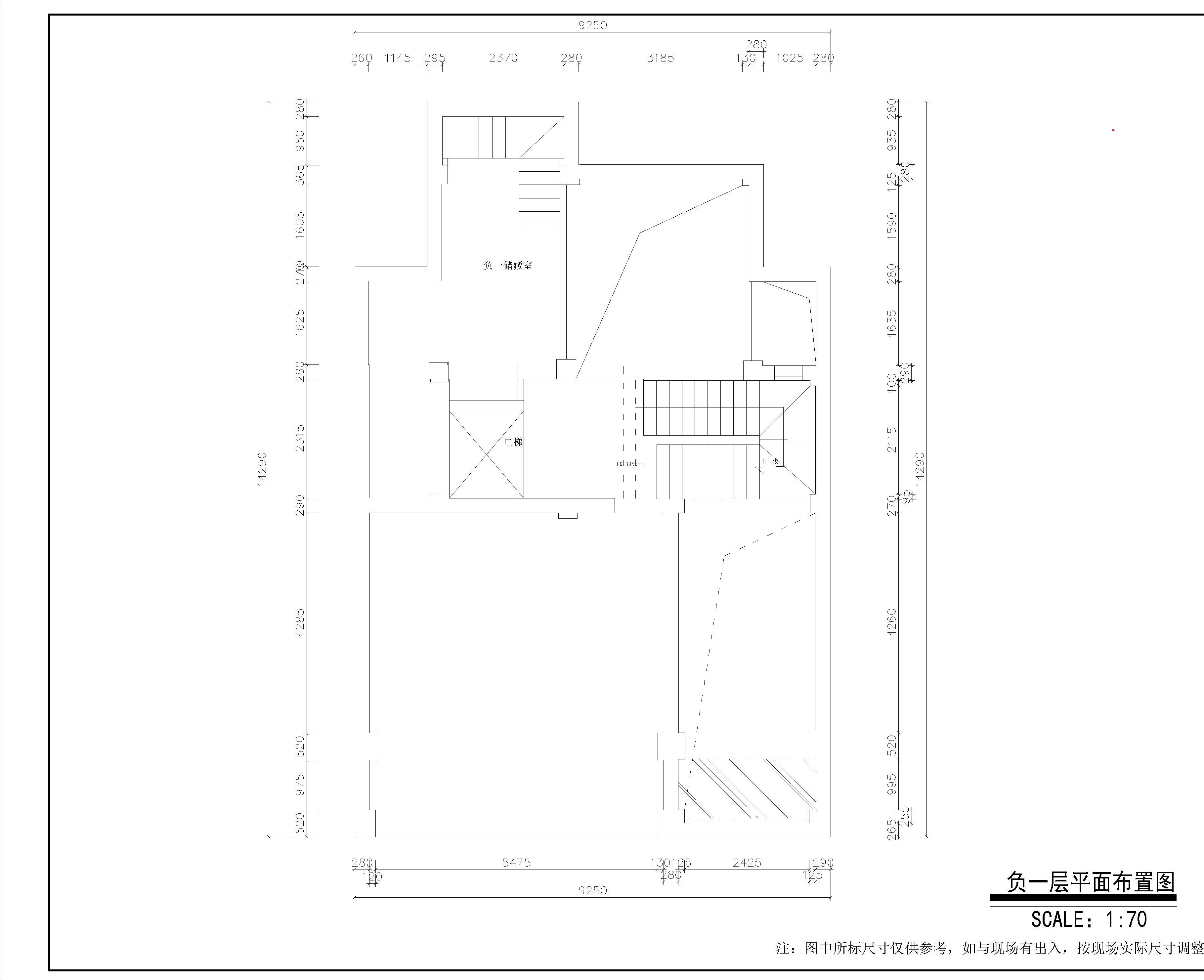
空间布局:针对原结构缺陷,调整楼梯位置、优化动线,科学划分公共与私密区域,遵循实用高效的客观规律;融入情感诉求,用开放布局促进亲情交融,以独立分区尊重个性,让悬浮楼梯成为兼具功能与美感的焦点。
-
设计选材:坚持实用、低碳、经济原则,选用岩板、木质、竹纤维墙板等适配空间且环保的材料,控制成本兼顾品质;通过材质质感碰撞、色彩和谐搭配,传递细节匠心,让材料成为表达审美与情感的载体。
-
用户体验:布局优化与实用选材提升了空间利用率、便捷性,降低维护成本,实现客观居住价值;居住者在通透空间中感受情绪滋养,因个性设计获得归属感,精神层面得到满足,体验到居住的幸福感。
用唯物主义去判断,用唯心主义来生活。
故事的开头, 在错综的梁柱关系, 在黑白的色调铺陈, 在起伏的情绪表, 我们尊重空间本质, 我们弱化房梁存在, 承重柱上的水磨石, 弧角天花曲面墙体, 修饰,装饰,布置, 一步步具象家的样子。
故事的章节, 点缀了中古家具, 贯穿的LDK设计, 通透的空间格局, 跳色的活跃, 在展示柜中摆放的车子, 确实是业主事业的名词。 起承转合自然融合, 一点一点丰富家的想象。
故事的链接处, 改变原本的出处, 以悬浮的突出, 均衡空间的诗意。 层层台阶处, 是不同气质的材质, 木质的古朴温润, 岩板的现代柔和, 玻璃的纯净透明, 交织出独有的韵律。
故事的归属, 是光含蓄的表述, 是斯卡帕递进的入住, 时光停驻, 在暂停抑或快进的迷雾, 安心,温馨, 在黄昏走向清晨的每一步。
未完待续, 是对未来的期许; 阅读时光, 是对生活的批注; 我们携手走过一段旅途, 那些细碎的脚步, 浅浅地印在她成长的心路。
0
0

认证 · 让您身份增值