天正山河玺院
89
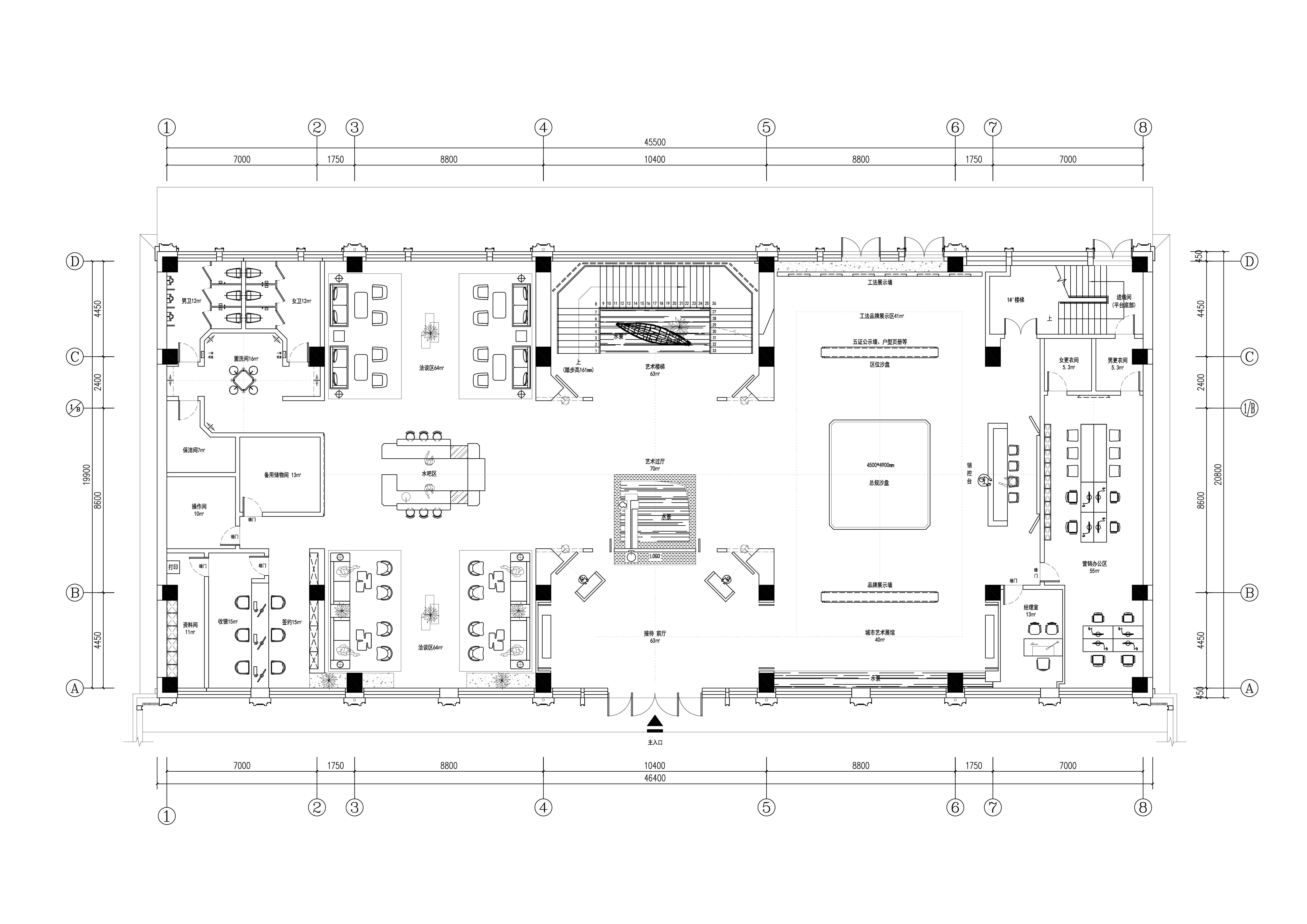
作品说明
- 项目类型:样板间/售楼处
- 项目地点:沧州市
- 建筑面积:1000㎡
- 项目造价:600万元
- 主案设计师: 许小平
- 参与设计师:董培青、高志卿、王军、袁亚仲、赵亚、占益峰
- 竣工时间:2025/2/1
票数 : 0
-
项目定位:天正山河玺院坐落于沧州的核心地段,延续城市文脉精粹,将城市文化与现代美学完美交融,深度探索未来生活场景,打造沧州人居的理想生活范本。
-
空间意境:设计的精髓在于 “精致化居住体验” 。它将五星级酒店的高级感、舒适性、功能性和周到服务感融入空间,注重细节、材质和光影,营造出 “回家即是度假” 的感官体验,运河主题打造景观,彰显在地性文化。
-
空间布局:中轴对称的布局形式,串联整个体验中心,功能空间布局及动线更符合合理,在保持庄重感的同时,融入更多灵活性与现代气息,是表达秩序感、仪式感的理想选择。
-
设计选材:选择木质、艺术漆、金属、艺术玻璃搭配软装,点缀奢石提升空间品质,“酒店式空间设计”的整体风格与视觉效果。这不仅是简单的装修,更是创造一种体验、一种氛围、一种令人向往的生活方式。
-
用户体验:营造富有层次、隐奢的高级酒店感,多维度的积极呈现,提升品牌文化格调,空间的仪式感,隐奢属性,得益于高品质高的落地,为业主增强空间溢价能力,得到业界口碑及一致肯定。
0
0

认证 · 让您身份增值