白华之境,于瞬间遇见,便着迷于此
2490
作品说明
- 项目类型:样板间/售楼处
- 项目地点:重庆市
- 建筑面积:1085.0000㎡
- 项目造价:2000.0000万元
- 参与设计师:庞一飞、邓书鸿、张婧、卢丽、余丽华
- 竣工时间:2019-08-08
- 设计机构:重庆品辰装饰工程设计有限公司
-
项目定位:项目落址于重庆,望南山而建,与水为邻。我们将重庆这座城市的形态——“山”为项目赋形,模糊商业与人文的空间界限,造就一处纯粹的“白华之境”,使空间承载的不单单是功能性,更多的是关于精神容器的探寻。
-
空间意境:设计师运用西方极简绘画手法,将山城的“人”“事”“物”几何化,带给游于空间的人们一种震撼心灵的波动。当几何形态满载于多维空间时,便丰富了建筑的内在层次,实现了室内节奏、韵律、情感的统一。
-
空间布局:灵趣的故事,需要特有的艺术构造来点缀。我们运用简艺的设计体系,将山城固有的构造——吊脚楼复述。构造轻盈、舒展的场所,像是一缕隐藏在心内的吉光片羽,激发人们关于珍贵、幸福的美好想象。
一楼接待区和二楼的VIP区之间,静默存在又彼此串联。吊脚楼强化了一楼与二楼架构空间的起、承、转、合,成就一种“你中有我,我中有你”的布局性手法,这不禁令人联想到山城的大街小巷,跌宕错落中又不缺乏奇幻的瑰想。 -
设计选材:少用不可再生资源做的材料,选用人造石、木饰面、银灰洞大理石、仿古铜拉丝不锈钢、艺术玻璃、定制画等
-
用户体验:1、气质寓于沉稳冷静中,空灵充实,如美学散步!
2、色彩的搭配、空间的布局,给人一种高尚而清爽的感觉。
3、简约大气上档次。
接待区
接待区
_05A0012
_05A0069
_05A0200
接待区
_05A0855
_05A0477
_05A0358
_05A0364
_05A0337
_05A0531
_05A0392
_05A0220
_05A0249
_05A0522
_05A0306
_05A0316
_05A0174
_05A0020
_05A0691
_05A0269
_05A0667
_05A0077
_05A0082
_05A0208
_05A0416
_05A0470
_05A0726
_05A9979
_05A0206
_05A0587
_05A0649
_05A0708
_05A0633
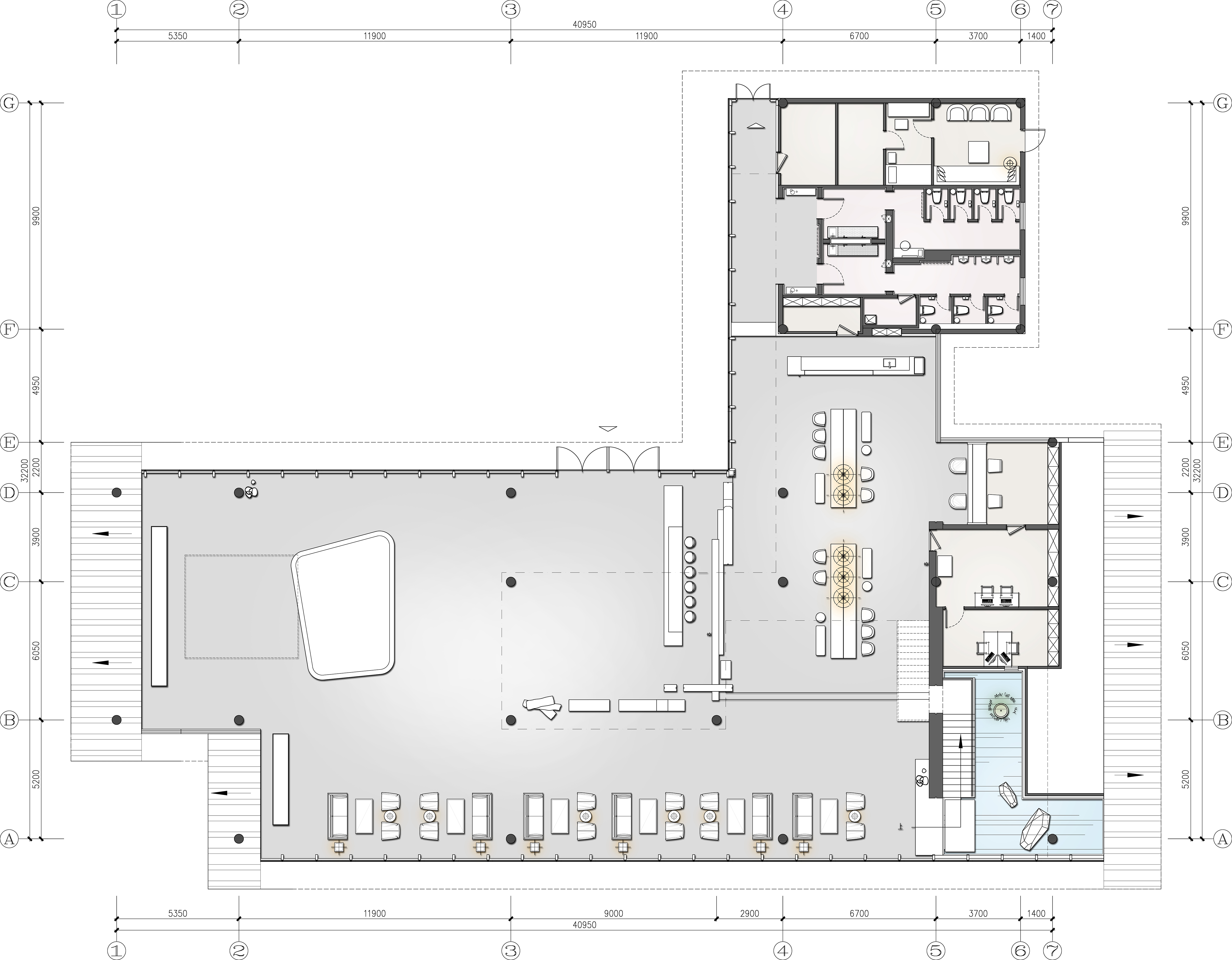
1层平面图
2层平面图
4
1

认证 · 让您身份增值