桃花源1-5
8
作品说明
- 项目类型:别墅
- 项目地点:义乌市
- 建筑面积:700㎡
- 项目造价:700万元
- 主案设计师: 陈耀
- 竣工时间:2023.11
-
项目定位:该项目定位是当代东方隐奢大宅。以传统中式美学为精神内核,用现代奢华材质与极简手法重构空间,打造 “隐于市、奢于质、雅于魂” 的高端私宅范式。
-
空间意境:该作品在空间场景上打破传统边界、重构自然与空间的共生关系。
-
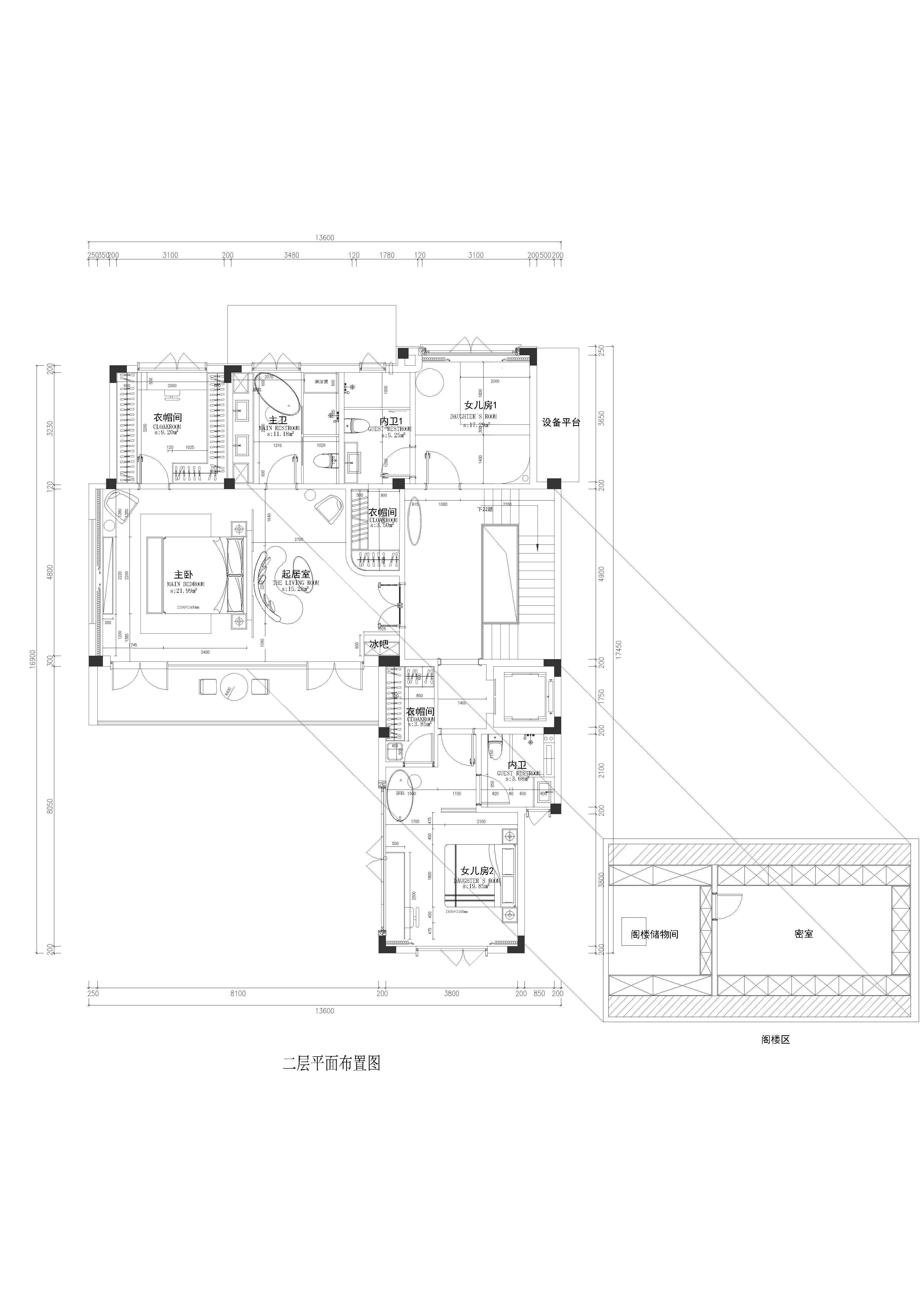
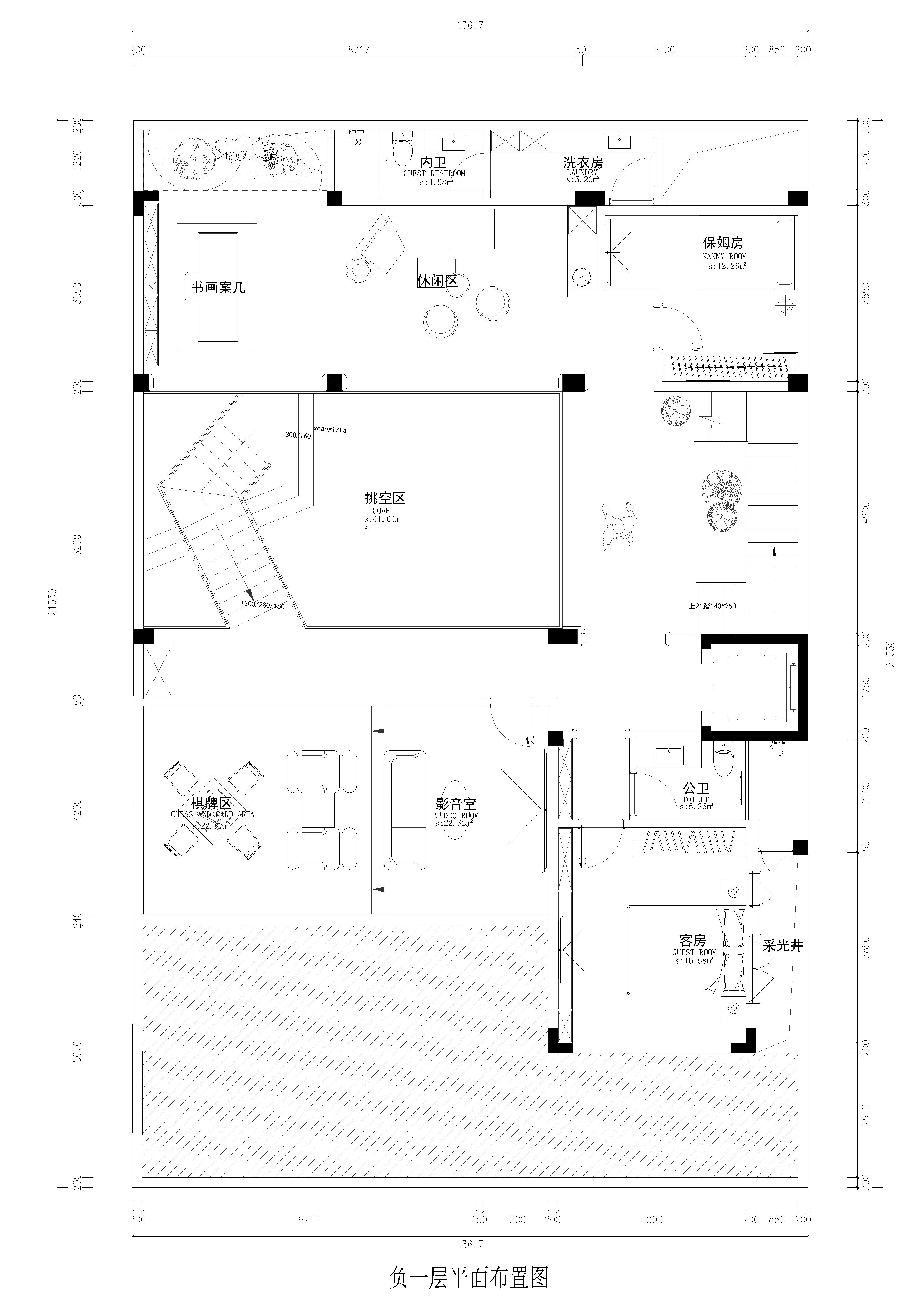
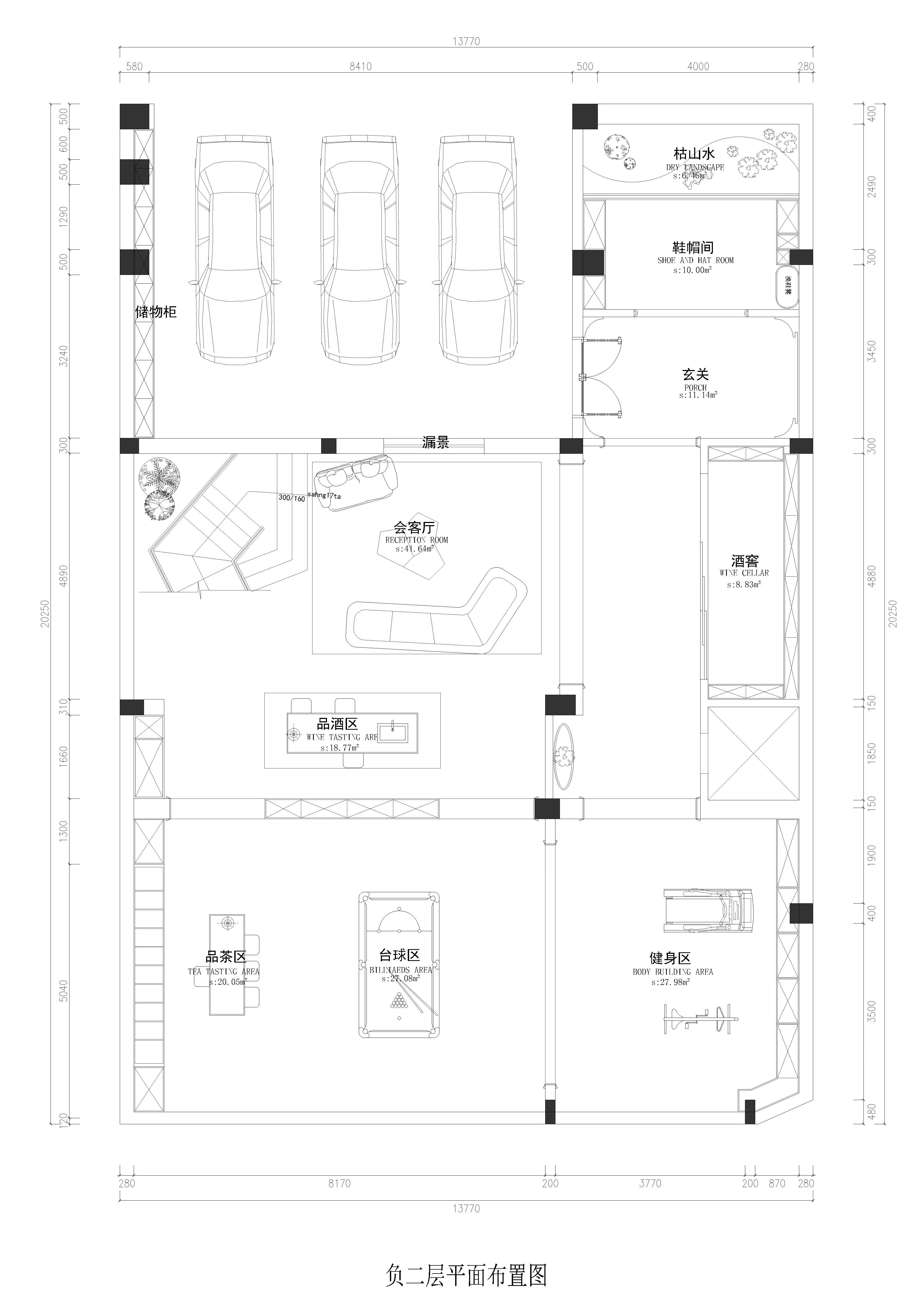
空间布局:地下室的挑空空间,楼梯的东迁西移,不仅延展了空间的叙事,更让每一次归离,都化作一场空间探索的奇妙旅程,尤其是那引领向下的阶梯,以西为引,开启了一段独树一帜的升腾体验,让家的每一个转身,都满载惊喜与期待。
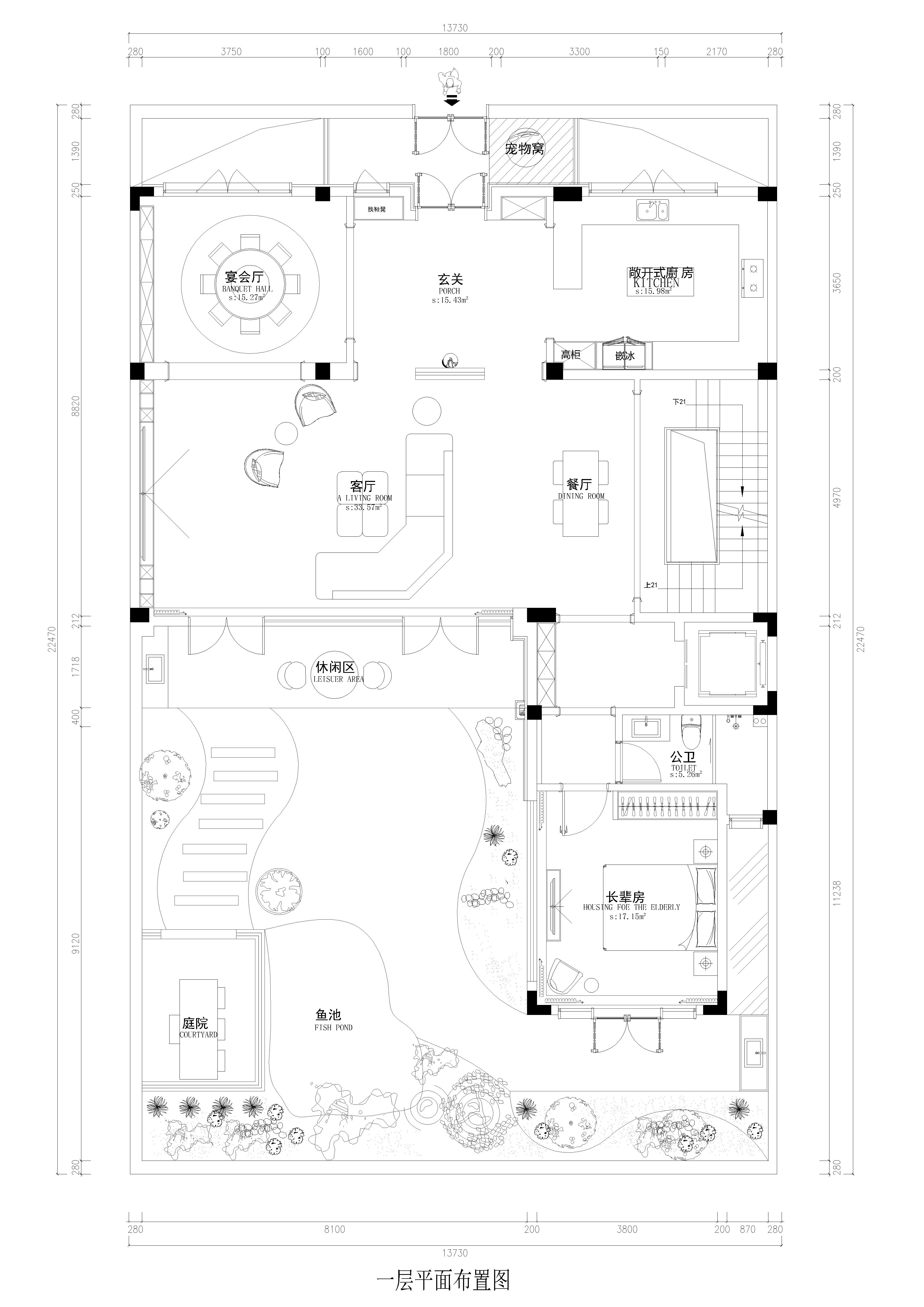
从住宅北侧的一口迈入,一楼设计的巧妙之处便悄然显现,顶面如意纹简化了繁琐的中式元素,又点缀了空间中应该呈现的东方意境。 -
设计选材:在色彩与材质的搭配上,巧融中式精髓与现代审美,深色基调与金色辉泽交织,打造出既奢华又不失温馨的空间氛围。这些富含传统美感的色调,不仅强化了新东方与新亚洲风格的内核,也与室外中式园林的景致相映衬,实现了内外空间的和谐统一。
-
用户体验:设计师对品质、细节与情感深度的极致追求,结合设计团队匠心独运,将中式元素提炼升华,与现代设计理念相融相生。经过设计师巧妙的设计,让这里不仅是一处居所,更是一种生活的艺术,让人在都市的喧嚣中,寻得一份自然的回归。
0
0

认证 · 让您身份增值