泷景别墅
288
作品说明
- 项目类型:别墅
- 项目地点:广州市
- 建筑面积:300㎡
- 项目造价:150万元
- 主案设计师: 陈广标
- 参与设计师:陈广标
- 竣工时间:2025年6月
- 设计机构:深思设计
-
项目定位:这个空间的项目定位是 “轻奢高定复式生活场域”
以 “层叠优雅 + 艺术质感” 为核心,
将复式结构的空间优势与细节美学结合:
用银杏纹理高墙、艺术吊灯强化挑空区域的视觉张力,
搭配低饱和软装与精致收纳区,
既保留复式空间的通透感,
又以轻奢材质传递品质;
精准瞄准追求 “空间层次感 + 生活艺术感” 的城市高阶家庭,
让复式空间成为 “舒适居住与审美表达的双重载体”。 -
空间意境:这个空间在环境风格上的创新,
是 “轻中式奢雅的现代解构”:
以挑空区域为核心,
用银杏纹理高墙替代传统中式装饰的繁复,
搭配艺术吊灯的金属柔化感,
打破复式空间的空旷疏离;
同时以低饱和软装 + 通透材质衔接上下层,
既保留东方美学的雅致底色,
又用现代轻奢的质感消解传统中式的厚重,
让 “优雅” 从装饰符号转化为沉浸式的空间情绪。 -
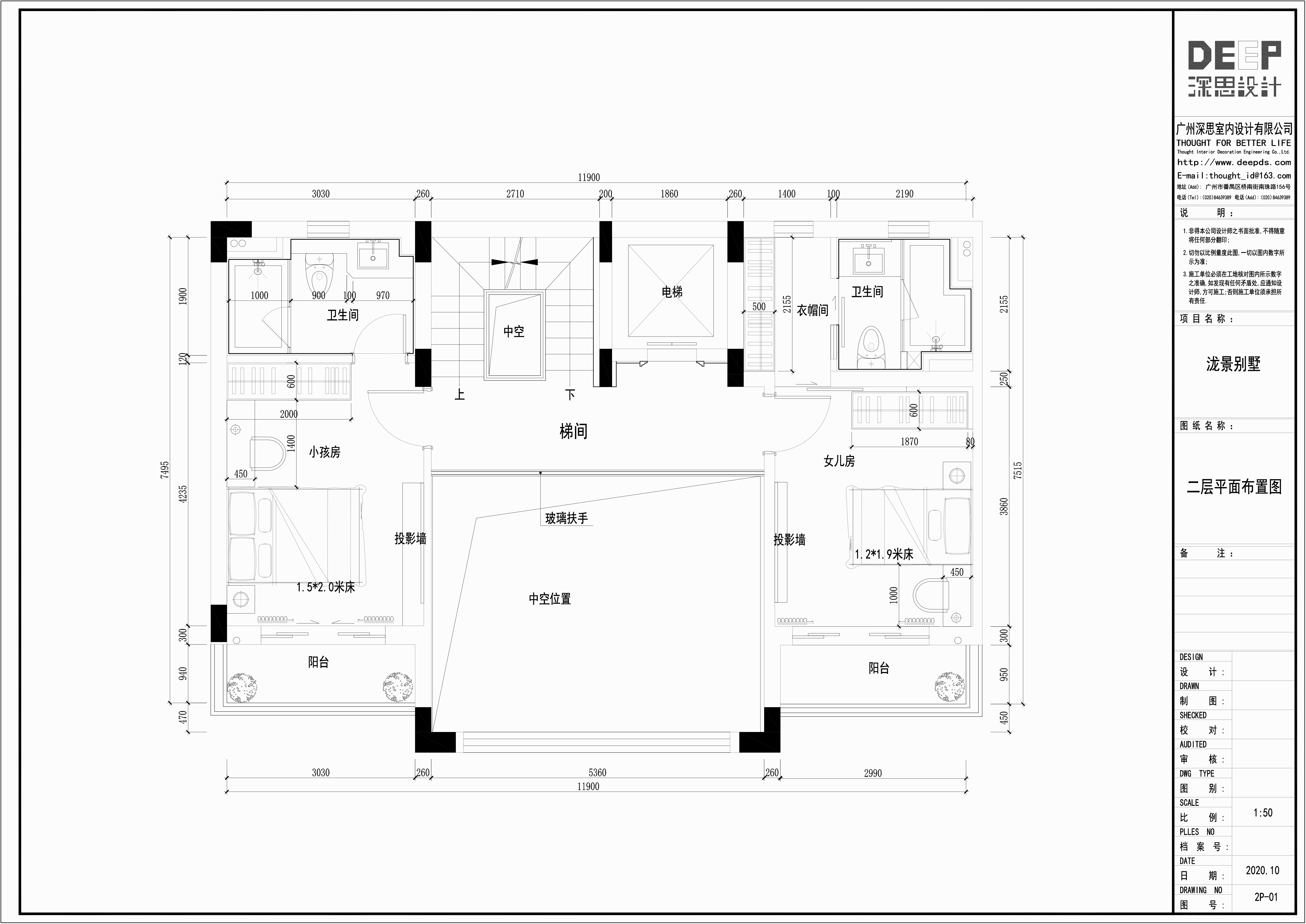
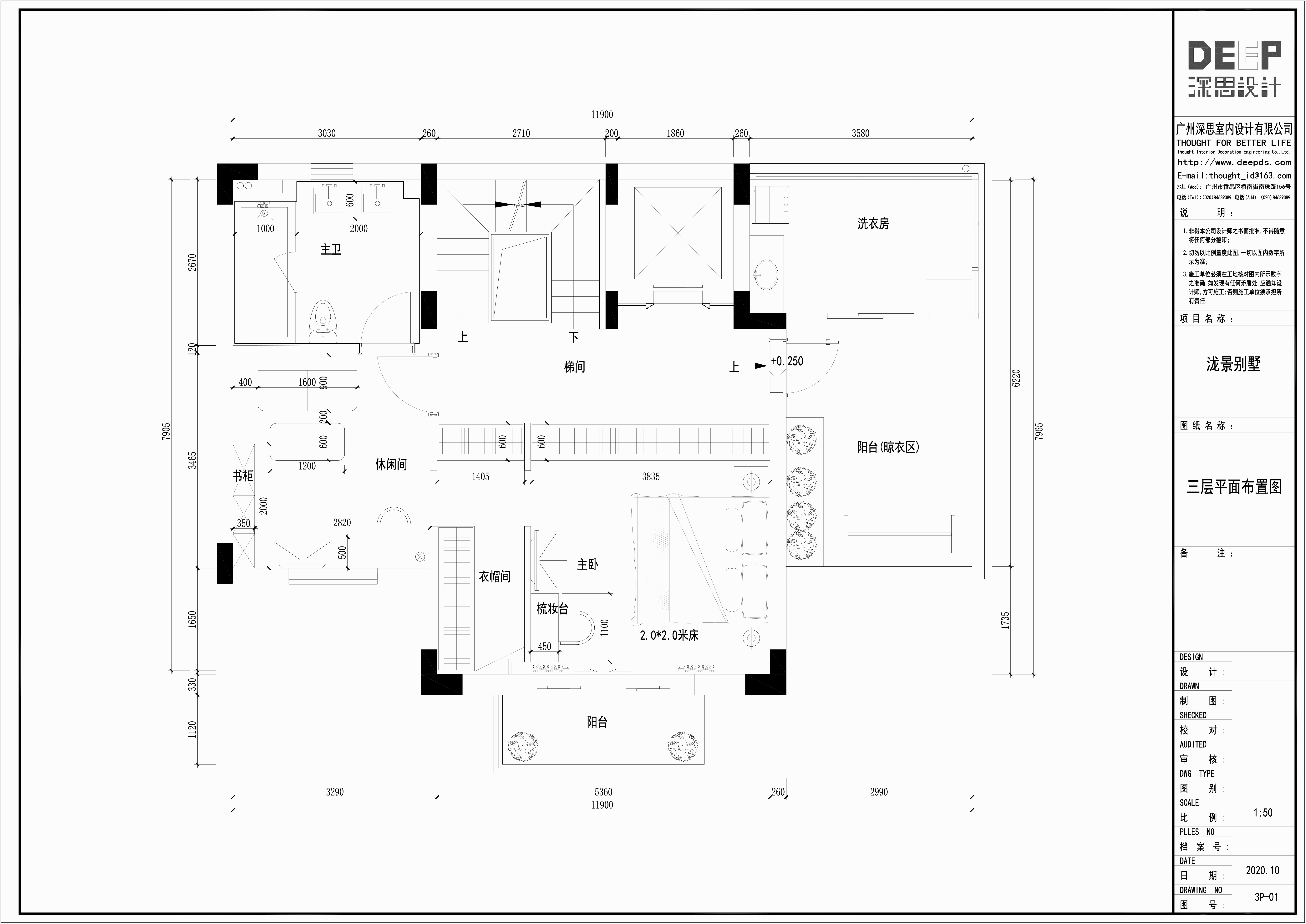
空间布局:这个空间在布局上的创新,
是 “复式结构的功能柔化衔接”:
以挑空区域为核心,打破上下层的物理割裂
上层回廊做通透过渡,下层将社交区与轻吧台以开放式动线串联,
既保留复式空间的开阔感,
又通过 “视线互融 + 功能联动” 消解分层的疏离感;
同时用弧形软装、通透材质弱化空间边界,
让复式结构的 “立体优势” 与 “生活舒适度” 实现双向适配。 -
设计选材:这个空间在选材上的创新,
是以 “质感平替 + 低碳复用” 平衡奢感与成本:
用艺术肌理墙板(替代实木雕花墙)还原中式雅致,
成本降 40% 且可回收;
挑空区采用高透玻璃(替代传统石材围栏),
轻量化降低运输能耗,
同时保留通透感;
软装选用高密环保面料(替代真皮),
耐用性提升的同时减少皮革加工碳排放。
整体在保证轻奢质感的前提下,
让项目综合成本减 30%、碳排放降 25%。 -
用户体验:这个空间投入使用后,
呈现出 “通透奢适的复式生活感”:
挑空区的光影与软装层次消解了复式的空旷,
轻吧台与社交区的联动让日常互动更自然。
用户评价集中在 “舒适与质感的平衡”
家庭用户称 “上下层动线流畅,
既能享开阔视野又不缺私密感”,
访客则提到 “材质细节显品质,待着放松又有格调”,
整体反馈是 “把复式空间的‘设计感’落地成了‘日常舒适感’”
0
0

认证 · 让您身份增值