琥珀时光
12
作品说明
- 项目类型:住宅公寓
- 项目地点:临沂市
- 建筑面积:180㎡
- 项目造价:110万元
- 主案设计师: 石涛
- 竣工时间:2025.11.20
-
项目定位:意式轻奢,木材、石材、金属为元素
-
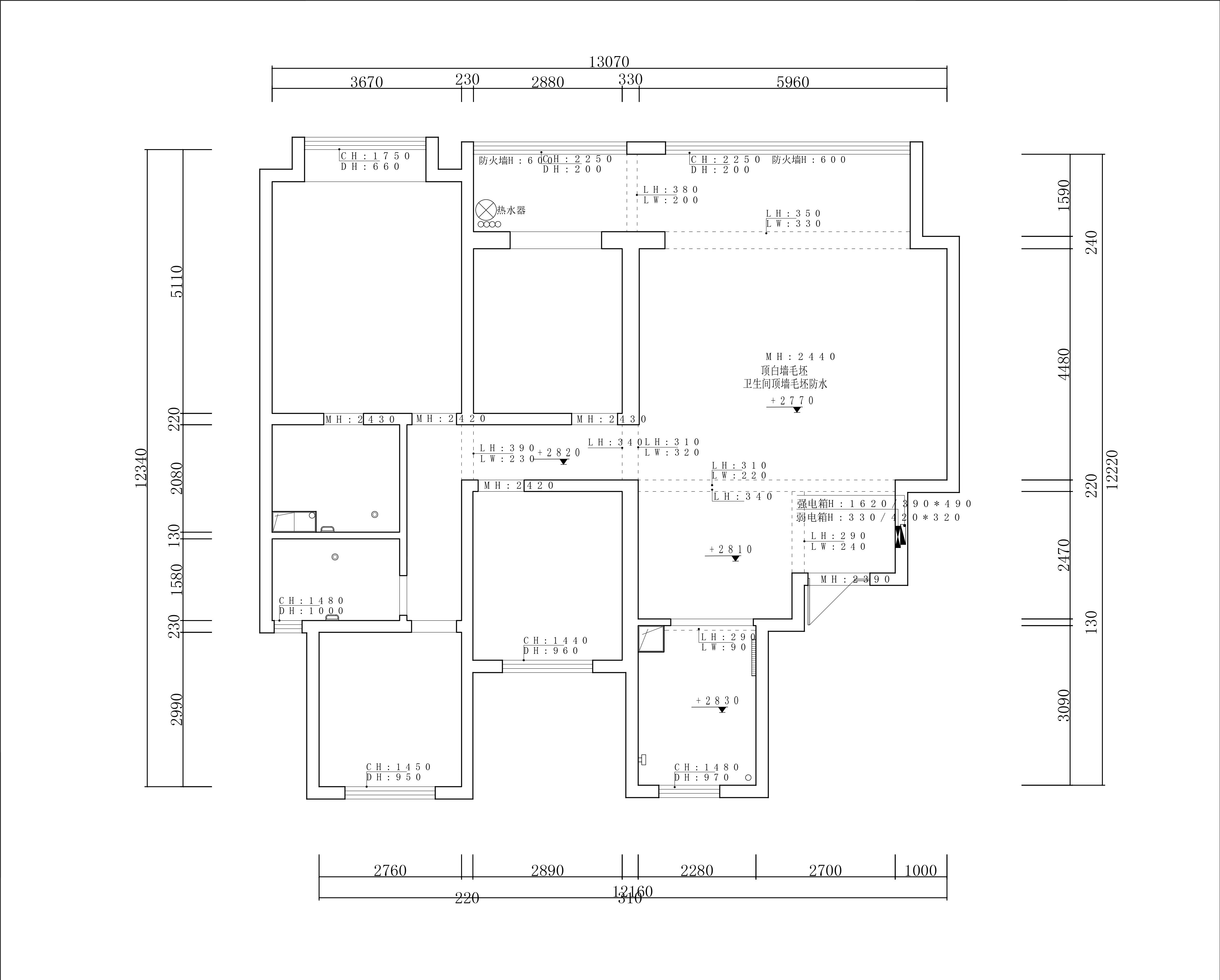
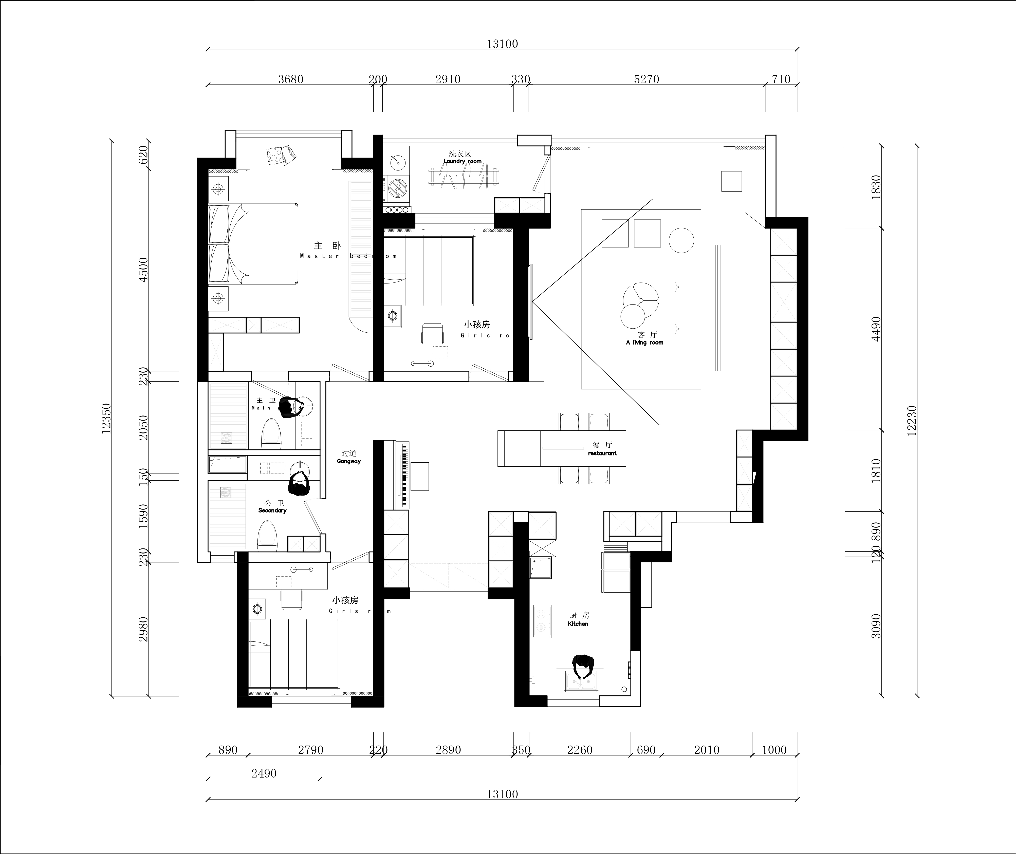
空间意境:卧室面积比较小,业主需要孩子有各自独立的学习空间,所以集中做了一个书房、收纳、以及钢琴区的一个公共空间,拆掉了一间卧室,解决了餐厅不足的问题
-
空间布局:原始户型餐厅位置不好用,四室变三室,不影响业主功能性的情况下解决餐厅问题
-
设计选材:业主平时不做饭,想做开放式厨房增加整体空间感,结合整体空间结构和木作,采用口袋移门的形式完全隐藏。
-
用户体验:业主非常满意,又介绍了两户业主施工,业主给我们当模特拍摄
0
0

认证 · 让您身份增值