云南昆明《滚滚剧场民谣》
39
作品说明
- 项目类型:休闲娱乐
- 项目地点:昆明市
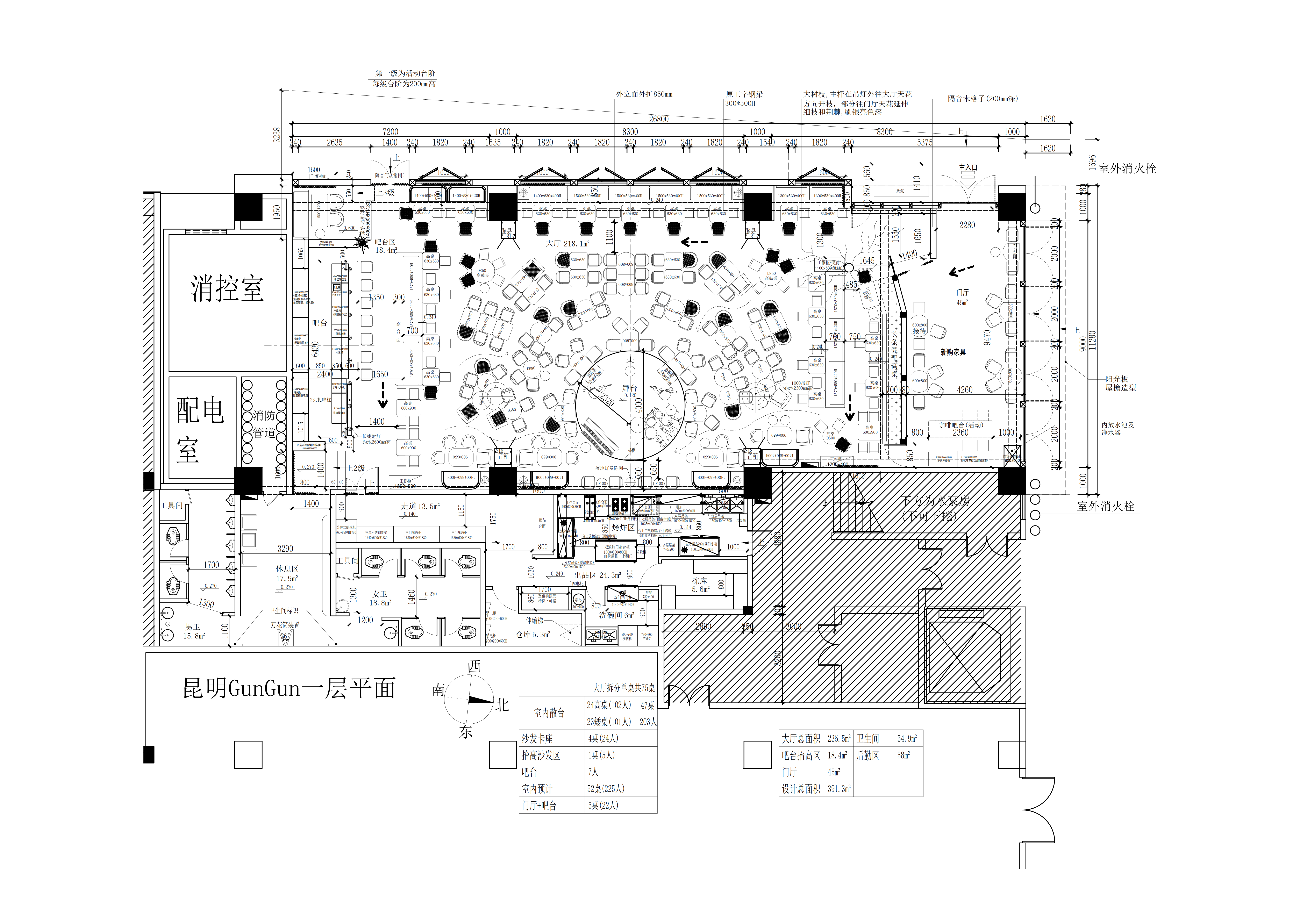
- 建筑面积:450㎡
- 项目造价:70万元
- 主案设计师: 赵俊
- 参与设计师:赵俊
- 竣工时间:2025年8月
- 设计机构:云南紫宸装饰设计工程有限公司
-
项目定位:本设计打破传统酒吧的封闭感,以 “一个开放的、可生长的云南文化聚落” 为概念,将空间划分为既独立又相互交融的四大剧场。一个以云南在地文化为灵魂,融合“日咖夜酒”、特色小吃、商业活动与民谣音乐研学为一体的复合式文化体验空间。它不止是一家酒吧,更是一个承载情感、交流文化与创造价值的“舞台”。
-
空间意境:整体空间设计叙事
本设计打破传统酒吧的封闭感,以 “一个开放的、可生长的云南文化聚落” 为概念,将空间划分为既独立又相互交融的四大剧场。
1. 主剧场:「剧场型·民谣酒馆」
· 视觉焦点: 中心区域打造一个环绕的Live舞台,主背景墙是一幅巨大的五路财神国潮手绘插画寓意财源滚滚、以云南多元化的名族文化为灵感的艺术装饰,色彩晕染如苍山洱海,又似声波扩散。
· 氛围营造: 夜晚,灯光模拟丽江古城的暖黄灯笼与彝族火把节的跃动光影,营造温暖、沉浸且充满能量的氛围。家具选用原木、粗犷石材与手工锻造金属,桌面镶嵌云南特色拼花。
· 文化元素: 墙面装饰着傣族锦布、藏族银饰以及悬挂的迁徙亚洲象插画以及文诗句,将音乐与文字的力量具象化。
2. 日间剧场:「保山小粒·精品咖啡馆」
· 场景转换: 白天,通过可调节的活动窗引入充足自然光,主舞台区域转换为休闲座区。灯光系统切换为明亮柔和的模式,象征从夜晚的激情到白日的宁静。
· 设计语言: 运用云南梯田的曲线元素打造咖啡吧台与卡座,绿植墙模拟西双版纳热带雨林的垂直生态。家具更为轻巧,采用藤编、竹木等材质,营造轻松、适于办公与社交的氛围。
· 特色体现: 咖啡菜单融入云南小粒咖啡产地故事,并推出“梅里雪山”(特调奶咖)、“洱海清晨”(冰滴)等具有地域特色的创意饮品。 -
空间布局:本空间布局的核心设计原则是 “动线高效、功能复合、场景无缝转换” ,以支撑“日咖夜酒+文化体验”的复合商业模式。布局旨在创造流畅的客户体验与高效的运营后台,确保各功能区既独立完整,又相互赋能,形成一个有机的整体。一、 总体布局规划:四大剧场的立体融合
整体采用 “中心辐射,动静分区,垂直渗透” 的布局策略。
· 中心舞台(核心磁场): 将「民谣酒馆」的演出舞台置于物理与视觉的中心位置,形成最强吸引力。围绕舞台,设置层层抬升的环抱式客座区(如梯田意向),确保各处均有良好的观演视角,营造沉浸式剧场氛围。
· 功能环绕(业态支撑): 其他功能区如卫星般环绕中心布置,形成紧密而高效的连接。
· 垂直分区(动静分离): 利用挑高空间,设置局部夹层或阁楼作为相对独立的「研学与活动空间」,实现动静分离,互不干扰。
-
设计选材:可持续性创造的品牌与经济双重价值
“滚滚民谣剧场”的选材与系统设计,是一场深思熟虑的价值投资:
· 环境价值(低碳): 通过本地化、再生化选材,显著降低了项目的“碳足迹”,响应全球可持续发展目标,塑造负责任的品牌形象。
· 经济价值(节流): 智能系统降低每日能耗,模块化家具减少重复投资,耐久材料节约长期维护成本。这些举措直接提升项目的运营利润率,让“财源滚滚”建立在坚实的成本控制之上。
· 文化价值(开源): 每一块旧木、每一片绣片都承载着云南故事,成为空间独一无二的记忆点与传播素材,极大地增强了品牌的吸引力和溢价能力,从另一个维度“开源”。
因此,本设计中的低碳与经济性策略,绝非成本妥协,而是驱动品牌走向长盛不衰的核心创新引擎,真正实现了“山川入酒”的自然哲学与“声生不息”商业生命的完美统一。 -
用户体验:体验即品牌
在「滚滚民谣剧场」,用户体验被系统性地设计为一条 “发现-探索-沉浸-参与-分享” 的完整价值链。它通过全感官的调度、场景化的叙事和充满人文关怀的细节,将“云南文化”、“民谣音乐”和“社交生活”转化为可感知、可参与、可记忆的生动瞬间。最终,用户体验本身成为了品牌最有力的叙述者,驱动着口碑传播与反复到访,真正实现“声生不息,人潮滚滚”的商业愿景。
0
0

认证 · 让您身份增值