光序.映境
7
作品说明
- 项目类型:别墅
- 项目地点:台湾
- 建筑面积:610.6000㎡
- 项目造价:1100.0000万元
- 参与设计师:洪銘憶/許雅涵
- 竣工时间:2024/12
- 设计机构:彥霖室內裝修設計有限公司
-
项目定位:以「現代輕奢 × 人文雅韻」為核心定位,透過石材的沉穩質感、木質的溫潤語彙及光影層次的引導,形塑出兼具精品酒店質感與居家溫度的生活場景。設計策畫以居住者的日常體驗為主軸,將寧靜、秩序與舒適集結於一體,並以圓形餐區與視覺焦點牆面構成空間主視覺,使整體風格在柔與剛、冷與暖之間達到平衡與高度辨識度。
-
空间意境:以「光影情境」與「材質對話」為亮點。日與夜呈現截然不同的氛圍:白天以自然光與柔色材質形成溫潤敞亮的感受;夜晚則透過可調式光圈、天花光帶與展示櫃線燈,營造沉浸式的情境美學。木質垂直線板與大理石背景牆的並置,使材質之間產生節奏感與深度,使空間風格不僅美觀而富層次,充滿精品櫥窗般的視覺張力。
-
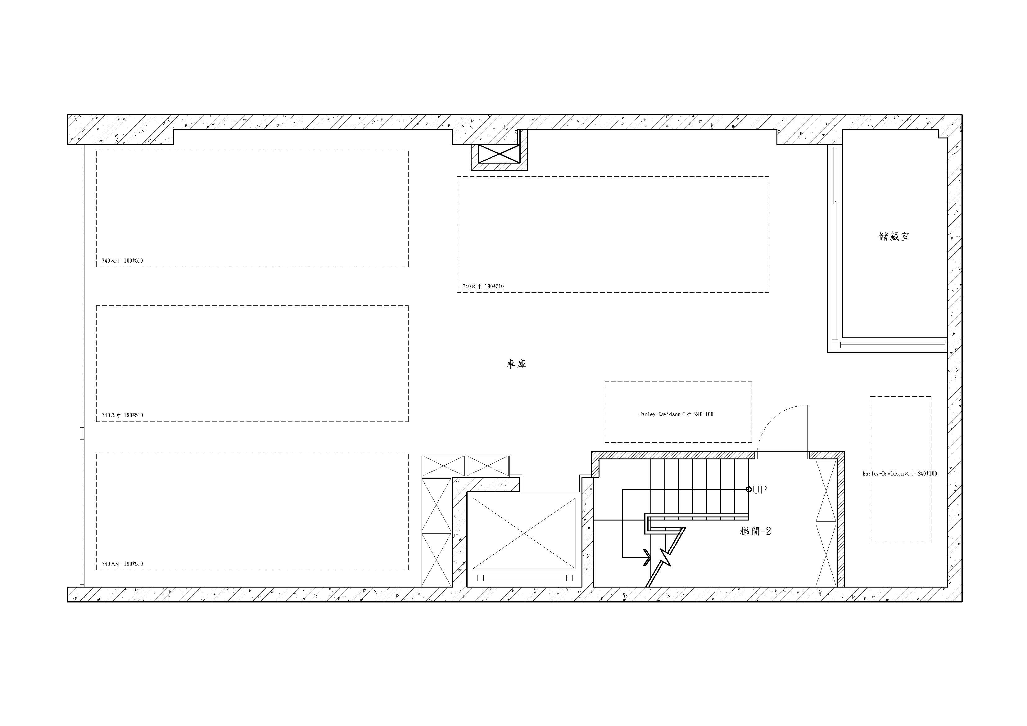
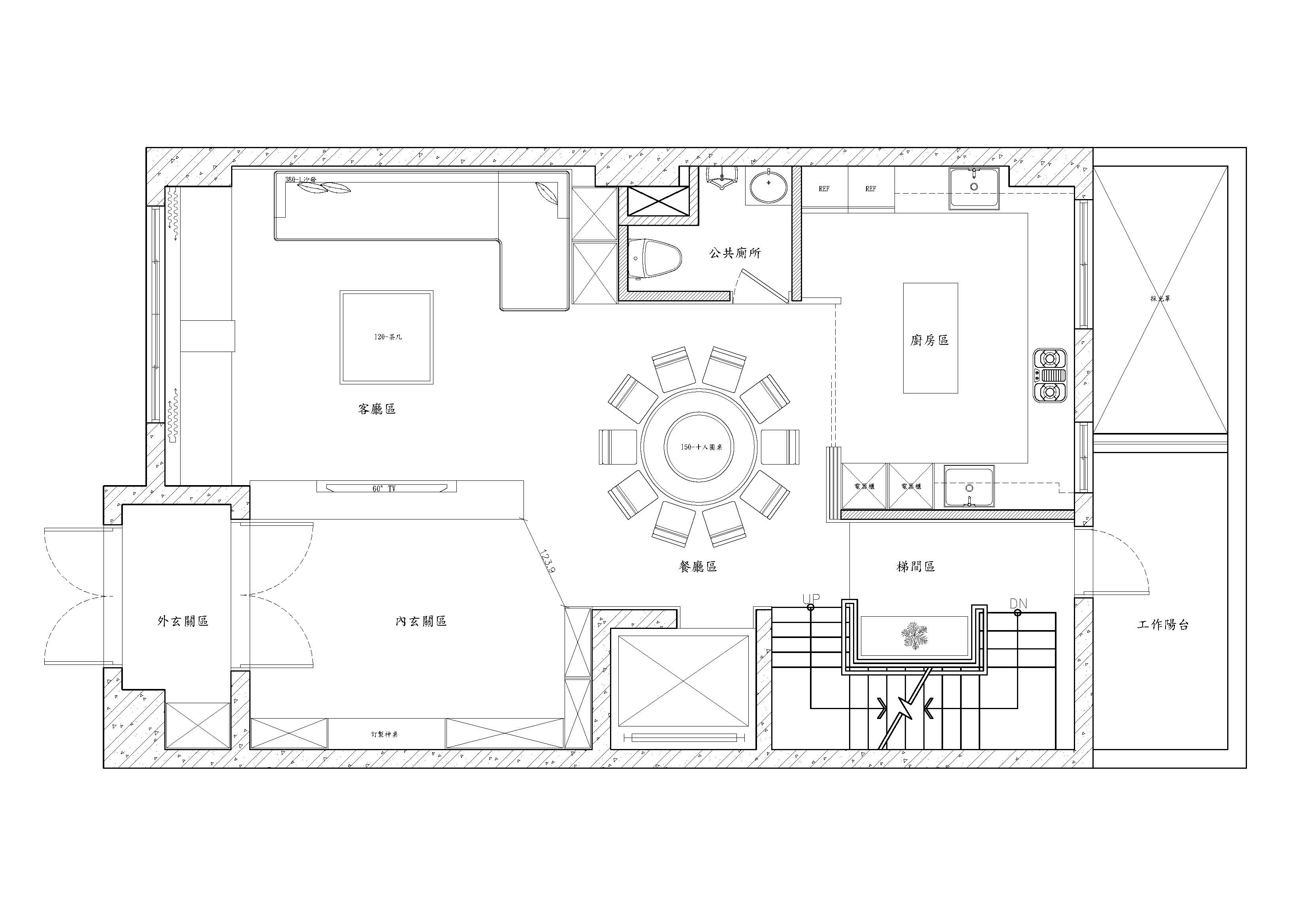
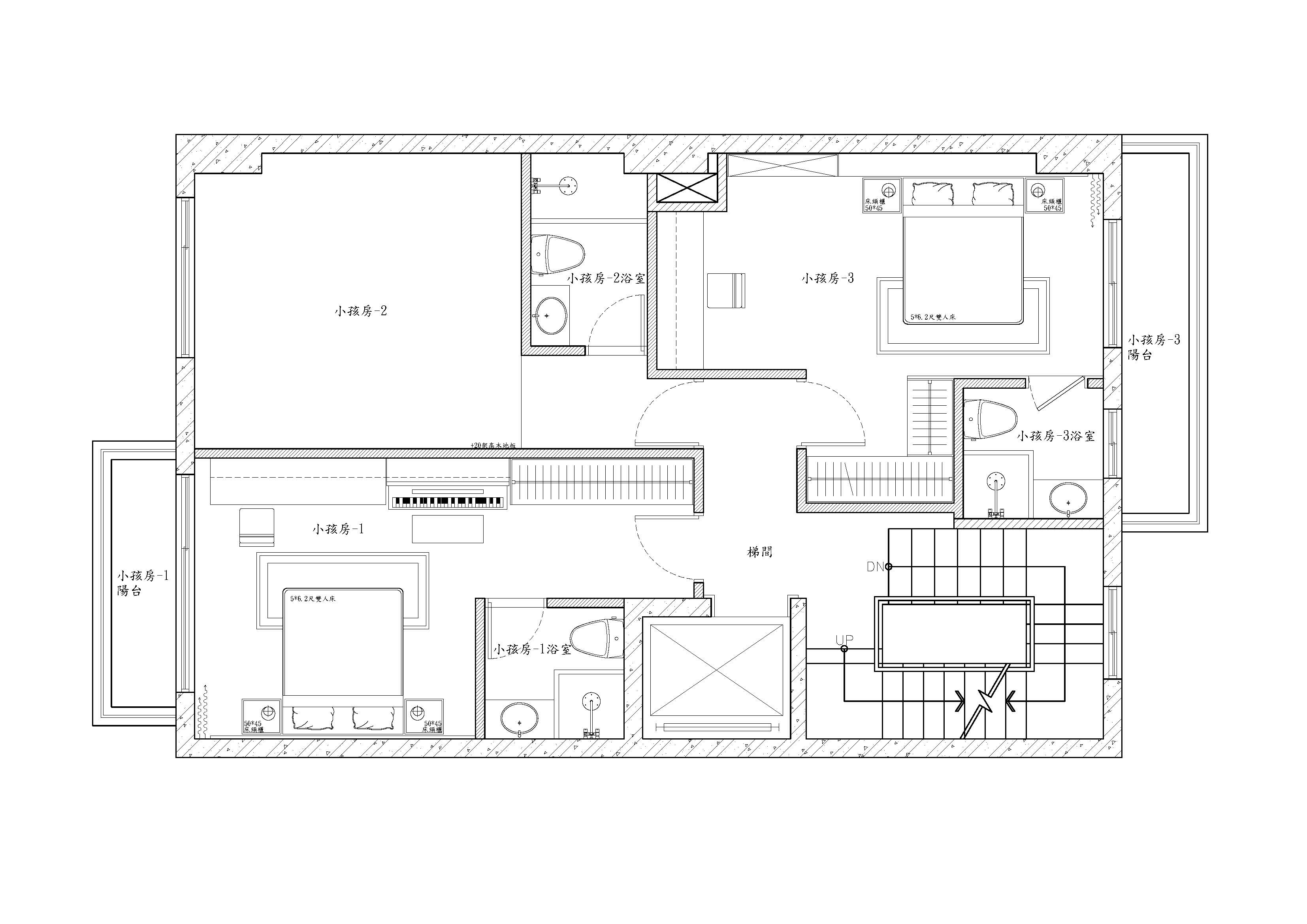
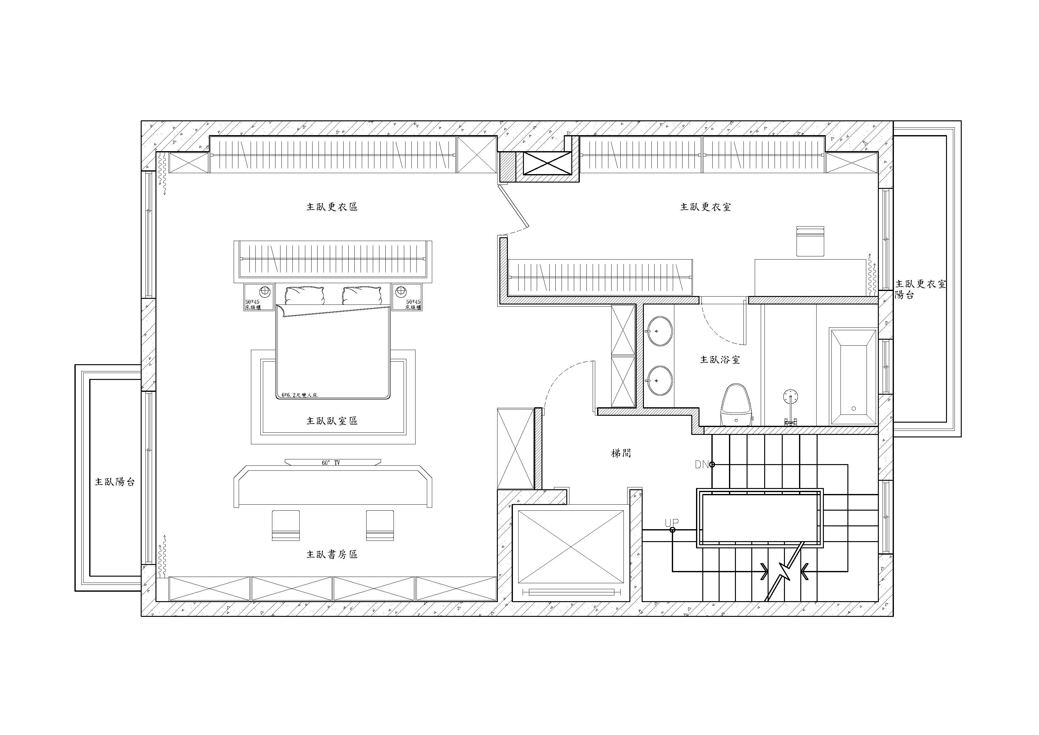
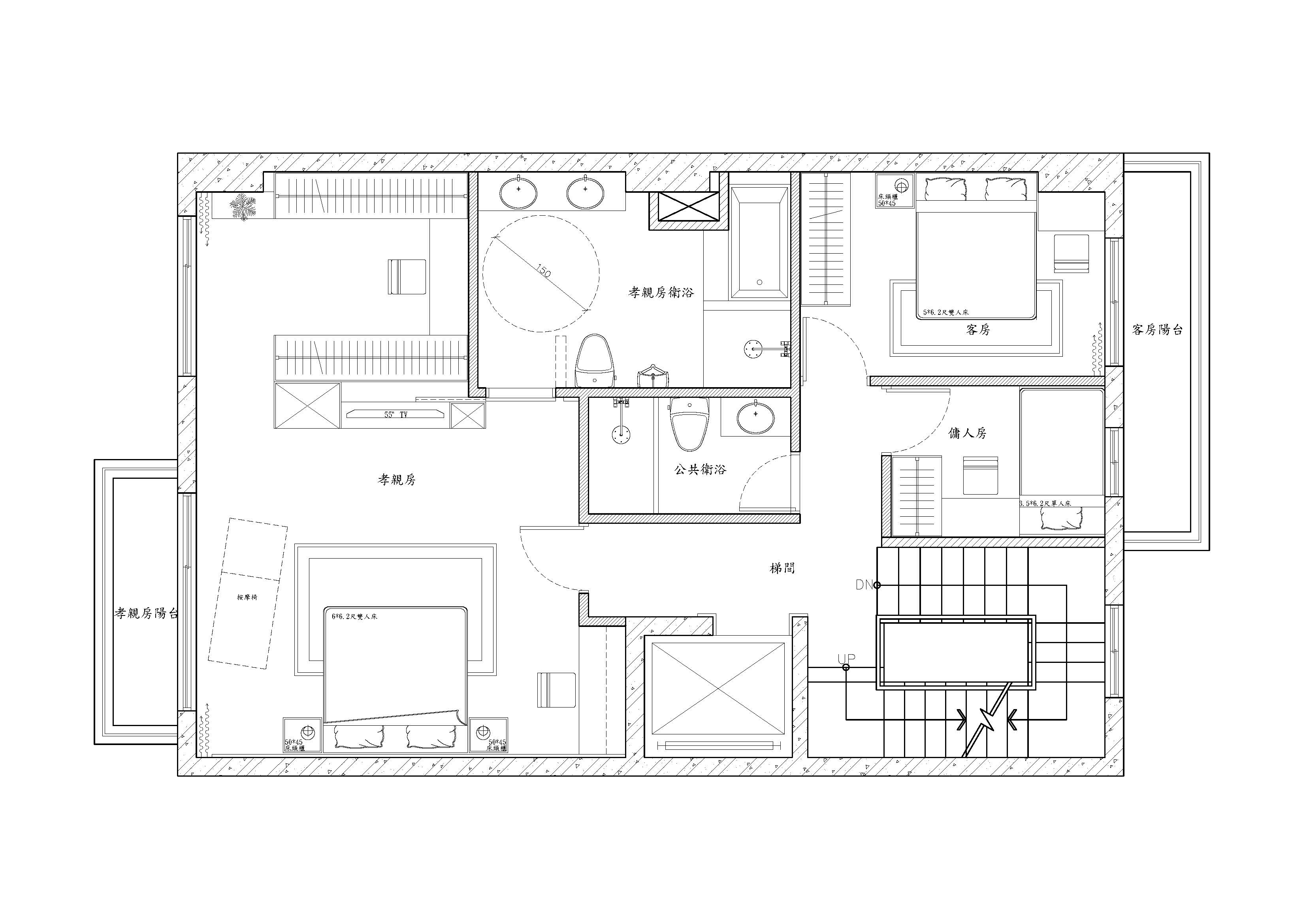
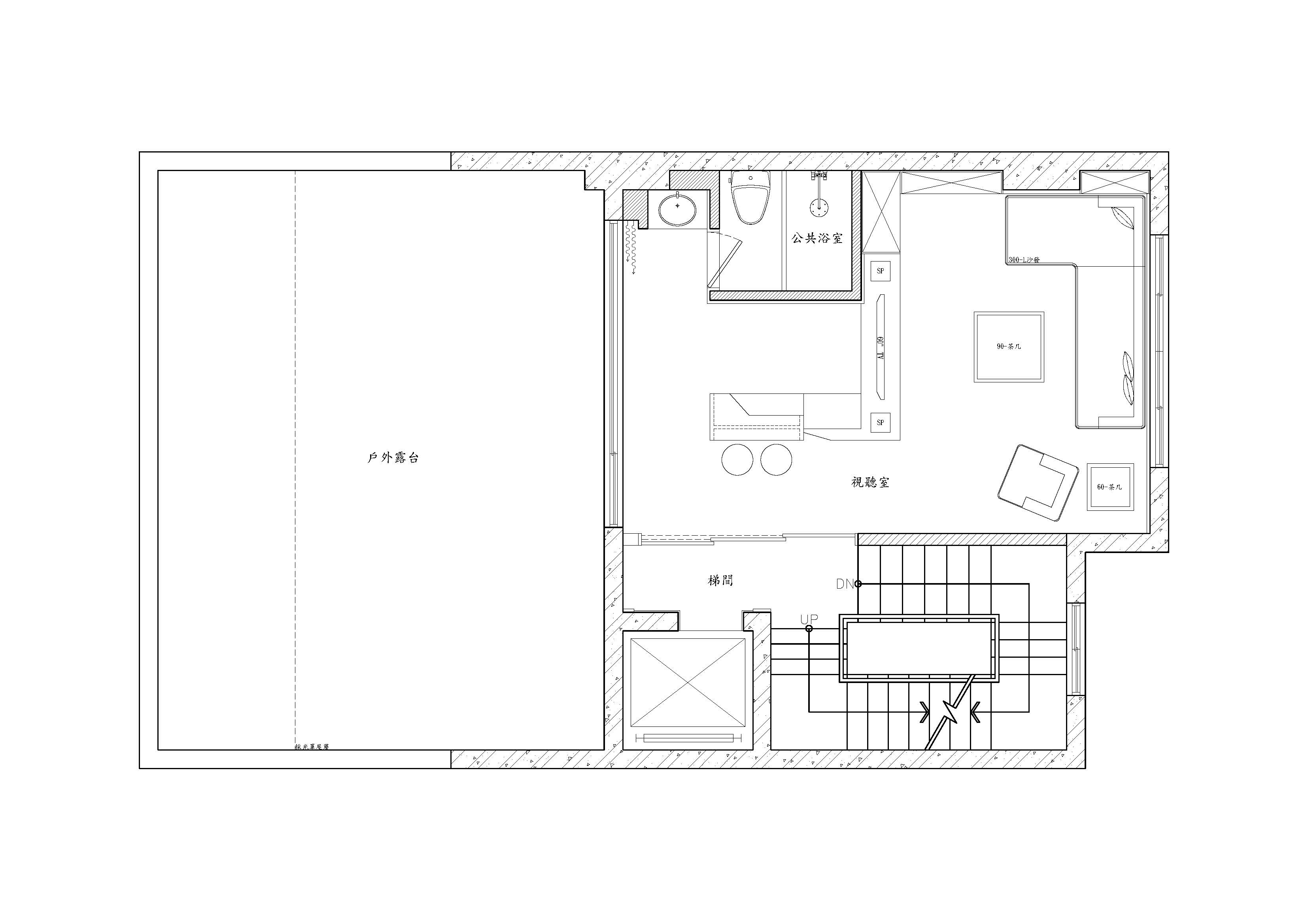
空间布局:空間佈局的創新集中在「開放但清晰分區」與「多機能量體整合」。餐、客廳以家具、矮牆及背景牆語彙自然定義區域,保持開放視野又無互相干擾;圓形餐桌被置於空間中心,搭配雕塑感吊燈,形成全宅動線的核心。主臥採用結合床頭背板、收納、展示與隔間功能的量體,使更衣區與睡眠區既界定又連續,打破傳統厚實隔牆,拓展視覺深度並提升空間彈性。
-
设计选材:材料選用注重美學、結構與永續三者的平衡。大面石材採用複合材料或薄板形式,以減少石材使用量與重量,降低施工能耗與碳排;木作大量使用科技木皮或環保木皮,取代實木並兼具成本與穩定性;家具以金屬腳架、可替換面料的椅面延長使用壽命;全室採用 LED 光源,提高能源效率並降低維護成本。整體材料策略兼具永續性、耐用度與經濟性,符合現代低碳住宅的設計指標。
-
用户体验:自然光與間接光源的層次讓屋主在日常生活中享受穩定且可調控的光環境;開放格局使家庭互動更自然順暢。材料表面好清潔、耐磨、耐用,維護負擔低;主臥量體整合設計深受使用者肯定,認為創新且實用。整體強調本案在美學、人性化與永續性中取得優異平衡,是兼具質感與實際生活需求的住宅。
0
0

认证 · 让您身份增值