莱昂传媒
3
作品说明
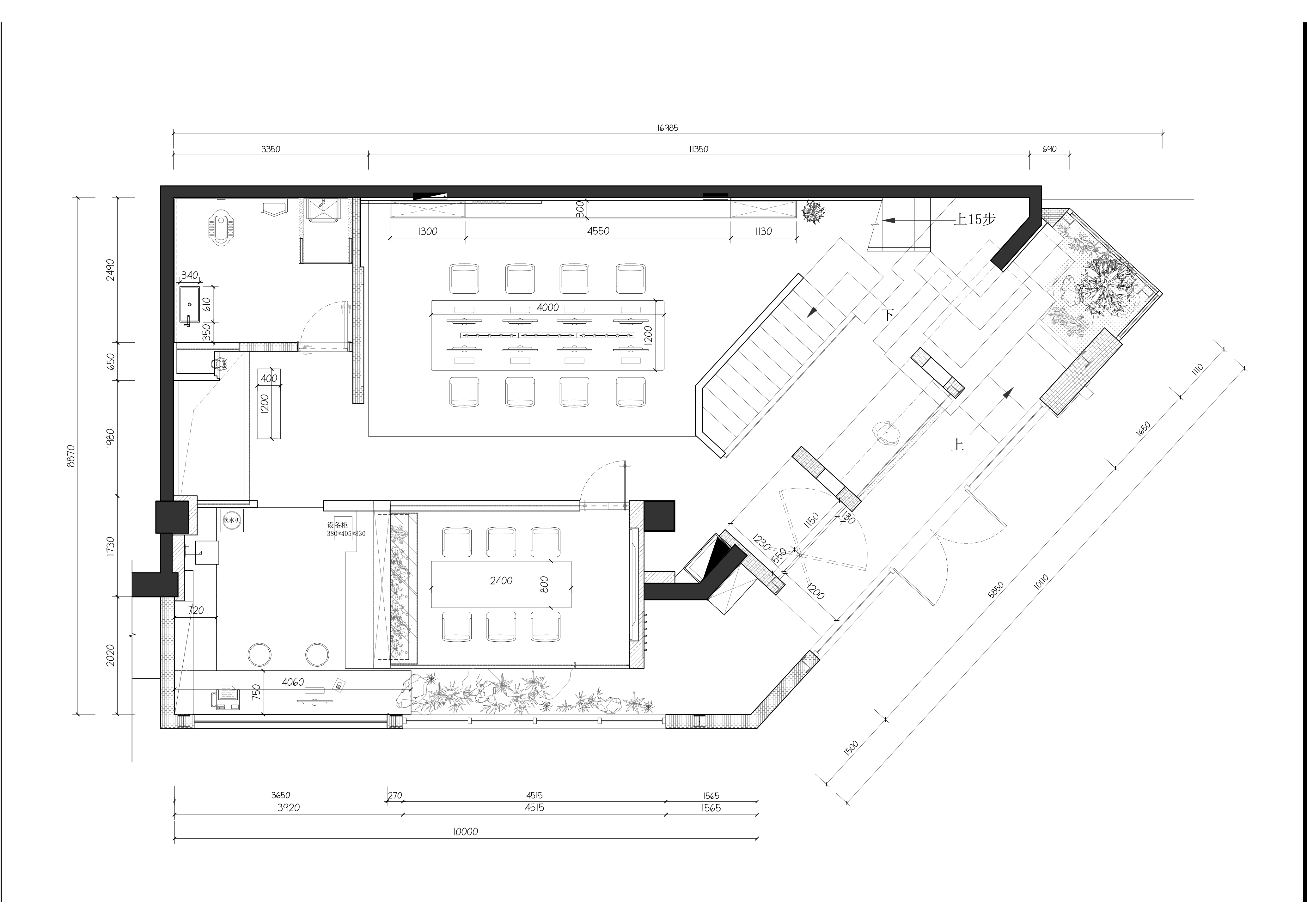
- 项目类型:办公
- 项目地点:晋中市
- 建筑面积:300.0000㎡
- 项目造价:150.0000万元
- 参与设计师:张砚冰
- 竣工时间:2025.07
- 设计机构:斑斓空间设计
-
项目定位:本项目以 “自然质感 × 现代功能” 为核心,在原有极简框架上,强化 “材质温度 + 空间互动” 的设计逻辑,适配传媒行业的创意与协作需求。
-
空间意境:空间延伸:材质与光影的层次深化
外观升级:夜景下,浅米色石材与深色金属的对比,搭配内透灯光与局部绿植装置,既保持都市语境的轻盈感,又通过灯光层次强化品牌辨识度;
材质叙事:以暖调木饰面为基底,融入混凝土柱、大理石纹理等自然质感材料,平衡现代办公的理性与自然松弛感;顶面的悬浮式灯光与天窗设计,让自然光与人工光交织,消解空间压抑感。 -
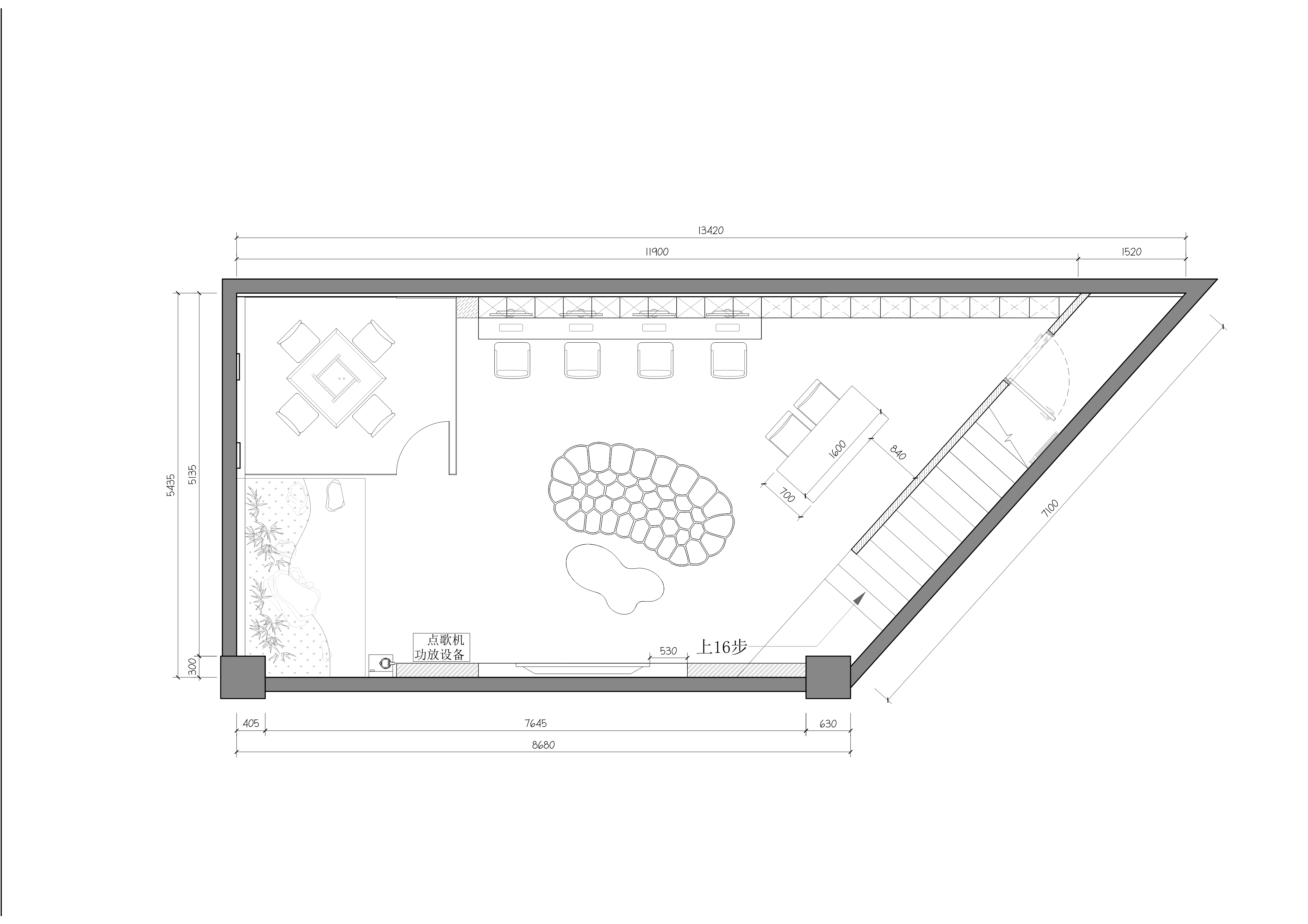
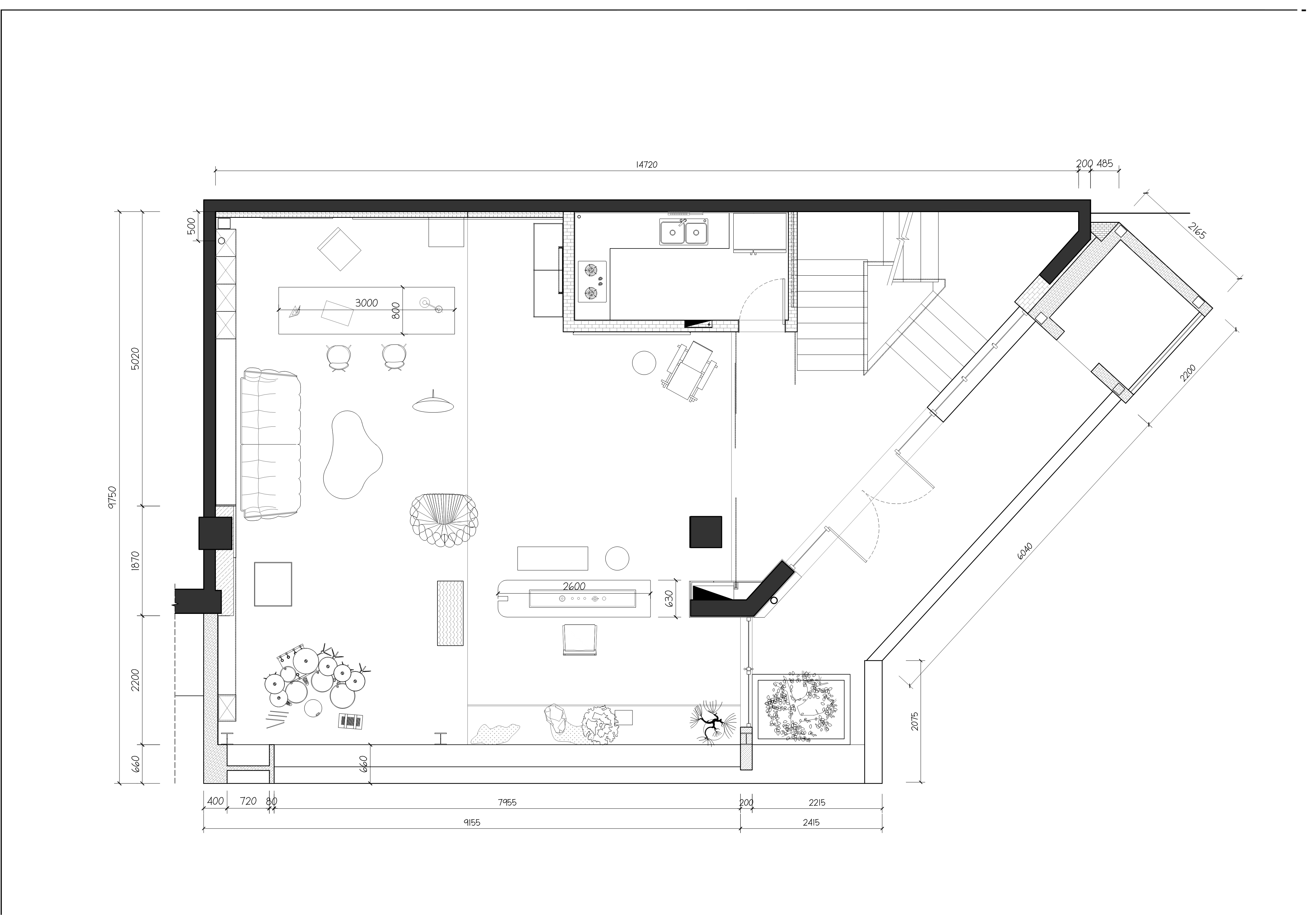
空间布局:开放办公区:模块化工位搭配穿孔板收纳墙,既满足高效办公需求,又通过灵活置物设计适配创意展示;
互动区域:增设可移动桌椅的共享区,结合室内微景观(乔木、苔藓),打造 “办公 + 休闲” 的复合场景;悬浮楼梯以灯光嵌入踏步,搭配镜面立柱标识,既强化动线引导,又通过通透设计保持空间联动。 -
设计选材:艺术插画、潮玩摆件等软装,呼应传媒行业的创意属性;玻璃隔断 + 局部红框点缀,在保证空间通透的同时,形成视觉焦点。整体设计以 “去装饰化” 手法,通过材质、光影、场景的叠加,实现 “高效办公 × 自然松弛” 的双重体验。
-
用户体验:访客对空间的第一印象集中于 “设计质感” 与 “品牌调性”:浅米色石材与深色金属的外立面搭配夜景灯光,强化品牌辨识度;室内艺术插画、潮玩软装与红框玻璃隔断的视觉焦点设计,直观传递传媒行业的创意属性,多位合作方评价 “空间设计既体现专业度,又能感受到团队的创意活力,与品牌定位高度契合”。
0
0

认证 · 让您身份增值