映光之境
6
作品说明
- 项目类型:住宅公寓
- 项目地点:台湾
- 建筑面积:96.8000㎡
- 项目造价:500.0000万元
- 参与设计师:洪銘憶/許雅涵
- 竣工时间:2025/01
- 设计机构:彥霖室內裝修設計有限公司
-
项目定位:整體以「靜奢」為核心語彙,設計上意圖將居住的日常升級為具有精品酒店氛圍的生活體驗。從光影到材質的每個細節都以「舒適的秩序」作為定位,讓空間在現代簡約之下保有溫度與精緻度。住宅不以繁複造型堆疊視覺,而是以柔光、低彩度與精緻線條呈現高度的沉穩平衡,使居住者在回到家的瞬間即可感受到節奏放慢的力量。
-
空间意境:空間以深色鏡面與淺木地坪形成獨特的反差暖度,創造出介於奢雅與溫潤之間的「精品居家氣質」。透過鏡面材質延伸空間尺度、間接照明柔化全域氛圍、弧形介面修飾銳角視覺,使整體環境呈現柔中帶亮的深度美學。這些環境手法使作品在同類型住宅中展現獨特風格語彙,既安定、又精緻。
-
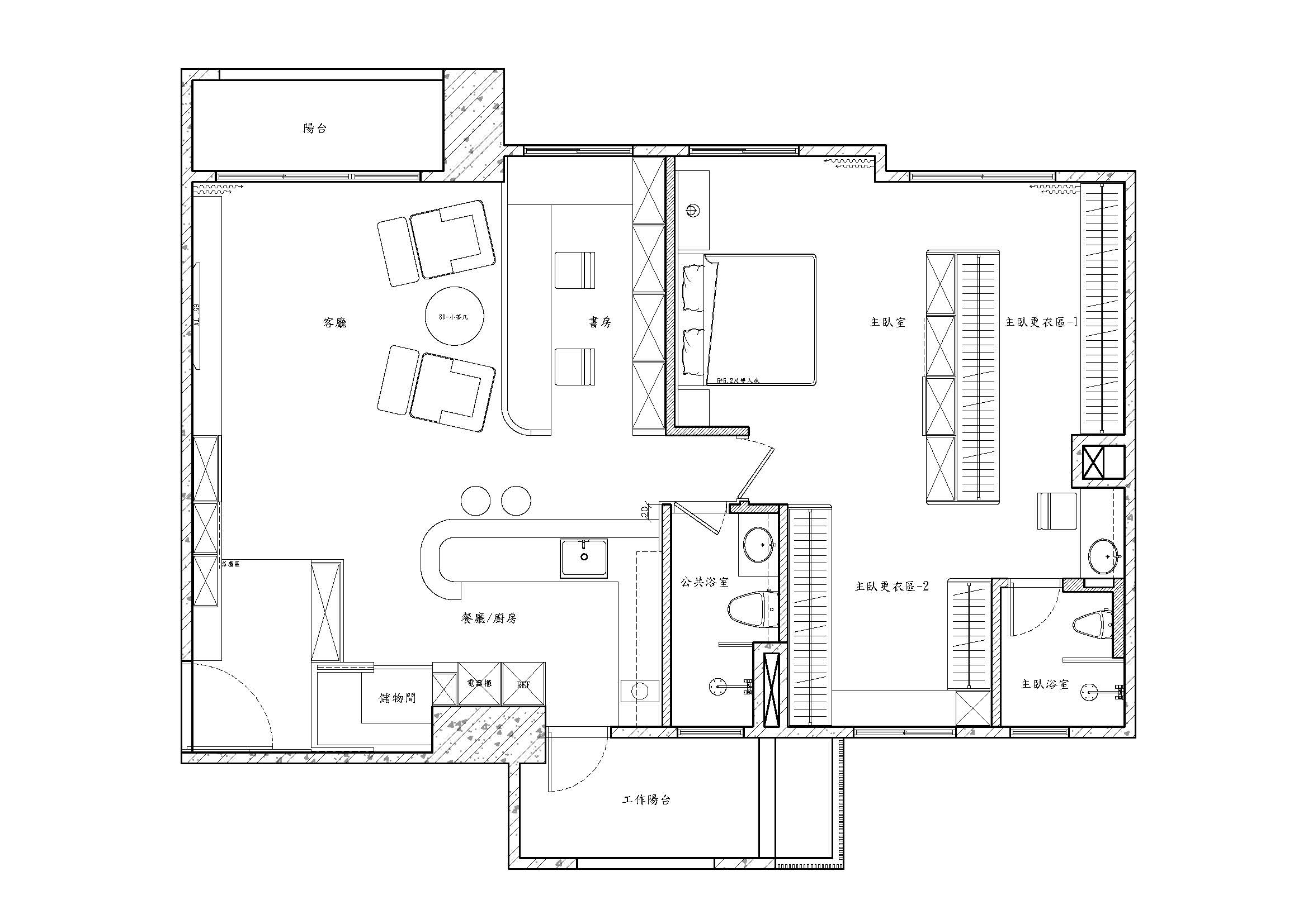
空间布局:在空間佈局上,設計透過開放與半開放的組合突破傳統住宅配置。書房以低矮弧形牆體與上方鏡面櫃界定範圍,在保持視覺穿透的同時提供足夠的專注性;中島則串連玄關、餐廳與客廳,成為空間動線的核心,為居住者建立自然流動的生活路徑。臥室回歸純粹,利用單純線條與光影層次取代造型,使休憩場域保持高度靜謐。
-
设计选材:材料選擇則聚焦在低碳、可回收、好維護的方向。地坪採用低甲醛、高耐磨材料,具備環保、耐用與經濟性;立面多以系統板材、金屬鏡面與木皮組構,減少施作損耗並降低後期替換成本;照明以全區 LED 與間接光為主,兼顧節能與柔和氛圍。整體選材策略在確保質感的前提下,也展現對永續與長期使用效率的重視。
-
用户体验:屋主入住使用後評價,空間呈現出高舒適度、高整潔度與高穩定性的綜合效果。隱藏式收納帶來乾淨的生活畫面,柔光與低彩度配色讓視覺壓力大幅降低,長時間停留仍感放鬆。動線順暢、採光良好、材質好維護,使居住者的日常體驗更輕鬆。整體表現獲得正向回饋,不論在功能或氛圍上都貼近理想居住狀態,展現出原規劃精品住宅應有的細膩和穩定度。
0
0

认证 · 让您身份增值