天逸湾新作 | 黑白有间
117
作品说明
- 项目类型:别墅
- 项目地点:湖州市
- 建筑面积:300㎡
- 项目造价:150万元
- 主案设计师: 况倩倩
- 参与设计师:苏远芳
- 竣工时间:2024年12月5日
- 设计机构:长兴汤臣装饰
-
项目定位:本项目以赫尔曼·黑塞“内心有既定路程的星辰”为精神内核,构建超越时空的静谧居所。设计以极致黑白为语言,通过光影叙事、材质对话与情感动线,诠释现代极简美学的深度价值。
以极简黑白筑居,承载温情团圆,于空间中安放自我意识与生活本真 -
空间意境:借光影、庭院造景,黑白碰撞延展情绪,勾勒雅静高级的人居氛围
-
空间布局:台阶递进引动线,厨餐区聚温情,预留通透空间让光线与温度共生
-
设计选材:钢板、玻璃、岩板低碳适配,质感与经济性兼顾,演绎极简美学
-
用户体验:私密舒适的空间承载家人闲聚,予人安全感与归属感,留存生活诗意
经典的黑白演绎极简, 雅静的空间恰好纳入光线, 在黑白之间是天光的乍现, 在起承之间是步步向上的台阶, 在内外之间是自我意识的完整呈现。 钢板的极致简练, 玻璃的通透蜿蜒, 色调延伸向上, 两种材质同频共振, 呼吸吐纳间尽是怡然。
层层铺垫的色系进程, 逐渐递进的情绪传递, 大面积的黑白碰撞, 局部的巧思点缀, 岩板的潜移默化之下, 如潘多拉的魔盒打开, 牵引着艺术的前行。 当烟火熄灭, 在家人团圆, 精致的厨餐区承载着的, 是对温暖与温情的留恋。
在此随意停歇, 在此畅所欲言, 在属于你我的天地。 在绝对领域预留足够空间, 让光线畅通无阻地进入, 让温度在一个稳定的关系内恒定。
最私密也最舒适, 黑色带来绝对的安全感, 黑色带来高级的震撼感, 黑色带来超优越的质感。 “使生活如此美丽的, 是我们藏起来的真诚和童心。” 愿少时积攒的爱会成为守护你一生的光。
庭院深深深几许, 四季轮转换新装, 热烈的秋色点燃深冬, 长情的翠绿点缀清冷, 在这一方庭院偷闲半晌。
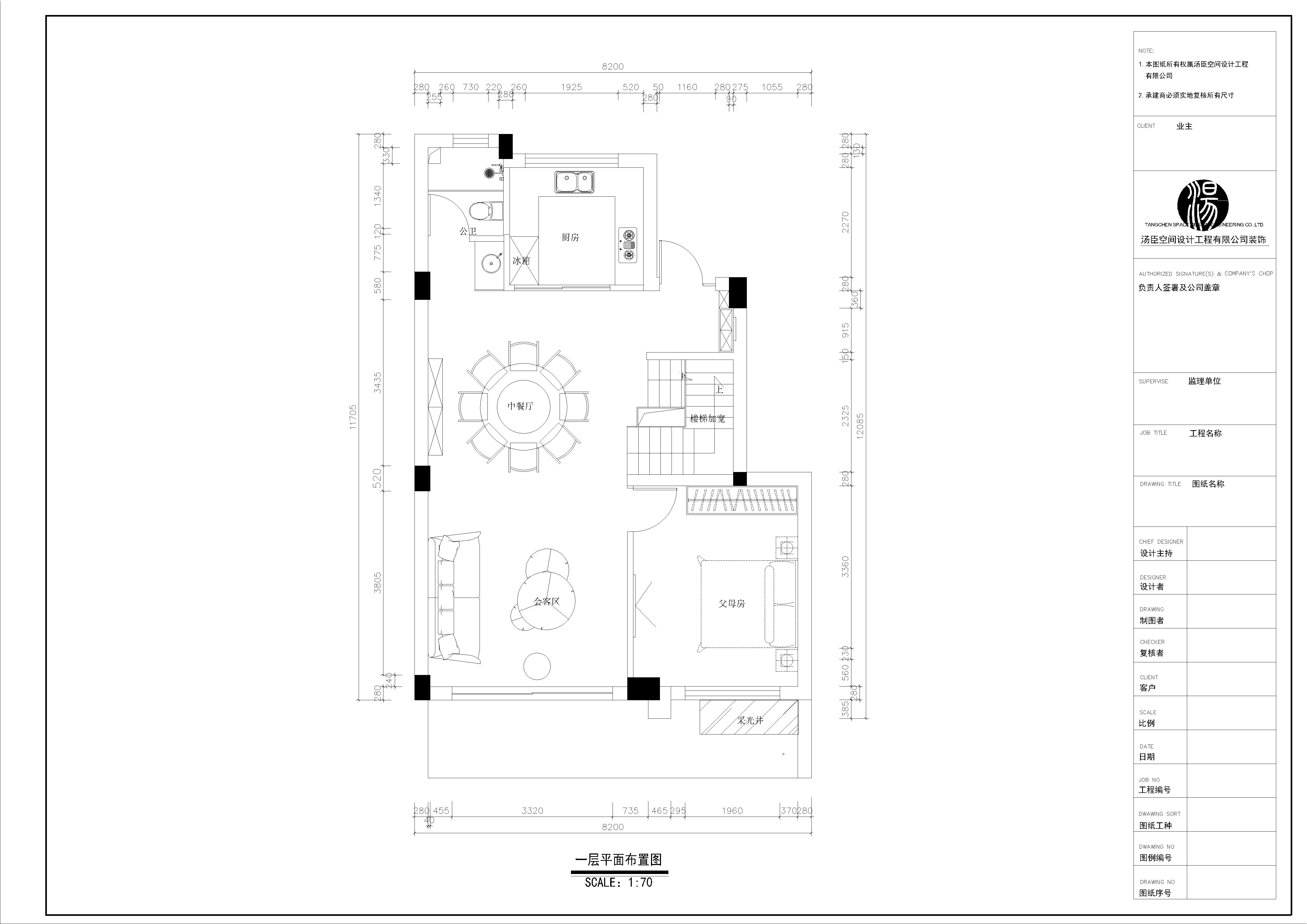
一层
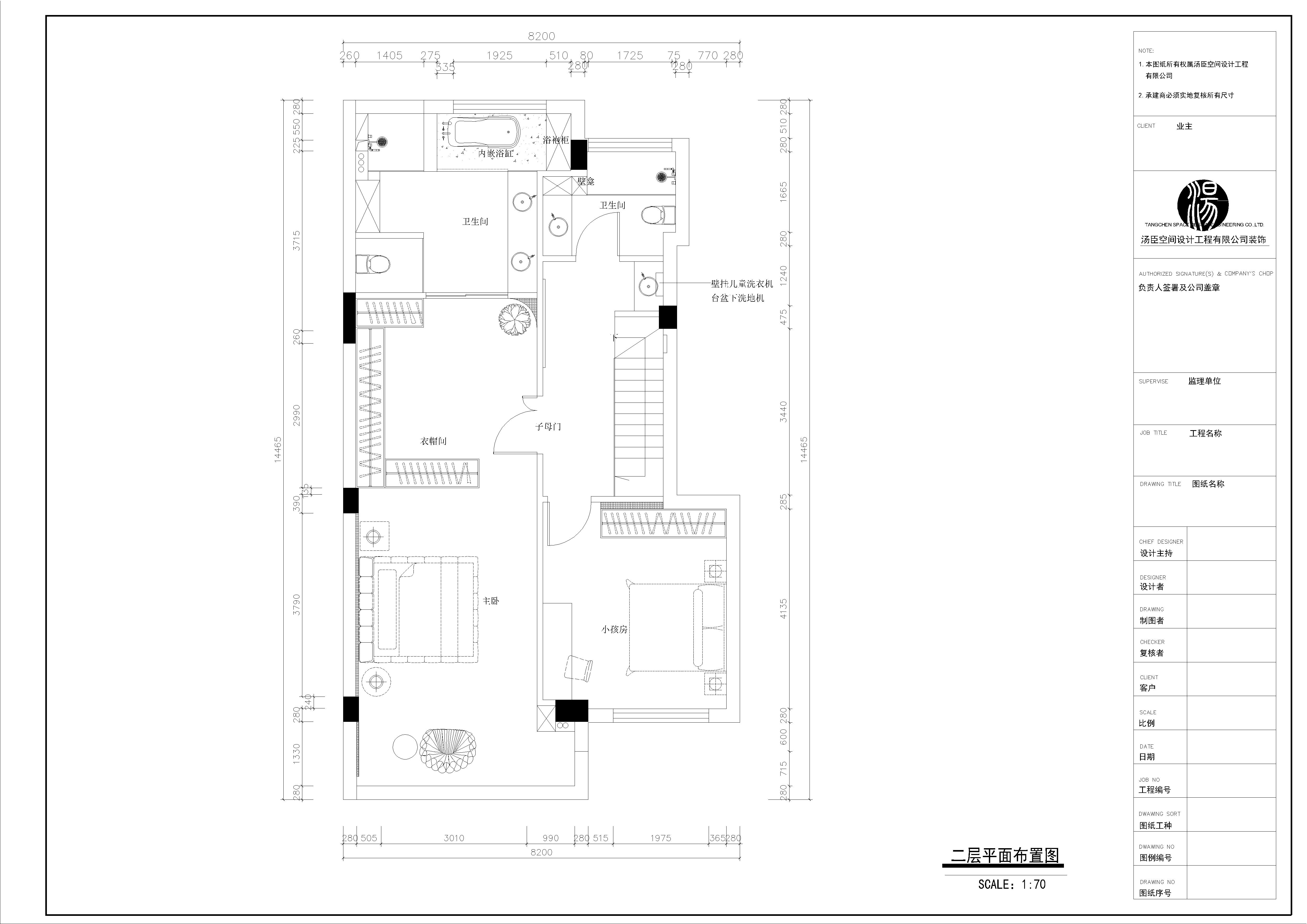
二层
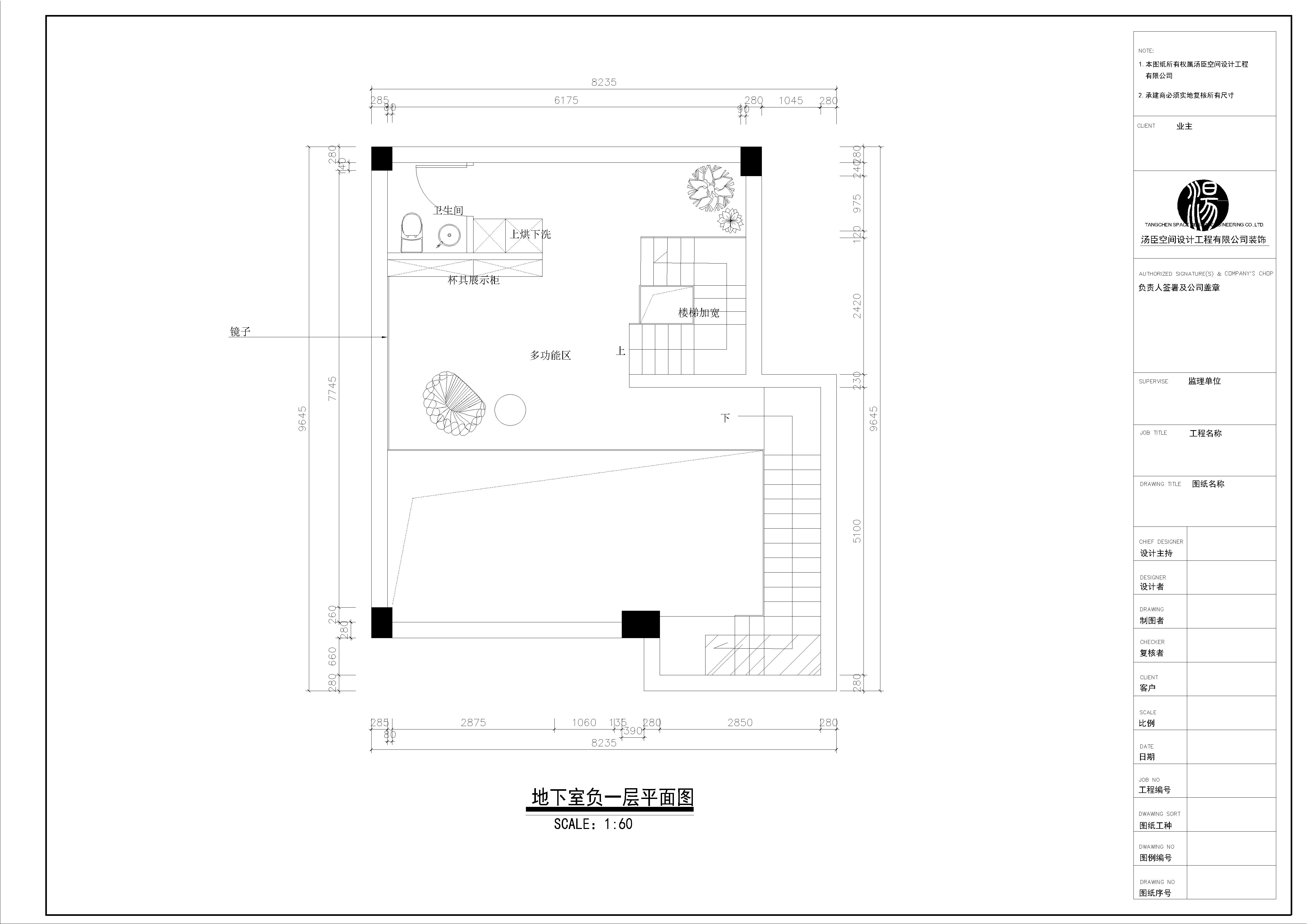
地下室负一层平面图
地下室负二层平面图
0
0

认证 · 让您身份增值