香悦四季顶复|季风过境
157
作品说明
- 项目类型:住宅公寓
- 项目地点:湖州市
- 建筑面积:200㎡
- 项目造价:120万元
- 主案设计师: 况倩倩
- 参与设计师:苏远芳
- 竣工时间:2025年3月5日
- 设计机构:长兴汤臣装饰
-
项目定位:本设计以“季风”为核心意象,探索自然力量与居住空间的诗意对话。灵感源自对季风流动性、力量感及其塑造环境方式的深刻理解,旨在创造一个不仅满足功能需求,更承载情感与自然律动的家。设计核心在于 “为自然力量保留通道” ,将被动式通风、光影互动与空间流动性作为贯穿始终的线索。
-
空间意境:尊重自然法则: 汲取巴厘岛农谚“种田听季风,建房留风路”的智慧,将“留风路”升华为核心设计哲学。空间布局与细部处理均主动考虑空气流动路径、光线引入与季风能量的隐喻表达。
-
空间布局:化结构为美学: 巧妙处理原始建筑结构(如梁体),将其从视觉障碍转化为空间叙事的主角与自然元素(光、风、影)的容器。
流动性与边界消融: 运用弧形语言、通透材质(玻璃)以及精心规划的视觉轴线,弱化空间界限,营造如季风般自由穿行的体验。 -
设计选材:精选胡桃木、微水泥、哑光金属等材质,以其温润质感与自然肌理呼应大地基调。光影被设计为动态的画笔,随时间在墙面、地面描绘流动的画卷,强化空间与时间的连接。
-
用户体验:非常满意,实用性和美感都有
保留并重塑原始结构梁,使其成为投射动态光影的“画框”与引导气流的隐性通道。 深色低矮沙发模拟沙丘形态,形成稳定感。 背景墙刻意后退,形成风与光的“甬道”,结合U形留白设计,既舒缓视觉压力,又隐喻情绪出口,营造克制的抒情氛围。
核心以一道优雅的弧线界定功能区,引导视线与动线,象征季风的流动轨迹。
圆形餐桌如静默湖泊,顶部呼应弧线的柔和吊顶设计,引导天光漫溢,形成时光絮语般的宁静氛围。
采用白框勾勒与大面积玻璃栏板,最大化引入光线并保证视觉通透。
玻璃透影随步履在转角流转,形成轻盈、透明的空间韵律,成为连接垂直空间的动态雕塑。
复古风格边桌成为空间焦点,包裹岁月温度,是晨昏私语的载体。
设计强调晨光的引入,在墙面形成斑驳光影,如翻开的旧书扉页,记录时光痕迹,营造沉静内敛的休憩氛围。
设计强调晨光的引入,在墙面形成斑驳光影,如翻开的旧书扉页,记录时光痕迹,营造沉静内敛的休憩氛围。
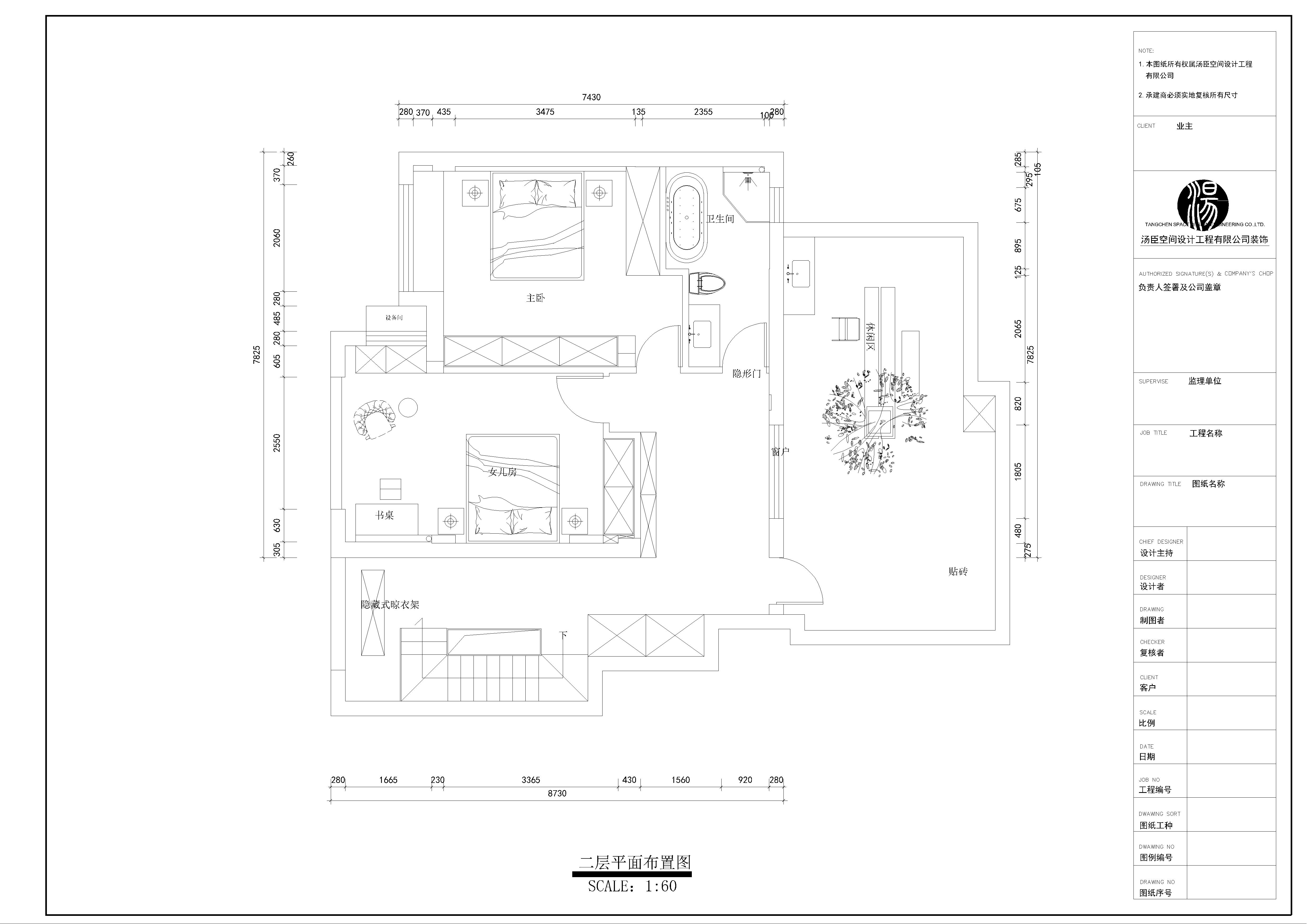
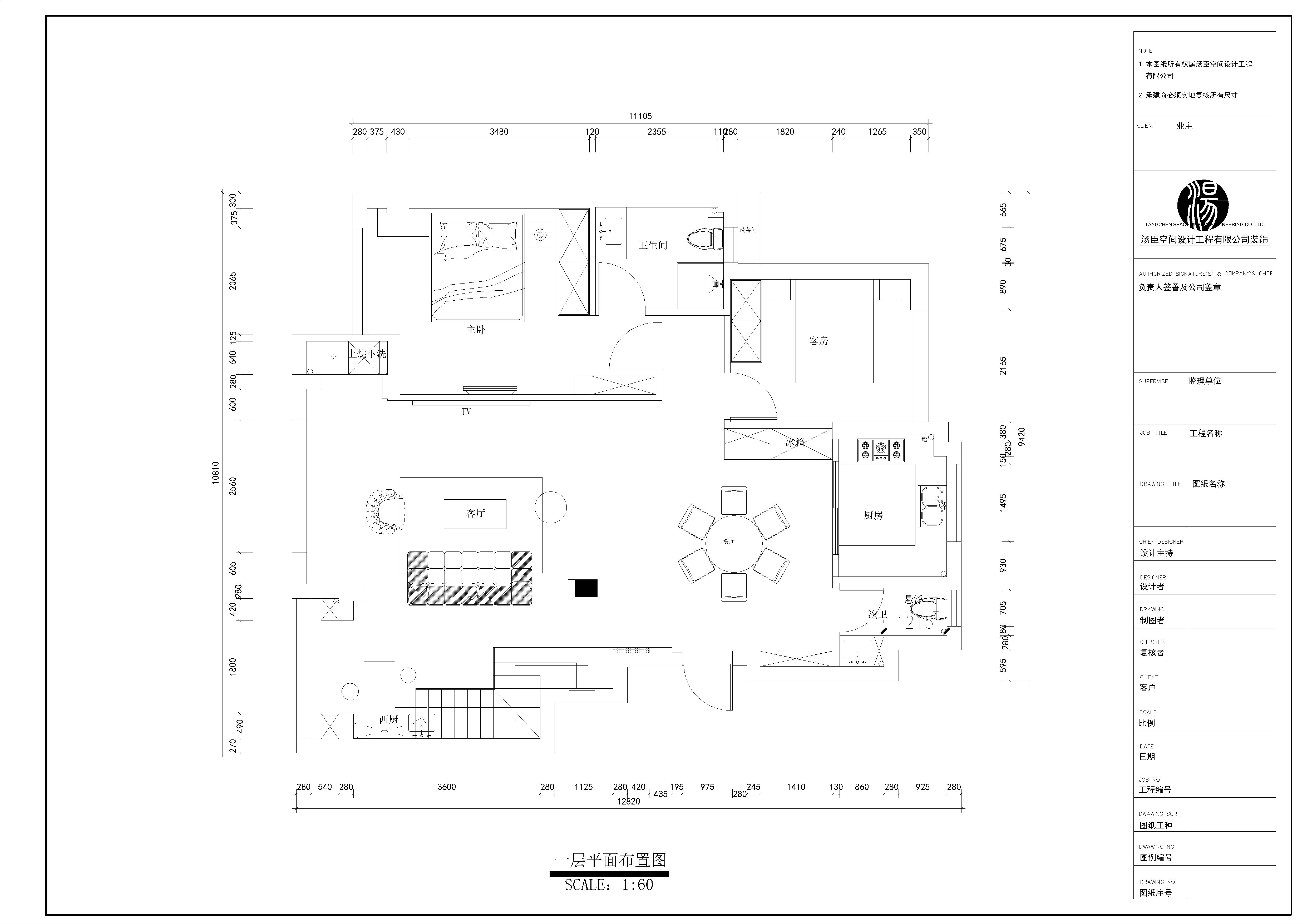
一层
二层
0
0

认证 · 让您身份增值