一个传承“家族精神”的文化之宅
10 - 项目类型:别墅
- 项目地点:深圳市
- 建筑面积:485㎡
- 项目造价:420万元
- 竣工时间:2025.9
-
项目定位:本案为深圳圣莫丽斯的一个485m²的下叠别墅,附带前后两个院子,周遭的环境安静清宜。黄先生家族有南洋经商背景,和家庭环境、家风文化有关系,他希望这个家整体是以「南洋风格」的方式来呈现。
-
空间意境:在外观上,传统南洋风格居所比较繁复古朴,和现在建筑的外观差别很大,所以我们结合现有的建筑,用当代的表达形式将南洋的建筑形式合理的表达出来,用青色木门,砖墙,花窗,廊柱、热带植物来塑造外立面空间,取其南洋风的精神,但是又很好的融合了现在建筑外观的样子,在一幢幢房屋对比下更显现出清朗气质。
-
空间布局:摈弃传统的形式,以“空间交互”的形式将这个家铺陈开,大面积的玻璃落地窗元素模糊空间边界,人的视线可以从前院穿越至客厅,客厅至茶室,茶室至餐厅,厨房至客厅,除了私密空间,不管站在这个家里的哪个角度,人的视线都是可以无限延伸的,空间非常通透。
-
设计选材:热带植物、青色花砖、铁艺屋檐、质朴的老木头,取自自然的材料,清爽浓郁的色彩,给家里带来一种扑面而来的生命力与清透感,塑造出一种质朴宁静的美好。
-
用户体验:非常满意,完全是理想中的住宅,通风和对流做的特别好,家里整体能量场都非常舒服
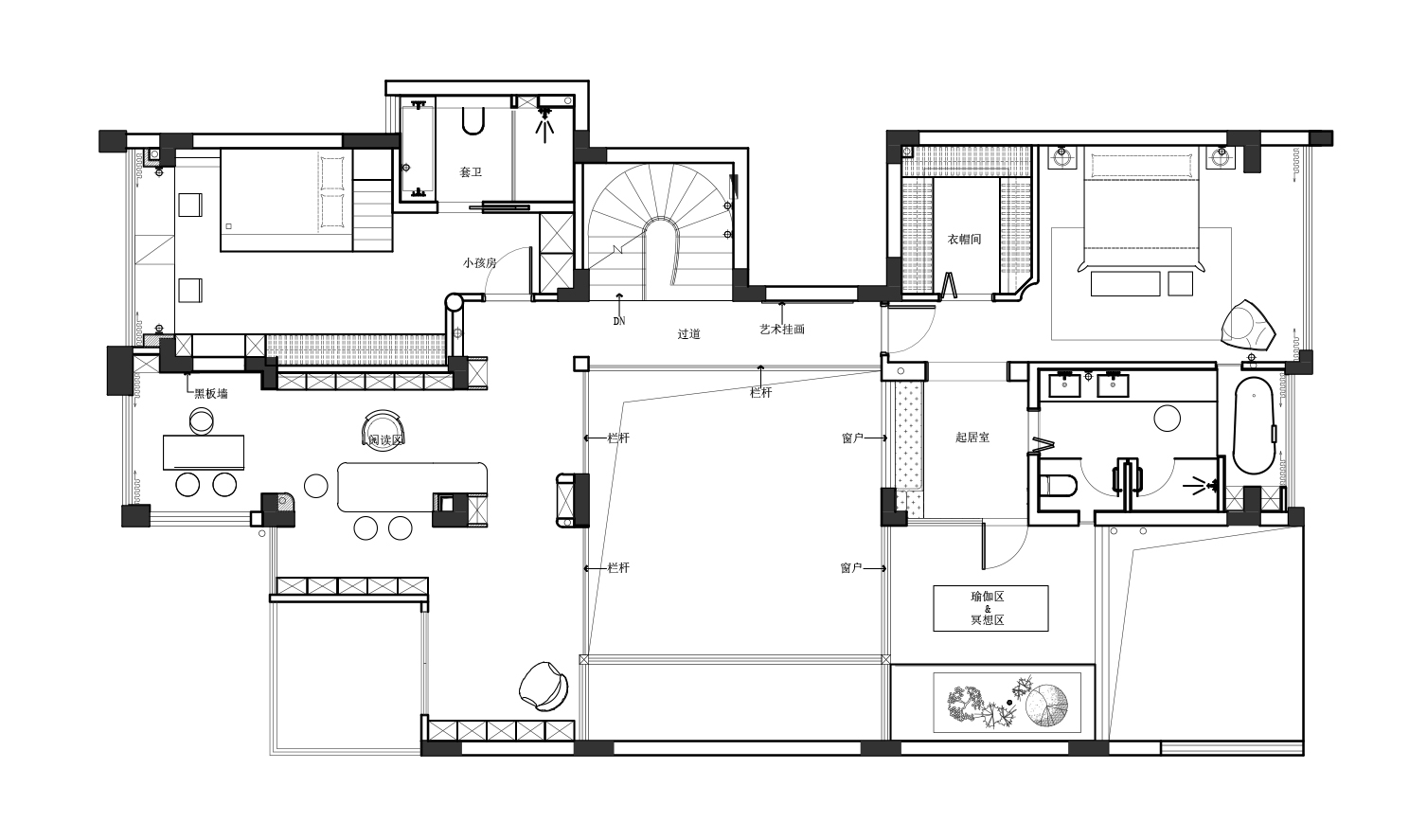
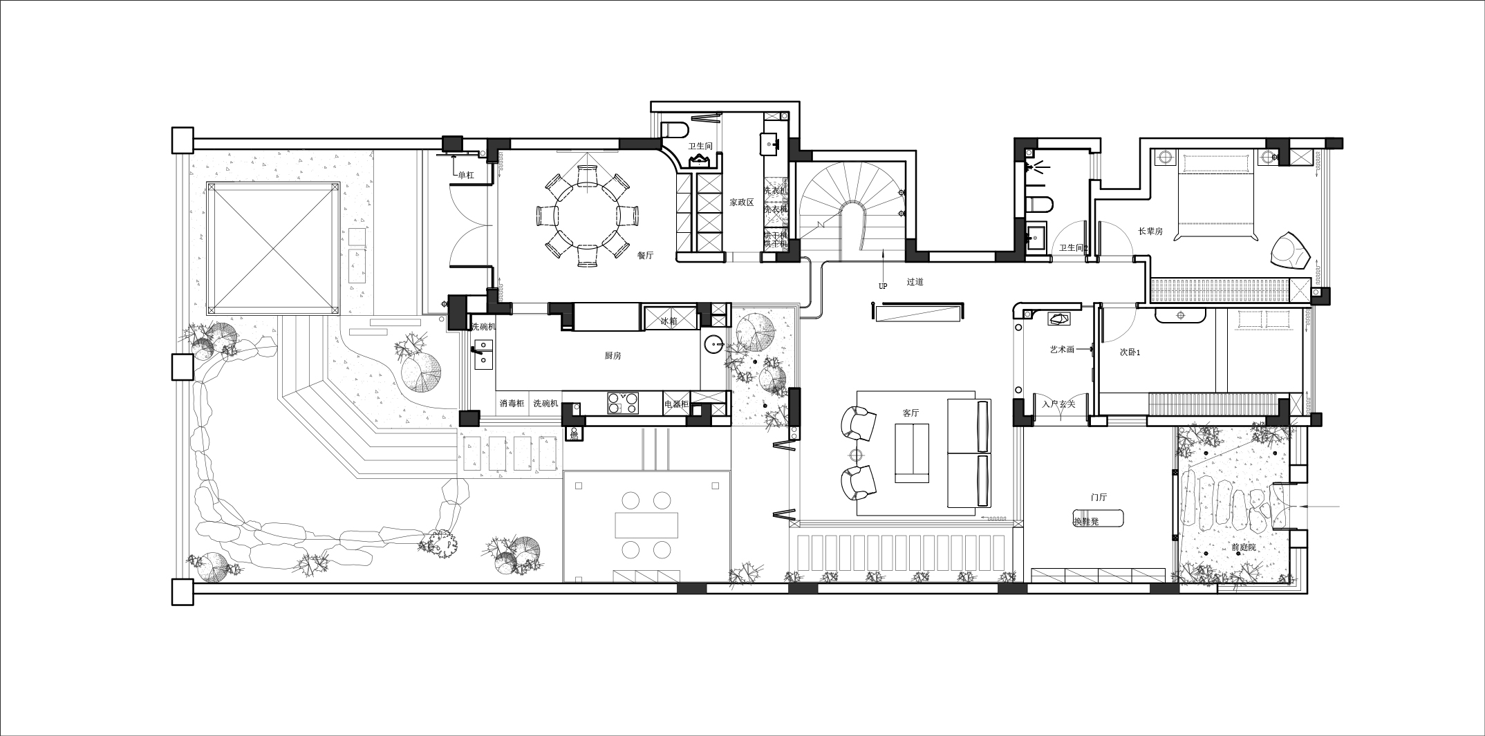
原本的一楼空间昏暗, 玄关通向客厅又通向卧室,过道横生,动线混乱,会客厅对面的是一个暗房,作为什么功能区都很尴尬,上两步阶梯经过楼梯区域才到餐厅,空间零零散散,像走在迷宫里。
空间通过设置屏风重新划分区域,相互衔接。一侧是会客厅,大面积的玻璃将室外光线、景观引入进室内来,用玻璃隔断框住人影流动,让其变身成一幢“会呼吸的房子”。
南洋传统木门窗相对繁复,不适合深圳的气候环境,难以维护,所以室内外用的是经典的格子窗钢窗,经久耐用,搭配室内木质元素,依然沉稳质朴。宁可食无肉,不可居无竹。竹子作为一种富有东方文化底蕴的植物,在这里也被设计师巧妙地运用。
原本的这个区域和室内有一定的高差,我们顺势做成台阶,铺上户外防腐木,靠近花园的地方铺上青石板,缝隙中填上石子,既美观又便于打理。
沿着北面通过茶室,或者通过餐厅可以进入后庭院,院内设有休闲区、景观区、户外茶室;曲桥蜿蜒、芭蕉叠翠、点缀太湖石、古建石制构件……勾勒出一幅悠然的生活画卷。 有次屋主发来信息,坐在餐厅里听雨打芭蕉,真的妙极了
拾阶而上,进入二楼空间,实木护栏构造让视线自由望远,或看到庭院景色、或与楼下的人互动,空间更轻盈、通透。
二楼摈弃传统的客厅起居室,转变为一个舒适的读书区和家庭互动区。黄先生和家人有一个很好的习惯就是,看书大家会聚在一起看,不可以把书拿进卧室,所以学术氛围的营造在家里也至关重要。 这个空间连接茶室和儿童房,在这个空间里,家人可以共同阅读,相互交流,增进感情,馥郁的木质调,字画、陶瓷、艺术品、成堆的书籍,为家庭创造了一个与世隔绝的宁静环境。
在方案初期,屋主就有和我们说,他们家两个小男孩,一个上幼儿园,一个一年级,他们有意识到,孩子将来会住校,也可能会出国,两兄弟朝夕相处的时间就几年,他们很珍惜这几年的时间,所以在这个项目里只考虑了一间儿童房,不是没有空间,而是希望让两个孩子可以交流更紧密。
套卫双盆设置可以满足早起上学时一起洗漱的需求,哑光长条形状哑光砖结合花砖,让这个空间又可爱又酷!
主卧以暖色为基调,墙面没有做过多的装饰,弧形曲线、欧式线条、老式木门,床头背景那精美复古绿壁布,勾勒出极具海岛风情的静谧空间。
起居室连接瑜伽区和主卫,也是一个过渡区,窗户可以打开,倚在边缘,与一层的客厅形成视觉上的互通,可以和楼下进行互动,有时黄先生在那里接待朋友,有时候孩子会在那里玩耍,阳光从窗户迎过来,生活的重要内容一目了然。
极繁造就极致浪漫,花砖和石材材质的碰撞让主卫空间非常有灵气,黄铜和老木头为空间塑造出一种精致、复古情调,下降高度的梳妆镜满足女主人坐着化妆、护肤的需求,这矜贵的一幕总能让人联想到电影里的女主~
0
0

认证 · 让您身份增值