德通映南山
26
作品说明
- 项目类型:样板间/售楼处
- 项目地点:西安市
- 建筑面积:220.0000㎡
- 项目造价:0.0000万元
- 竣工时间:2024.12
-
项目定位:本样板间以 “自然、松弛、素雅” 为设计主线,借浅木、米灰与暖白的基底,融入天然材质肌理与柔和光影,在克制与留白中营造高品质生活美学。
大面积留白与简洁线条形成呼吸感,搭配艺术装置与精致软装,于松弛自然中唤醒居者与空间的深层情感链接。浅木纹理如岁月的叙事,与光影一同将这份生活美学沉淀为温润的时光印记。 -
空间意境:一,打破风格边界,摒弃高饱和色彩与繁复装饰,以 “自然、松弛、素雅” 为基调,用浅木、米灰、暖白基底 + 天然材质肌理,营造 “安静有呼吸感” 的氛围,实现 “克制中的温度”。其二,创新材质融合逻辑,将低饱和金属、手工陶艺等元素作为细节点缀,如客厅奢石背景墙、公卫亚光五金,既不破坏整体素雅感,又以 “克制精致” 提升格调。其三,以光影为风格纽带,通过动线灯光、氛围灯光等层次化设计,联动材质肌理,让空间随晨昏呈现不同光影效果,使风格从静态视觉转向动态情感体验,契合当代人居对 “精神松弛” 的需求。
-
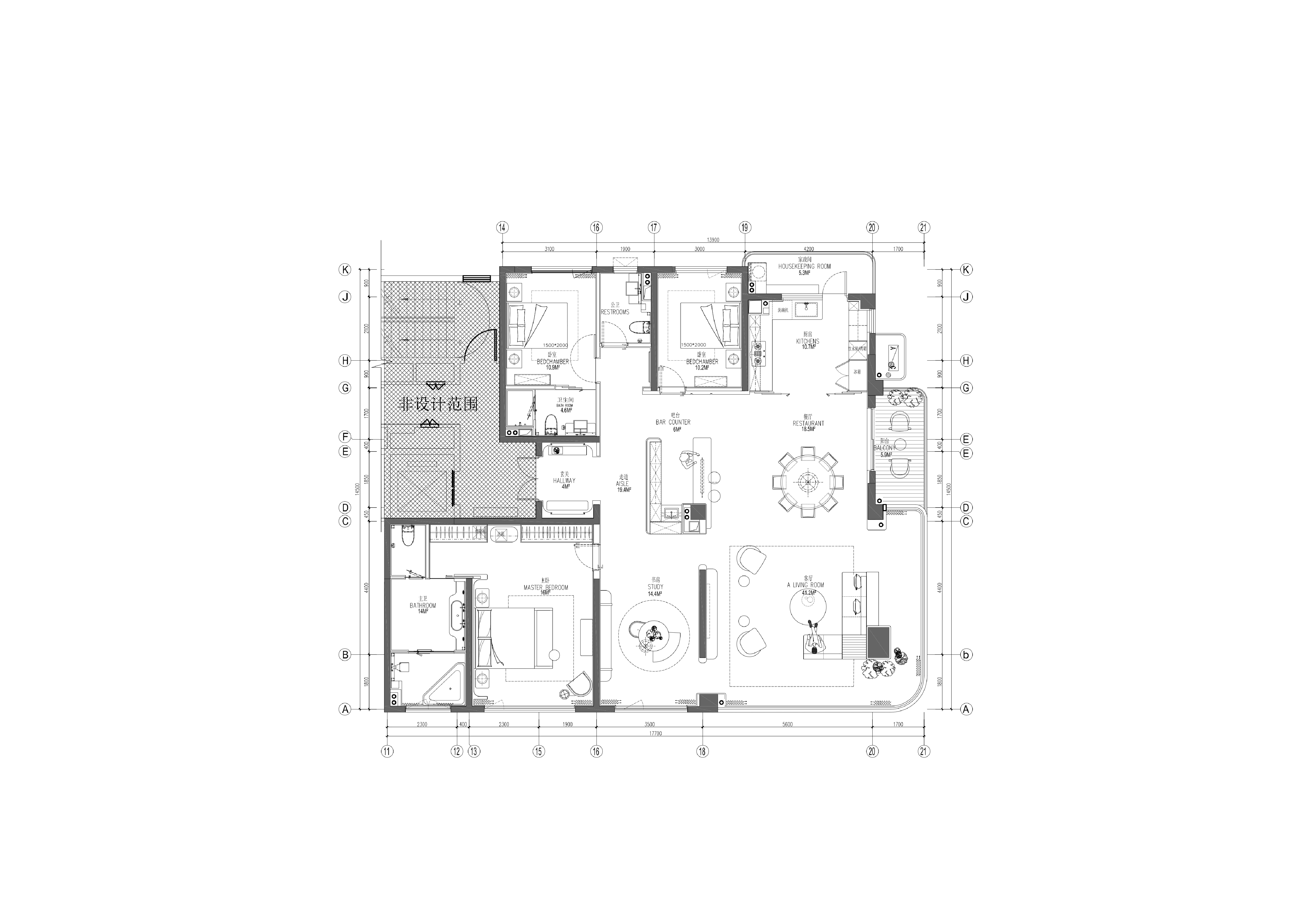
空间布局:本作品以 “居住实用性” 为设计落脚点,通过多维度创新满足家庭全周期需求:
1.灵活功能布局:书房采用半开放式设计,打破 “单一办公” 的功能局限,适配轻办公、直播、亲子陪伴、艺术创作等多元场景;厨房提供 “双选冰箱位” 方案,既可内嵌隐藏实现极简一体,也可预留标准尺寸满足陈列需求,适配不同家庭的使用偏好;
2.高效动线规划:厨房以超大 U 型布局为核心,规划 “洗 - 切 - 烹” 三段式动线,搭配嵌入式电器与立式高柜,最大化释放操作空间;主卫采用 “四件套” 配置(双台盆、独立马桶间、浴缸、淋浴区),既满足双人生活的并行需求,又通过干湿分离确保使用便捷;
3.细节人性化设计:各空间注重 “灯光层次” 营造,如玄关的动线灯光、客厅的氛围灯光、主卫的镜柜一体化灯光,既满足功能照明,又能调节空间情绪;家具选择兼顾 “尺度合理性” 与 “使用舒适度”,如客厅模块化家具、次卧灵活书桌区,均以 “人” 为核心优化设计细节。 -
设计选材:作品在选材上以 “低碳环保” 与 “经济实用” 为双重导向,形成差异化创新。其一,优先选用天然低碳材料,如浅木饰面、天然石材等,减少人工合成材料的高能耗生产环节,且天然材质可循环利用,降低后期更换的资源浪费;其二,践行 “资源高效” 原则,如厨房、玄关的模块化柜体,采用标准化板材切割,减少材料损耗,同时适配多场景使用,延长生命周期,间接降低替换成本;其三,平衡 “质感与成本”,以浅木、米灰等平价基础材质奠定基调,仅用少量金属、奢石点睛,避免大面积高价材料堆砌,既控制成本,又通过材质搭配保留高端质感,实现 “低碳、经济、美观” 的三重统一。
-
用户体验:长期使用后,用户对空间适配性与耐用性评价颇高。家庭反馈厨房 U 型布局 + 嵌入式电器让多人协作流畅,台面整洁度易保持;书房半开放设计可随孩子成长从 “亲子区” 过渡为 “独立学习区”,无需改造。
老年用户认可公卫悬浮洗手台与隐蔽灯带,“不磕碰、夜灯柔和”;年轻用户青睐主卧套间收纳,“衣帽间清晰,浴缸区是周末放松地”。不少用户提及 “浅木米灰基调搭软装易更新,无过时感”,形成 “越住越舒服” 的口碑。
本样板间以 “自然、松弛、素雅” 为设计主线,借浅木、米灰与暖白的基底,融入天然材质肌理与柔和光影,在克制与留白中营造高品质生活美学。 大面积留白与简洁线条形成呼吸感,搭配艺术装置与精致软装,于松弛自然中唤醒居者与空间的深层情感链接。浅木纹理如岁月的叙事,与光影一同将这份生活美学沉淀为温润的时光印记。
并非通道,而是呼吸的顿点 卸下行囊,方踏入生活主场
光与景自由流动人与物舒展从容
半开放式书房自然融入公共空间,以无边界设计增强流动性,是全屋功能最灵活的场域。既满足轻办公、阅读等静态需求,也可延伸至直播、亲子互动、艺术创作等场景。 沿墙设大尺度书桌与多层储物系统,适配不同生活圈层的精细需求;电源与灯光布点合理,轻松切换多设备操作及远程办公、学习辅导等场景。
收藏早安晚安,在自然素雅的卧室里 书写两个人的生活日记
主卧作为居者最私密的空间,承载着二人小家最温柔细腻的日常。套间式配置包含卧室、衣帽间与独立卫浴,以完整功能构建生活的舒适边界。 空间布局宽绰,家具尺度合理,所有设计都围绕“放松、亲密与归属感”展开。
压力清零,给大脑充能的疗愈屋
次卧是休憩与工作相融的空间,布局精巧而流畅。温润的木色与织物细腻质感交织,晕染出宁静温馨的氛围; 充裕的衣柜、灵活的书桌与层次有致的灯光相映成趣,共同构成了这片温暖自在的小天地。
0
0

认证 · 让您身份增值