天逸湾 | 回望
109 - 项目类型:住宅公寓
- 项目地点:湖州市
- 建筑面积:170㎡
- 项目造价:100万元
- 主案设计师: 况倩倩
- 参与设计师:苏远芳
- 竣工时间:2024.10.28
- 设计机构:长兴汤臣装饰
-
项目定位:以 “专业与爱共生” 为核,170㎡两房突破密度,融现代美学与人文关怀,打造沉浸式身心共鸣居境。
-
空间意境:公共场域光影交织,书房可转换,餐厨互动,休憩区温润,儿童房促创造,场景富巧思。
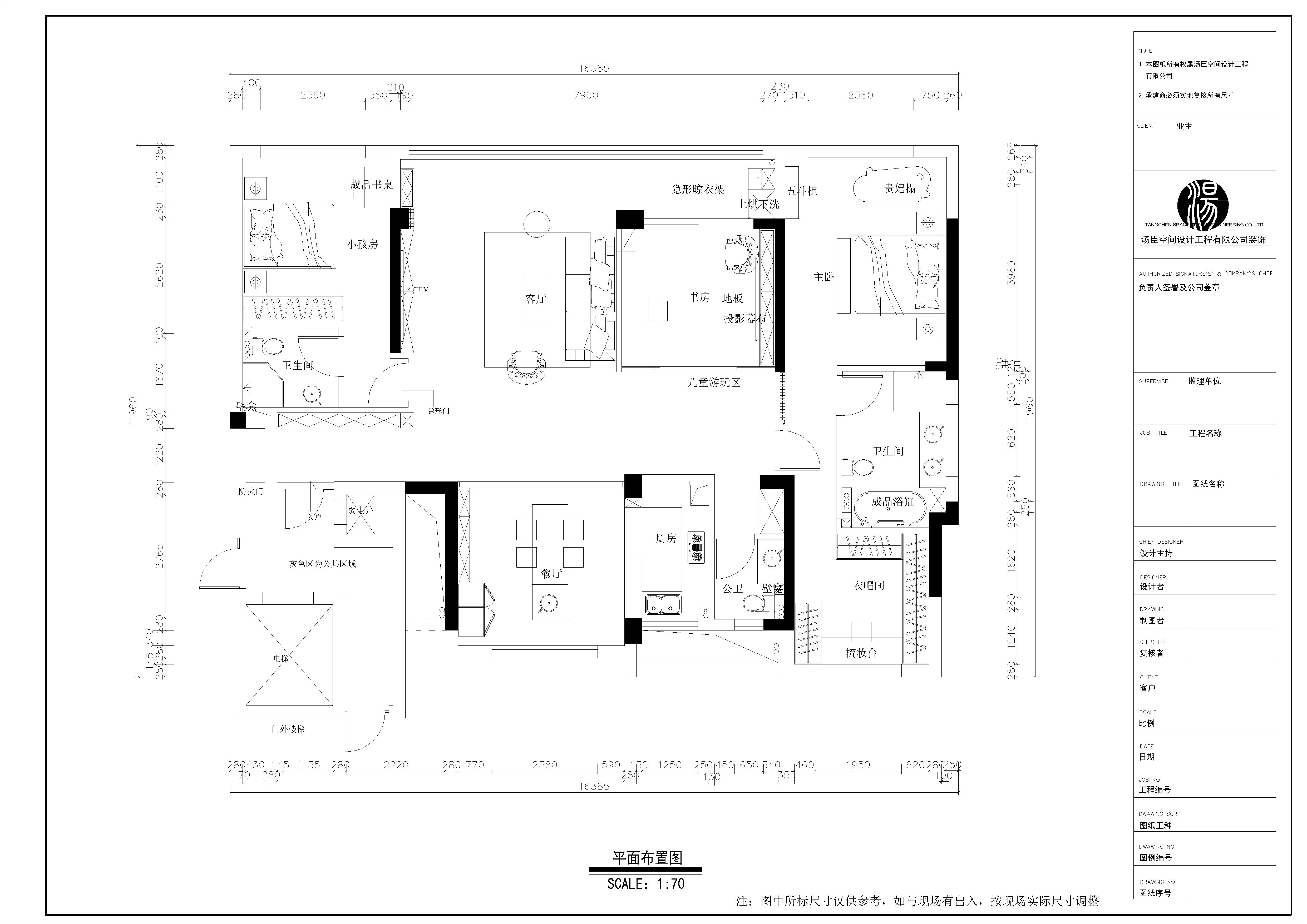
-
空间布局:客厅围合引光,书房通透连通,餐厨中岛控动线,主卧衣帽整合,布局高效且灵动。
-
设计选材:优选低碳材料,兼顾经济性,如织物软装、防滑地面等,既环保又控成本,保障实用与可持续。
-
用户体验:非常满意,理想家居
客厅作为情感聚合核心,采用整面落地窗引自然光倾泻入室。顶部线性光带与日光形成多维度光影序列,营造随时间变幻的视觉韵律。轻柔帘幕弱化强光干扰,赋予空间朦胧诗意。沙发组合契合空间尺度形成围合布局,软装以低饱和度色彩渐进过渡,织物肌理与光影互动强化触觉与视觉的双重舒适性,构筑包容性极佳的社交场域。
沙发组合契合空间尺度形成围合布局,软装以低饱和度色彩渐进过渡,织物肌理与光影互动强化触觉与视觉的双重舒适性,构筑包容性极佳的社交场域。
半透明书房与客厅保持视觉连通,可开合移门实现静默与互动的场景转换。内置墙体书架系统兼顾藏品展示与知识收纳功能,临窗设置符合人体工学的阅读坐具,将外部景观转化为思考背景。通透隔断使空间独立却不孤立,象征智慧沉淀与灵感迸发的辩证共生。
餐厨区以中岛为核心重构生活动线,深色操作台面与隐藏式收纳系统构成高效操作矩阵。岛台延伸出多元社交场景:早餐吧台、烹饪教学区、家庭会议点在此交融。餐椅流线型排列强化空间仪式感,实现功能操作与情感交流的无缝衔接。
主卧以温润氛围包裹睡眠区,低矮床体营造云端栖居感。非对称床头照明系统满足夜间阅读需求,光束角度经精密测算规避眩光侵扰。步入式衣帽系统整合收纳与更衣动线,通过尺度留白强化私密领域的呼吸感。
儿童房以激发创造力为原点,墙面色彩模块可随成长阶段重组。安全圆角家具与地台床设计构筑无忧活动边界,延伸式衣柜系统预留成长收纳冗余。独立卫浴采用圆润造型与防滑地面,启蒙孩童对秩序美学的认知。
本案以170㎡空间构筑两房格局,突破传统居住密度,通过流动的空间叙事将现代美学与人文关怀相融合。设计聚焦“专业与爱的共生”,以光为媒介、功能为载体,于简约中蕴藏细腻情感,实现居者身心共鸣的沉浸式体验。
0
0

认证 · 让您身份增值