145㎡复式爆改适老化住宅
8
作品说明
- 项目类型:住宅公寓
- 项目地点:上海市
- 建筑面积:145.0000㎡
- 项目造价:70.0000万元
- 主案设计师: 王玉洁
- 参与设计师:王玉洁
- 竣工时间:2025.9.22
- 设计机构:上海臻言室内设计有限公司
-
项目定位:以“满足一家五口(含老人、小孩)的多元生活需求”为核心策划定位,围绕适老化、儿童成长、高效率工作以及家庭互动等关键要素展开设计,打造一个温馨、实用且能伴随家庭成长的全功能住宅。
-
空间意境:整体风格融合:将温馨、舒适与现代简约风格巧妙融合,既营造出家的温暖氛围,又不失时尚感。例如客厅以奶油色调为主,搭配木质元素,温馨又现代;书房采用简洁的布置,展现安静舒适的办公学习环境。
色彩搭配创新:在儿童房选用饱和度较低的蓝灰色,既适合孩子小时候温馨有趣的成长空间,孩子长大后也不会突兀,兼顾实用性与长远性;露台采用色彩活泼的水磨石,增添活泼氛围且防滑。 -
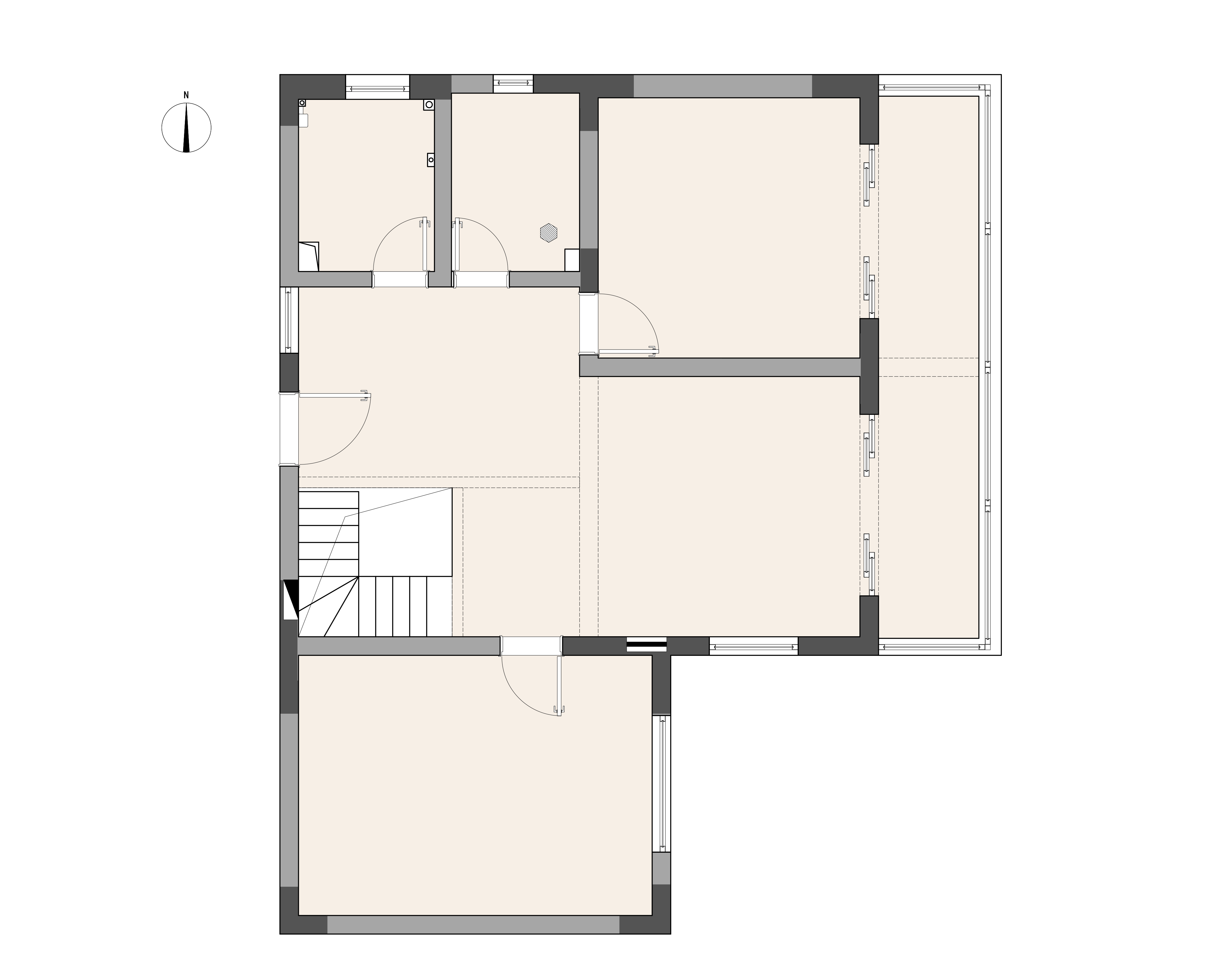
空间布局:玄关优化:改变入户门开向,调整楼梯位置,使玄关拥有宽敞空间。设置足够收纳空间,包括开放格、悬空设计底部、步入式储物间等,满足一家人鞋子存储及日常杂物收纳需求。同时,为老人设置全身镜和换鞋凳,方便且安全。
楼梯改造:调整楼梯入口方向,增加楼梯长度和踏步数量,改善踏步宽度和高度,提升上下楼安全性与舒适度。楼梯下方打造步入式家庭储藏间,合理分区收纳大件物品、包包帽子、家庭杂物等,还设置挂衣区作为次净衣柜使用。
父母房:选择光照好且离卫生间近的房间,方便老人上厕所。阳台配备洗手池和带搓衣板的台面,满足老人手洗衣服需求;放置高斗柜,兼具收纳和书桌功能,满足业主父亲写毛笔字需求。
卫生间:一楼卫生间干湿分离,选用日本进口可抽拉式龙头,台盆采用弧形设计,安装折叠门节省空间,添加适老化设备,预留安装扶手位置。二楼卫生间增加淋浴区功能,与一楼风格保持一致,安装小型挂钩、镜柜、浴帘,配备顶喷和手持花洒。
露台:安装遮阳棚,设置台面与水池,便于为植物浇水和清洗餐具水果。增设木色围栏保护隐私,摆放户外桌椅满足家庭聚餐和户外烧烤需求,角落种植桂花树增添香气,安装太阳能壁灯方便夜间活动。 -
设计选材:选材注重实用性与环保性:在满足功能需求的前提下,选择环保材料,保障家人健康。例如在儿童房等空间选用环保性能好的板材和涂料。
合理选材控制成本:在保证质量和效果的同时,通过合理选材控制装修成本。如楼梯收纳柜和玄关柜一体定制,利用空间整体感强且节省成本;露台采用水磨石地面,既满足防滑需求又经济实惠。 -
用户体验:各个空间的功能设计充分满足了一家五口日常生活、工作、学习和娱乐的需求。老人生活更加便利安全,小朋友有舒适的成长空间,夫妻二人有高效的工作学习环境,家庭互动也更加丰富。
用户评价;业主基于六年前第一次合作的信任,再次选择该设计团队,且在整个设计施工过程中没有丝毫犹豫,从设计到施工完成,业主对最终呈现的效果非常满意。认为设计充分考虑了一家人的需求,无论是适老化设计、儿童成长空间还是夫妻二人的工作学习区域,都做到了尽善尽美,让家成为了温馨、舒适、实用的理想居所。
0
0

认证 · 让您身份增值