长沙悦府
19
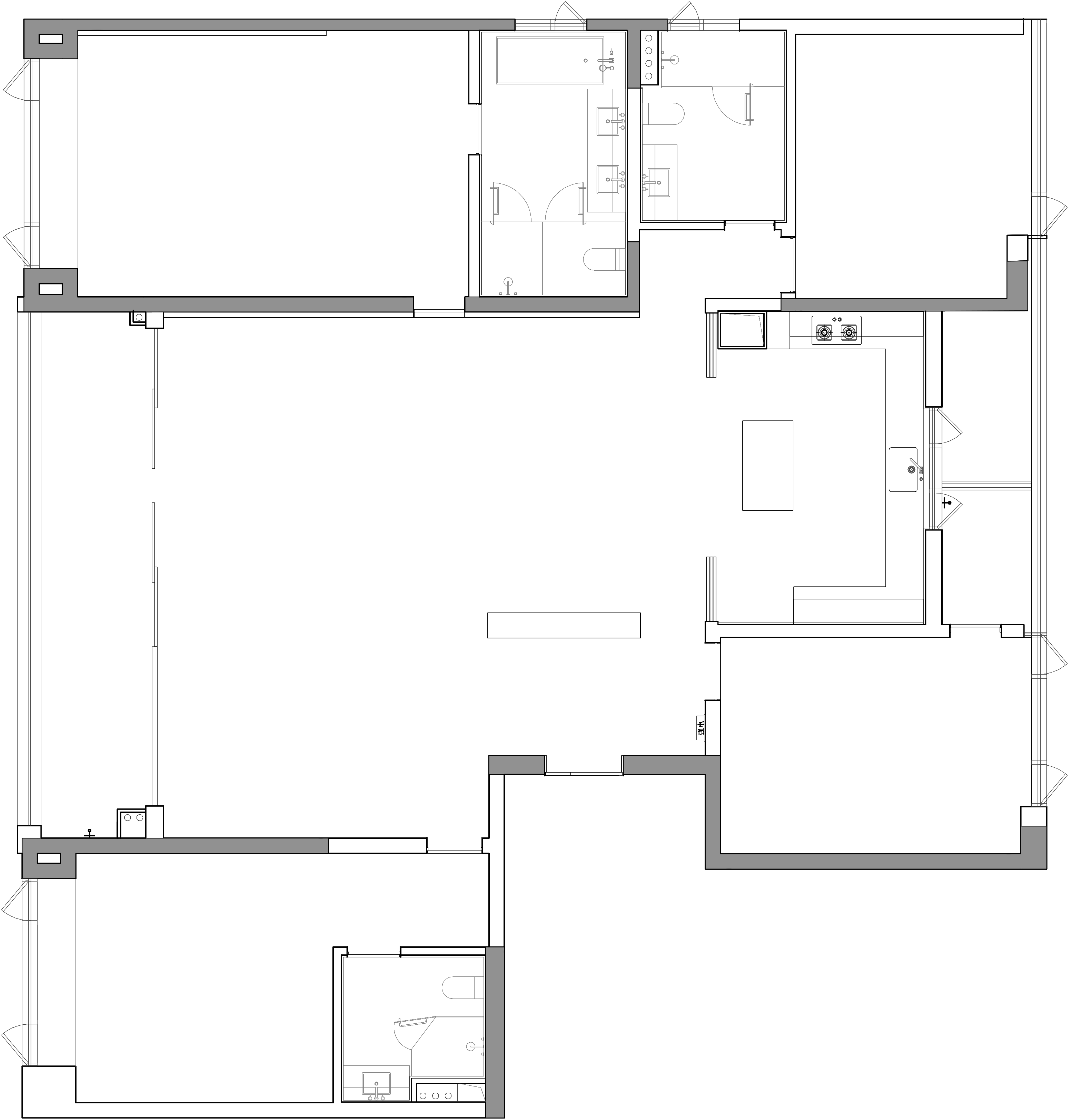
作品说明
- 项目类型:私宅
- 项目地点:长沙市
- 建筑面积:240.0000㎡
- 项目造价:120.0000万元
- 主案设计师: 刘波
- 参与设计师:刘波
- 竣工时间:2025.10.11
- 设计机构: 时光筑造
-
项目定位:自由感在这个空间将屋主的生活态度与品味具象化呈现,把日常生活与建筑融合,阳光携自然之气穿透玻璃渗透空间,让屋主在城市的喧嚣之中也能找到一片宁静的休憩之地,享受到真正属于它的畅意之地。
-
空间意境:利用每一点空间的角落,把握每一处空间的尺度,模糊空间的界限,增强各个区域之间的连接,流畅的动线,装饰画的艺术,十分惬意的游走在空间的各个地方,体悟生活的美好。
-
空间布局:卧室是居住者休息和放松的地方,强调安静与舒适的氛围感受,配备书桌,衣帽收纳和卫生间,保证功能上的多样性,居住的私密性与便捷性。
在主卧的设计上,无处不能感受到空间带给居住者的关怀与温暖,质朴的原木与纯净的白色的交融萦绕,落地窗赋予的优秀采光,独立的衣帽间,卫浴空间,安心自在,松弛舒心充斥心田。 -
设计选材:在材质的选择上,大面积的使用涂料,木质材料、石材、棉麻等自然元素的运用不仅让空间充满自然与和谐,同时将材质与灯具结合,将细节进行打磨描绘,营造出一种温馨、舒适的感受。
-
用户体验:以理想的场景化演绎生活的浪漫,平衡简约与精致的和谐交融,赋予空间新的想象与可能。铸就符合屋主生活需求与审美要求的理想空间居室。
0
0

认证 · 让您身份增值