光影叙事
4
作品说明
- 项目类型:住宅公寓
- 项目地点:武汉市
- 建筑面积:37.0000㎡
- 项目造价:35.0000万元
- 竣工时间:2024.2.5
- 设计机构:武汉咫尺空间设计
-
项目定位:打开Loft的大门,就像走进了一个还没有装礼物的盒子,明亮的光线总能激起居住者对家的向往。层高的优势、几乎没有承重结构的限制加大了空间设计的灵活度。
当对生活品质的要求越高,这些问题越是不容忽视,这也成为了业主考核室内设计公司的关键因素。本期的屋主便有着这些顾虑,两位都是美学相关的从业者,对美学的追求极高,同时希望在满足诸多功能需求的同时,又能做出区别于常规的创意设计。 -
空间意境:新家落地,值得关注的并不止镜头前的美貌,简单和极简之间的区别,就在于那些贴近生活后真实存在的细节,正是把一点一滴容易忽略的细节都重视起来,家才会真正实现颜值与实用并存。
-
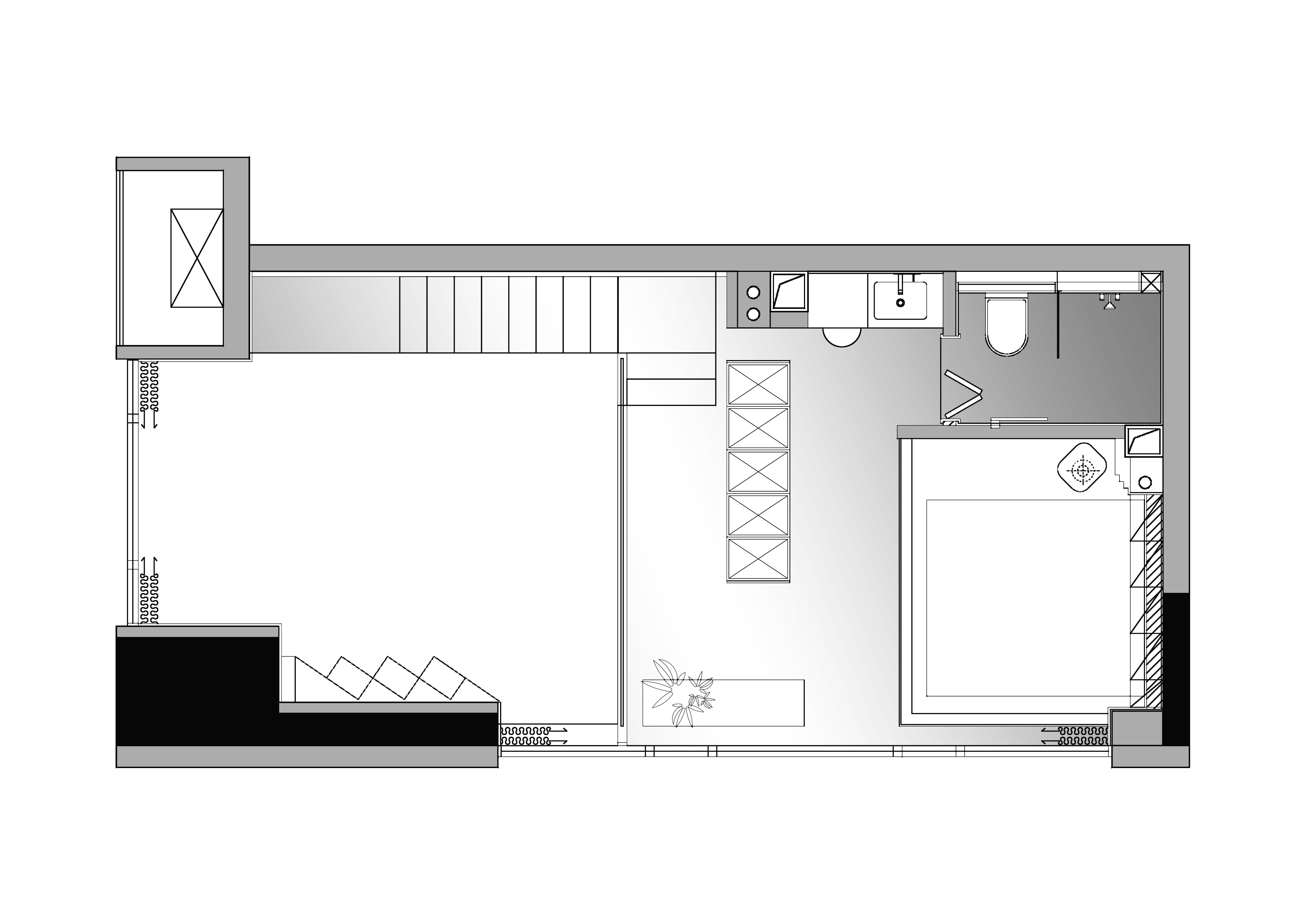
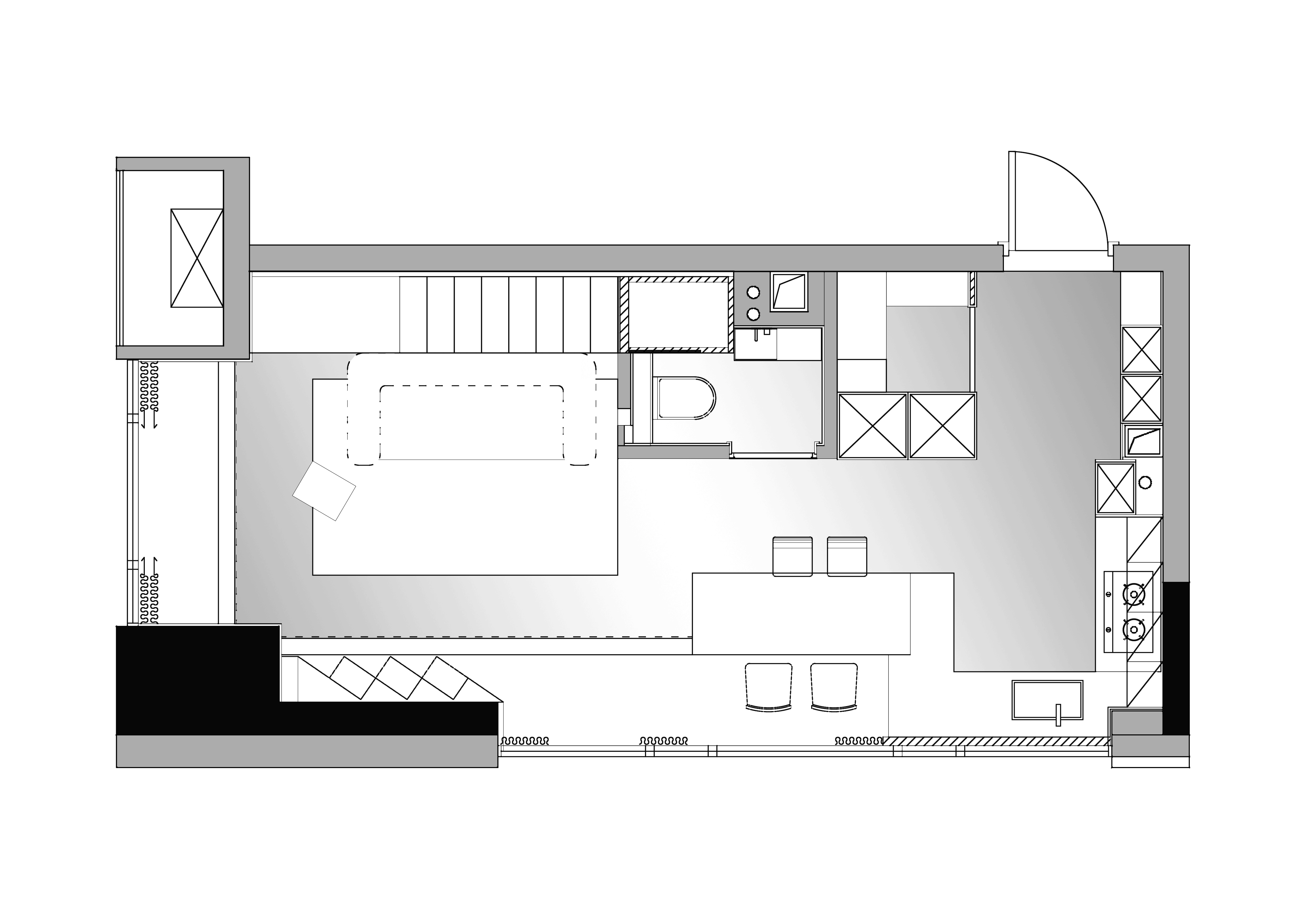
空间布局:客厅大胆挑空,用近一半的面积换来开阔视野和充足光线,玄关、餐厨、储物间、客卫、洗衣房则合理安排在另一半区域,又保证了各功能的舒适尺度;
悬浮楼梯、玻璃扶手,空间更极简轻盈,增强了一二楼的联结;
让结构本身成为空间亮点,不必繁冗的装饰,也能产生高级的层次感。 -
设计选材:用玻璃、亚克力透明材质,让小空间更通透
-
用户体验:“艺术的唯一用途,就是让生活变得比艺术本身更有趣。”在这次不同以往作品的Loft设计中,我们克服了种种困难,感谢屋主的信任,让我们得以将美学与实用性完美地结合在一起,用强大的设计能立和施工落地能立创造出一个独具匠心的空间。
0
0

认证 · 让您身份增值