陶瓷美学馆
39
作品说明
- 项目类型:展示
- 项目地点:淄博市
- 建筑面积:180.0000㎡
- 项目造价:60.0000万元
- 主案设计师: 王钊
- 参与设计师:王钊、刘玉玺
- 竣工时间:2025年
- 设计机构:云上译舍
-
项目定位:山东华领顺建筑材料有限公司;不仅提供砖石 丨 更构筑美学;旗下汇聚NANOGRESS、VANGOGH、GIANIA、SHEERIN、TECHSIZE等卓越品牌;我们不止于选材,更致力于缔造完整的美学生态;为此,我们在淄博筑就了首座以瓷砖与岩板为主题的美学殿堂;这里,是灵感生发之地,是视觉统一的源头;我们期待,以一方石质的诗意,映照您对空间的无限想象
-
空间意境:以深厚的审美积淀
精妙的搭配智慧与专业的施工精神
将每一片瓷砖与岩板,化作空间的语言 -
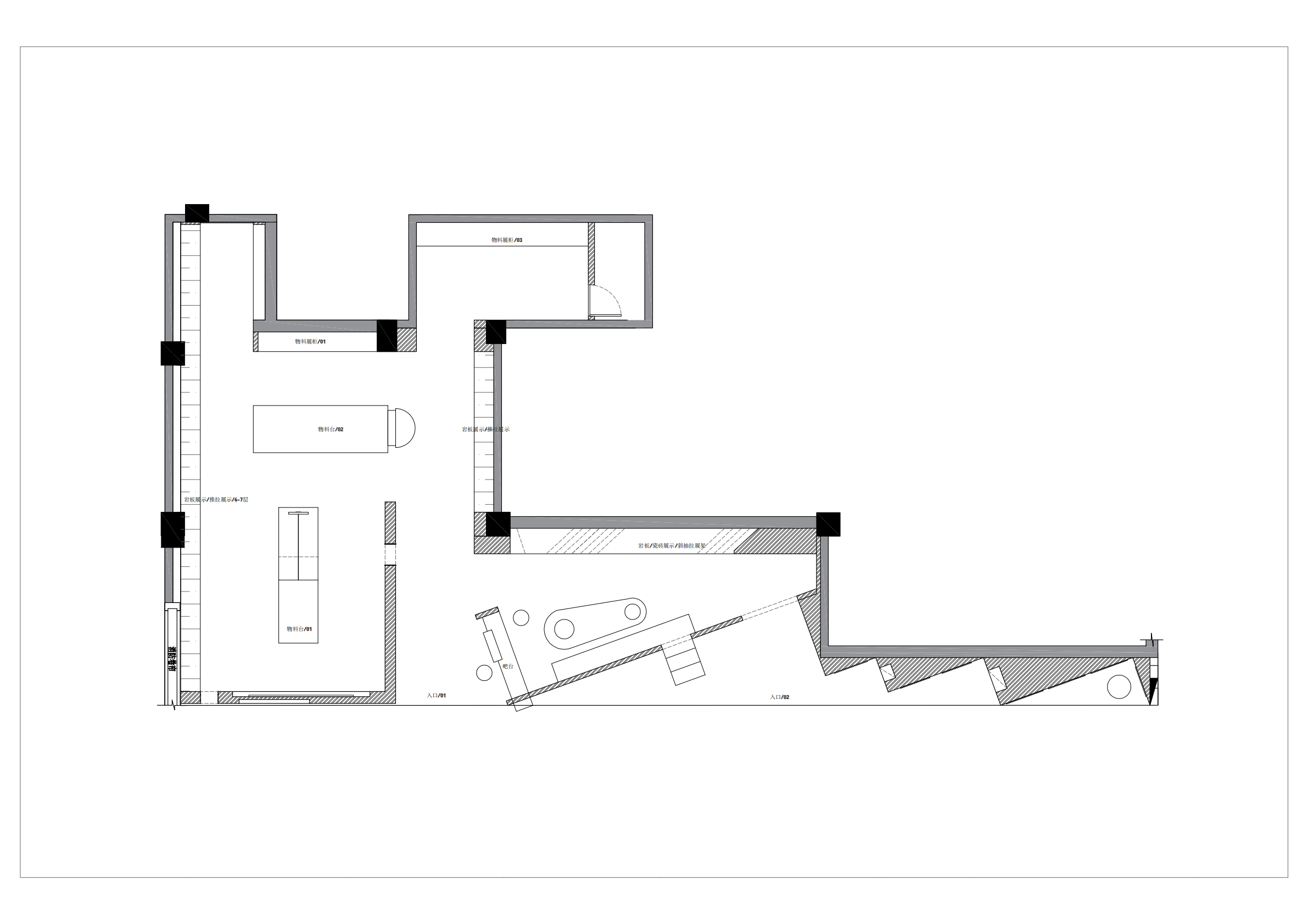
空间布局:环形动线、流线动线,方便选购者视觉选择
-
设计选材:该项目为陶瓷展厅,充分利用产品样式款式,在空间里实现真正的展示与空间融合
-
用户体验:非常满意
0
0

认证 · 让您身份增值