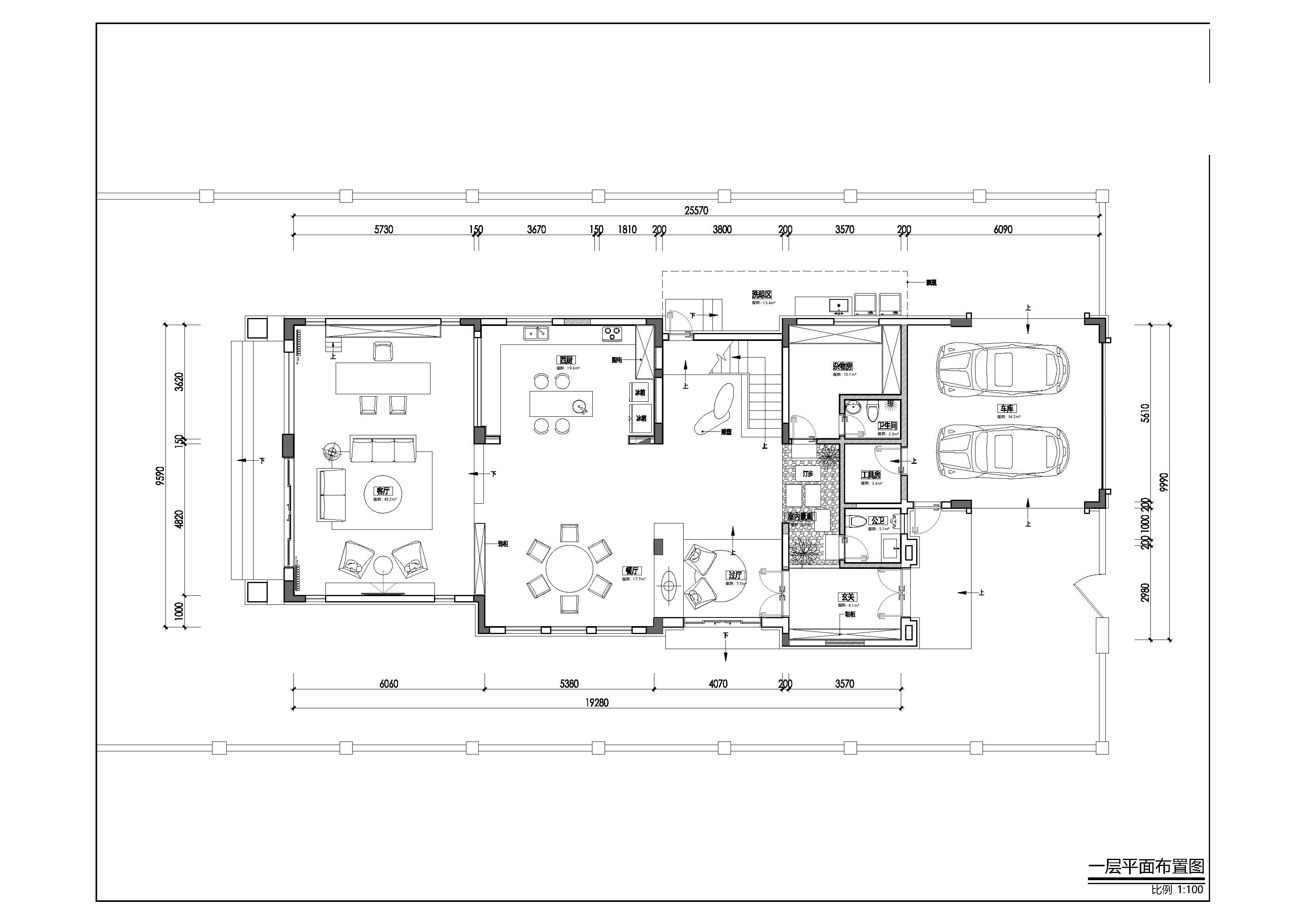
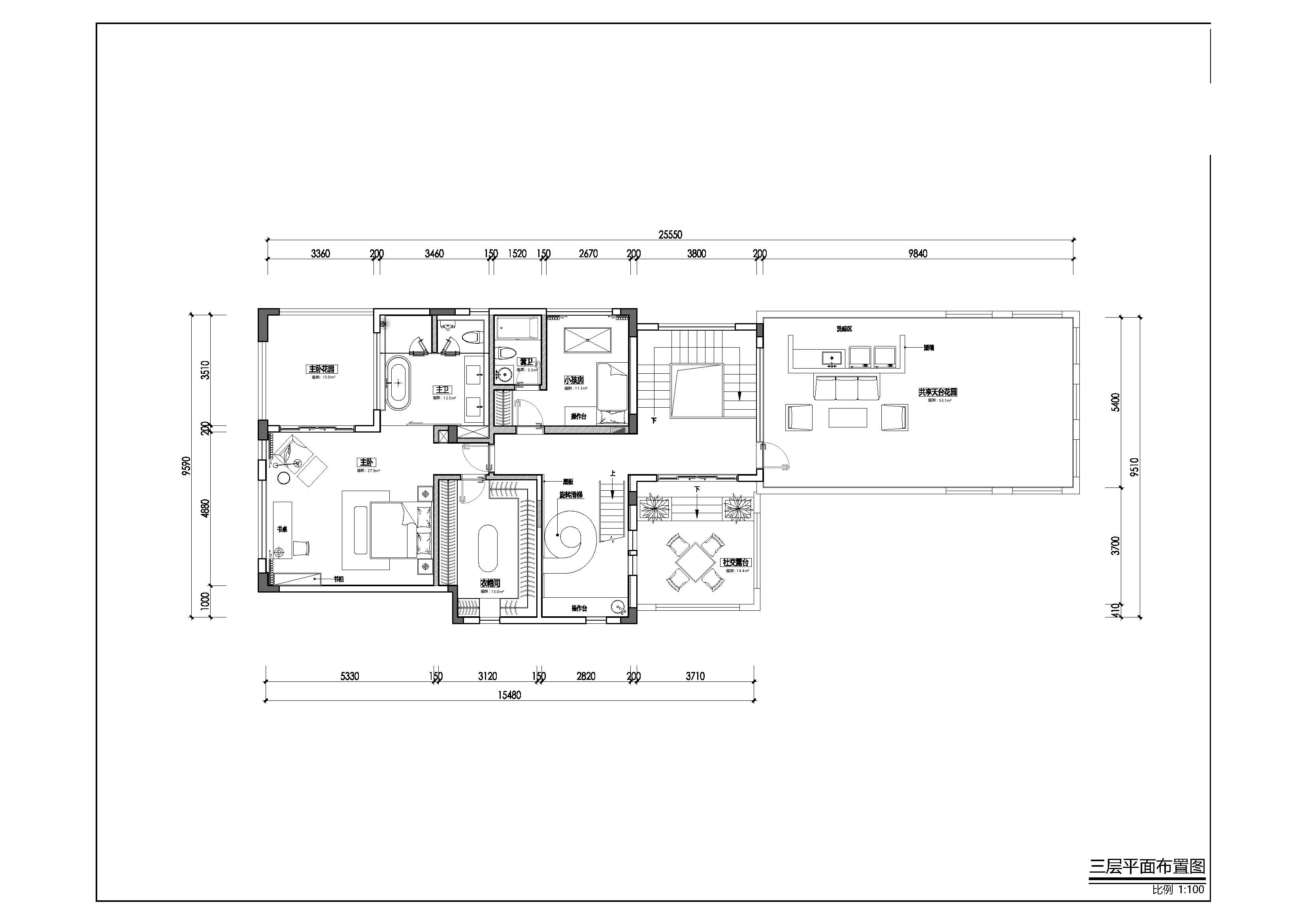
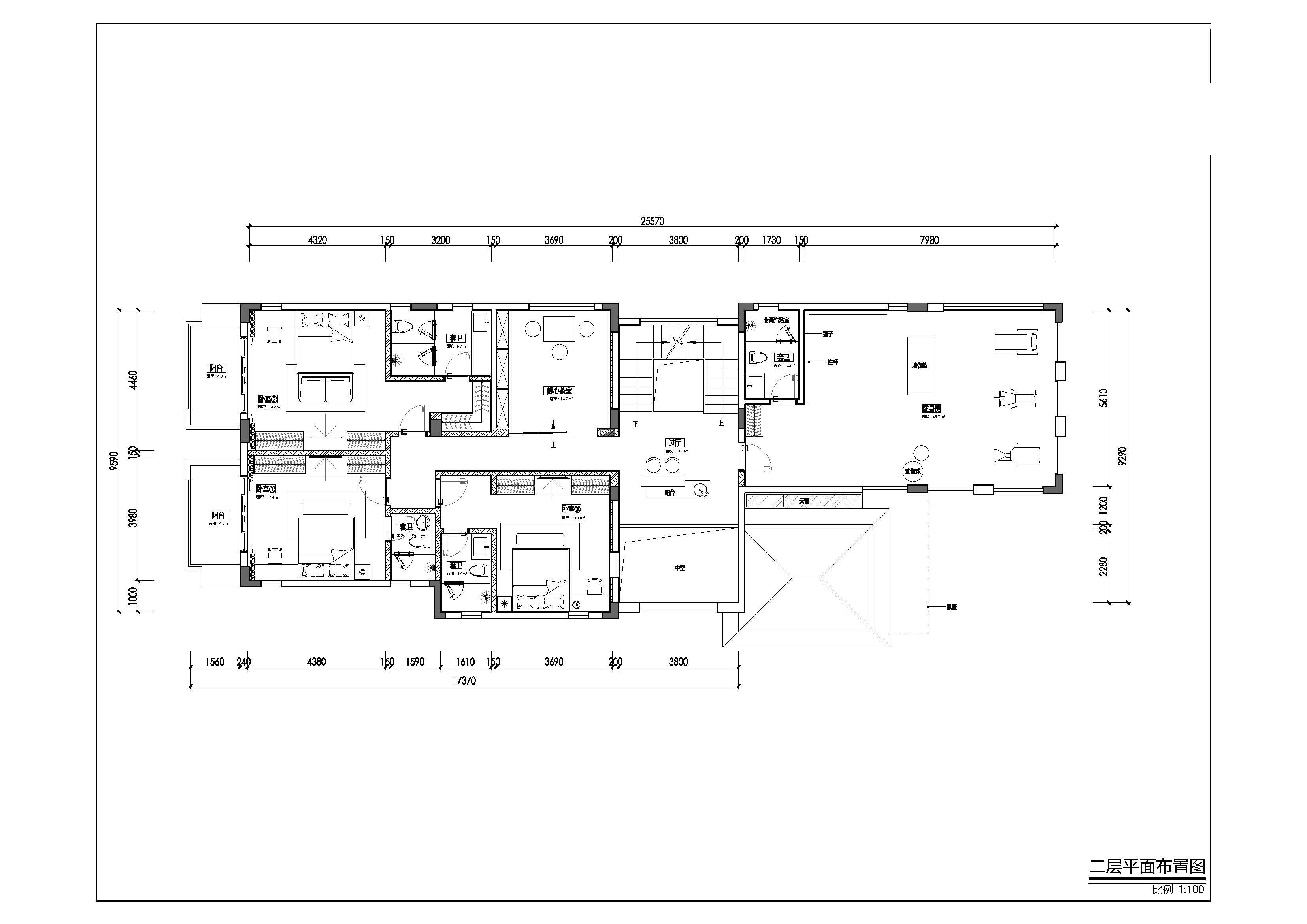
锦绣香江丹桂苑别墅
80
作品说明
- 项目类型:别墅
- 项目地点:广州市
- 建筑面积:800.0000㎡
- 项目造价:500.0000万元
- 主案设计师: 谢剑华 DAVID TSE
- 竣工时间:2024
-
项目定位:本设计旨在为一位崇尚现代极简主义的归国女士打造居所,深入融合她对钢材、混凝土的偏爱以及对建筑大师安藤忠雄设计哲学的欣赏。方案的核心在于运用清水混凝土、钢材等材质本身的质感,结合精妙的光影设计与严谨的几何构图,营造一个既冷静理性又内心宁静,并且能引发情感共鸣的居住空间。
-
空间意境:几何构筑与光影叙事。设计承袭安藤忠雄式的空间叙事手法,将自然光作为设计的重中之重。通过精准计算的墙体开窗与缝隙,阳光在室内勾勒出不断变化的几何光斑,成为空间中流动的画卷。一个可能贯穿住宅的清水混凝土螺旋楼梯,不仅是功能构件,其自身优美的曲线与光影互动更成为家的视觉焦点与精神象征。
-
空间布局:空间与自然的融合。设计注重室内与外部环境的连接,大型落地玻璃窗将自然景观引入室内,模糊内外界限。同时,也借鉴了“头大佛”项目的设计思路,注重塑造居住者内心的景观,使住宅不仅是容身之所,更是安顿心灵、与自然和自我对话的精神容器。
-
设计选材:材质的对话与平衡。空间大面积采用清水混凝土墙面,展现其质朴、原始的肌理,赋予空间一种沉稳的力量感和永恒的魅力。钢材则以黑色钢制楼梯扶手、极简窗框或定制家具的纤细骨架形式出现,与混凝土的厚重形成巧妙对比。为软化材质的冷峻感,局部将融入浅色原木地板、柔软织物以及精选的绿植,为空间注入家的温暖与生机。
-
用户体验:客户说这个家给了她不一样的温度,理性设计也可以呈现温馨的家居氛围。
0
0

认证 · 让您身份增值