草原隐宿
11
作品说明
- 项目类型:酒店
- 项目地点:迪庆藏族自治州
- 建筑面积:1400.0000㎡
- 项目造价:600.0000万元
- 主案设计师: 陈可乐
- 参与设计师:豆子
- 竣工时间:2025.10.15
-
项目定位:本项目的核心策划与定位是 “于藏地秘境,打造一座融合侘寂哲学与藏地灵性的避世居所”。它并非传统的藏式民宿或精品酒店,而是一个强调精神体验的“避世修行空间”。目标客群是寻求内心宁静、向往自然、并对美学有高要求的深度旅行者。
-
空间意境:藏地风情与侘寂美学的破界融合,创造了一种全新的、具有精神性的地域风格。
1、打破了传统藏式风格浓烈色彩(如红、黄、金)与繁复装饰的定式,转而采用侘寂美学的素雅、质朴色调(暖色艺术漆、黑色莱姆石)。这不是对藏文化的简化,而是对其精神内核的提炼。
2、将藏式文化元素进行艺术化、符号化处理,而非简单的陈列。 -
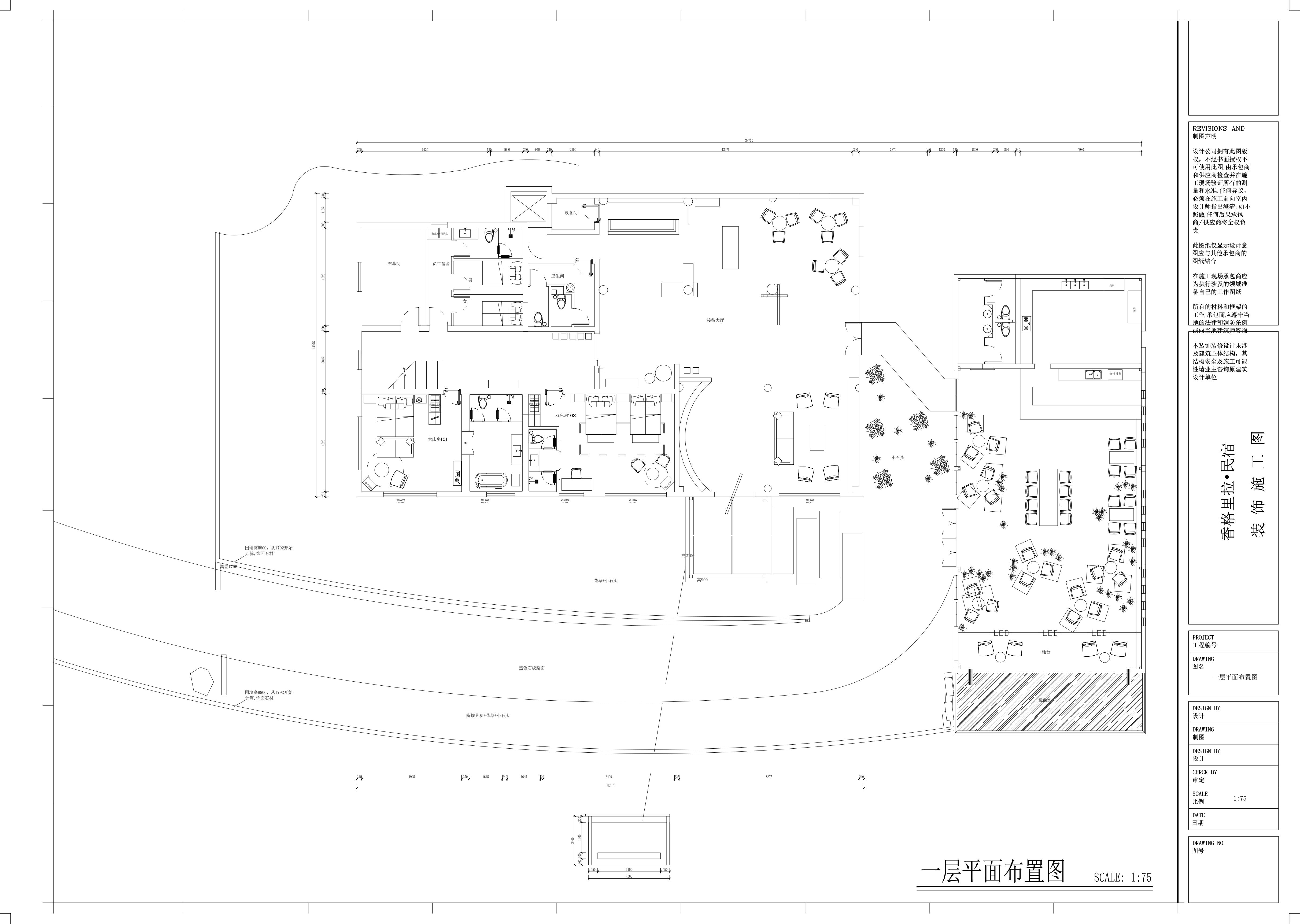
空间布局:空间布局的创新点在于 “隔而不断,引景入室”的流动性与精神分区设计。
1、在开阔的大厅空间中,没有使用实墙进行生硬分区,而是采用“民族特色软隔断”划分出沙发区。这种方式既保证了空间的通透性和视觉延伸,又巧妙地营造出不同的功能区域和心理场域,光影穿过经幡,更添朦胧与神圣感。
2、将“真火壁炉”设置在沙发区,使其成为空间内的第二个精神核心(第一个是窗外的雪山)。壁炉的跳动火焰与雪山的静谧永恒形成一动一静的对比,围合出温暖、安定的交流休憩空间。
3、从进门开始,左侧的藏式摆件墙面构成文化展示序厅,右民族布艺引导至休息区,整个流线自然而富有节奏,让客人在行进中逐步感受空间的故事性。 -
设计选材:选材策略完美体现了侘寂美学的核心,并兼顾了政策、低碳与经济性。
1、 材质对话自然: 地面选用黑色莱姆石,其粗犷冰冷的质感,与室外雪山的肌理和气质形成直接而有力的“对话”。墙顶面采用暖色肌理艺术漆,手工批刮的痕迹取代了工业化的平整,每一面墙都是独一无二的艺术品。
2、新旧融合的叙事: 采用做旧拉丝工艺的榆木家具,刻意保留木材的结节与虫蛀痕迹,这不仅是风格追求,更是一种“惜物”和“尊重时间”的态度。这些痕迹讲述了材料本身的生命故事,与侘寂美学高度契合。
3、石材和艺术漆都属于低加工度的天然材质,减少了生产过程中的能源消耗。艺术漆的耐久性和易修复性也降低了长期的维护成本。
4、减少大面积木结构使用,本身就是一种防火安全上的“低碳”和“经济”,避免了未来潜在的整改成本和风险。艺术漆作为替代材料,成本可控且能满足设计效果。
5、所选材料(莱姆石、艺术漆、做旧榆木)都具有历久弥新的特性,不易过时。这种超越潮流的设计延长了空间的生命周期,从长远看是极为经济和可持续的。 -
用户体验:1、使用后效果:巨大的窗户将雪山、草原框成一幅流动的画,室内外的材质呼应(莱姆石对雪山)会让用户产生“身在室内,心在自然”的独特体验。
2、用户评价:高频出现“宁静”、“放松”、“逃离城市”等词汇。
3、用户评价:从未想过在藏区能住进这样一个地方,它既保留了藏地的神圣感,又充满了现代艺术的静谧之美。坐在壁炉前,看着窗外的雪山,感觉时间都慢了下来。
0
1

认证 · 让您身份增值