CWT世界树:百年华西坝
111
作品说明
- 项目类型:办公
- 项目地点:成都市
- 建筑面积:15000.0000㎡
- 项目造价:2400.0000万元
- 参与设计师:韦永 王仕博 冯祖帅 钟裕勤 赵守凯 贾文梅 朱兴强 王蕴之 苏雯雯 袁思佳 罗渝清 范方镖 郭硕锐 李艳 张俊
- 竣工时间:2025.03
-
项目定位:蓝润瑞宸中心,踞守人民南路黄金中轴,裙楼聚合高端商务与创新集群,塔楼以智能调光系统、模块化空间重构办公场景,成为缝合历史与未来的城市切片。CWT世界树集团在此植入"无界办公"基因 —— 以共享空间延续"向上生长"内核,借行业沙龙、写字楼全链运营催化创新生态的根系交织,让初创团队在共享中汲取养分,于城市的土壤里向上共生。JLa设计集团 承接24-26F室内设计,从世界树集团的"根系哲学"中捕捉灵感 —— 枝叶向光而生,根系向地深耕。灵感源于成都华西坝的历史文脉,是对这片土地文化精神的致敬,空间成为"树文化"的立体注解。
-
空间意境:十二米的中庭挑空区域,是空间的核心,也是CWT世界树"无界办公"理念的视觉表达。巧妙利用挑高空间,打造充满呼吸感的"树洞"。中庭顶部采用大面积玻璃天窗,阳光透过天窗洒落,中庭四周环绕着螺旋楼梯,每层楼梯的扶手采用仿古青砖纹理,与历史建筑遥相呼应。
-
空间布局:空间中点缀的IP装置,成为最具辨识度的视觉符号。中庭区域的互动性设计,让空间充满生命力。在此处举办小型分享会,阳光透过天窗洒落,氛围良好,创意交流顺畅。
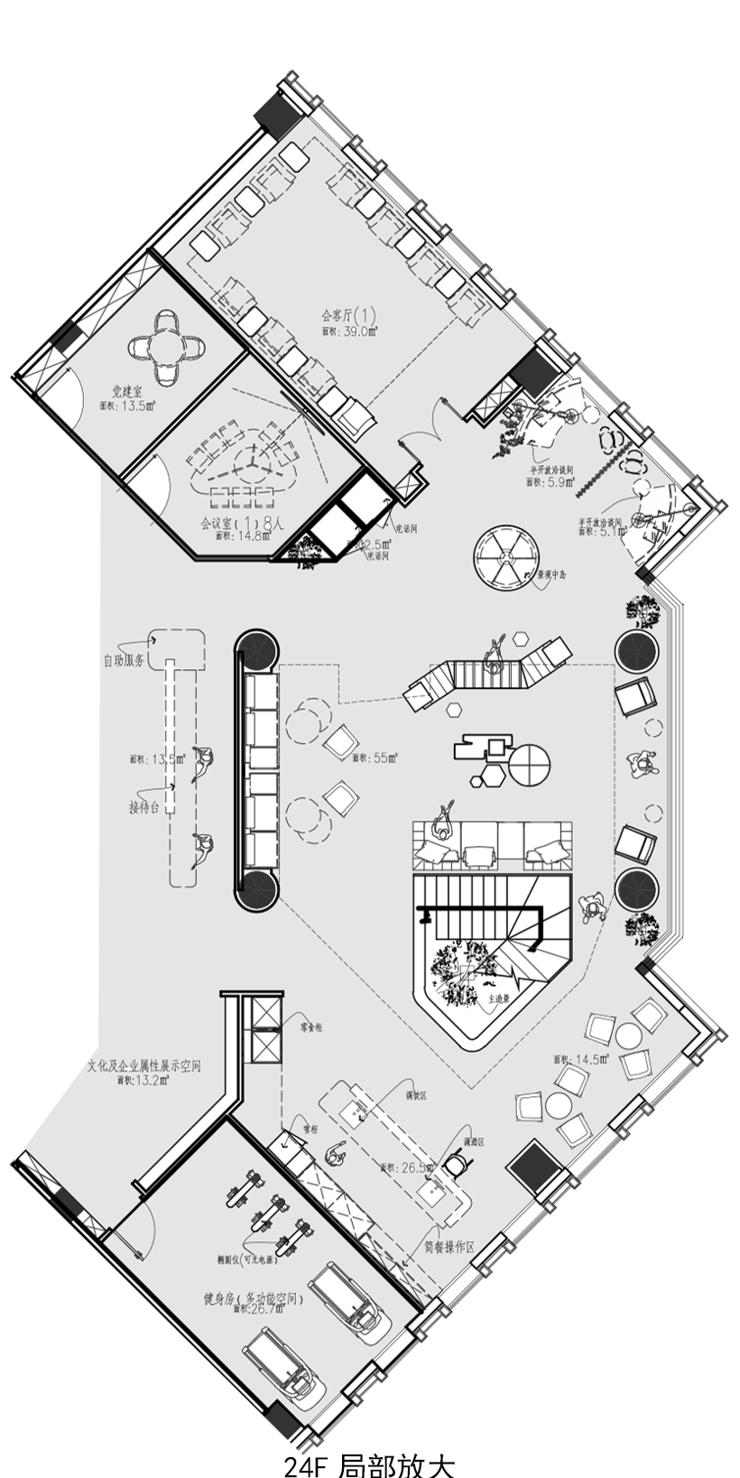
里面的局部放大平面隐藏布局亮点,大面积办公部分有一条内环游,方便业主后期租赁经营。 -
设计选材:共享区域墙面运用大量的人造石材,是废料的再运用。自然色系与现代设计的碰撞,光影以明暗渐变介入,消解界面的冷感,让静态的材质肌理与流动的人影形成微妙互文。这里不仅是办公场所,更是容纳各样文化和可能性的创新空间。
-
用户体验:小红书上CWT世界树的标签# 成都文化办公 和 用户实拍分享累积上千条,用户"城市观察员"写道:"在华西坝的办公室,我不仅找到了工作空间,更找到了成都的文化归属感。" 一位入驻企业的CEO也曾在小红书上分享:"在这里,我们与同行交流,也遇见不同行业的团队面貌。从落地窗眺望城市的景象,心中很开阔,倍受鼓舞。"
0
0

认证 · 让您身份增值