福林御璟良城200平跃层设计
1527 - 项目类型:住宅公寓
- 项目地点:邢台市
- 建筑面积:200㎡
- 项目造价:150万元
- 主案设计师: 李林达
- 参与设计师:邢台内外之间装饰设计公司
- 竣工时间:2025年10月20日
-
项目定位:本案为200平跃层项目,定位为现代风格,以挑空结构、艺术灯光与材质对比,打造兼具空间层次与美学格调的高端居住体验。
This project is a 200-square-meter duplex apartment positioned in a modern style. It utilizes a double-height structure, artistic lighting, and material contrasts to create a high-end residential experience that combines spatial hierarchy and aesthetic taste.
-
空间意境:从挑空客厅的大气,到发光餐厨的创意,再到收纳细节的精致,设计在空间层次、功能创新与细节雕琢上实现了有机融合。
From the grandeur of the double-height living room, to the creativity of the illuminated dining-kitchen area, and then to the delicacy of the storage details, the design achieves an organic integration in spatial hierarchy, functional innovation, and meticulous refinement of details. -
空间布局:针对原建筑南北不通透、楼梯局促昏暗的痛点,我们通过重构楼梯系统,使其成为兼具功能与艺术展示的空间焦点;拆除一层卧室,拓就开阔客厅形成小横厅格局,同时打造开放式厨房,彻底打通南北动线,让空间在通透感与视觉层次上实现双重跃升,重塑奢适居住体验。
To address the original building's pain points—poor north-south ventilation and a cramped, dim staircase—we reconstructed the stair system, turning it into a spatial focal point that combines functionality with artistic display. We also demolished the first-floor bedroom to create a spacious living room in a small horizontal layout, and built an open kitchen to completely connect the north-south circulation. These modifications achieve a dual enhancement in spatial ventilation and visual hierarchy, reshaping a luxurious and comfortable residential experience.
-
设计选材:
-
用户体验:
该设计以挑空客厅塑造大气纵向空间,红框通道强化动线层次,光影与材质对比让空间既开阔又富有节奏。 The design uses a double-height living room to create a grand vertical space, employs a red-framed corridor to enhance the circulation hierarchy, and leverages light, shadow, and material contrasts to make the space both spacious and rhythmic.
以挑空结构与弧形元素营造开阔感,玻璃护栏楼梯延伸纵向视觉,浅色调搭配简约家具,让空间大气通透且具艺术格调 The design uses a double-height structure and curved elements to create a sense of spaciousness, extends the vertical vision with a glass-railed staircase, and pairs light tones with minimalist furniture—resulting in a space that is grand, transparent, and endowed with artistic style.
以挑空结构结合艺术吊灯,百叶光影与壁炉灯带交织,红框元素点睛,在开阔空间中营造出富有层次的光影艺术氛围。 By combining a double-height structure with an artistic chandelier, the design weaves the light and shadow of shutters with the light strips of the fireplace, and uses red-framed elements as focal accents—creating a layered light and shadow art atmosphere in the spacious space.
玻璃与大理石虚实结合,透明材质衬出石材纹理的质感。 Glass and marble are combined in a virtual-real interplay, with transparent materials highlighting the texture of the stone grain.
以挑空结构结合艺术吊灯,百叶光影与壁炉灯带交织,红框元素点睛,在开阔空间中营造出富有层次的光影艺术氛围。 By combining a double-height structure with an artistic chandelier, the design weaves the light and shadow of shutters with the light strips of the fireplace, and uses red-framed elements as focal accents—creating a layered light and shadow art atmosphere in the spacious space.
餐厨区以发光岛台打造视觉焦点,深色柜体与独特吊灯形成层次,窗景引入让空间在精致中兼具通透感。 The dining-kitchen area uses an illuminated island to create a visual focal point. Dark cabinetry and a unique chandelier form a sense of hierarchy, while the introduction of window views endows the space with both delicacy and transparency.
餐边柜以大理石岩板呈现自然纹理,搭配暗藏灯带与黑白配饰品,在精致中凸显高级质感与空间层次。 The sideboard features natural textures with marble slabs, paired with concealed light strips and black-and-white accessories. It highlights a high-end texture and spatial hierarchy while maintaining an exquisite style.
该设计以深色系营造精致感,嵌入式灯带与玻璃材质增强层次,卧室与衣帽间的功能分区让空间既具格调又显通透。 The design uses dark color schemes to create a sense of refinement. Recessed light strips and glass materials enhance the sense of hierarchy, while the functional division between the bedroom and walk-in closet makes the space both stylish and transparent.
衣帽柜以皮革分区收纳珠宝,玻璃柜门兼具展示性,在精致细节中彰显收纳与美学的双重质感。 The wardrobe uses leather to partition and store jewelry, with glass cabinet doors that serve a display function. It showcases the dual texture of storage and aesthetics through exquisite details.
浴室以大镜面与暗藏灯带延伸视觉,玻璃隔断让空间通透,石材与木质搭配,在简约中营造出开阔且精致的卫浴氛围。 The bathroom uses a large mirror and concealed light strips to extend the visual space. Glass partitions enhance spatial transparency, while the combination of stone and wood creates an open and exquisite bathroom atmosphere within a minimalist style.
该电竞房以蓝色灯光为主调,穿孔墙展示球衣,搭配电竞椅,打造出科技感与运动氛围兼具的沉浸式空间。 The gaming room features blue lighting as its main tone, with a perforated wall for displaying jerseys and a matching gaming chair—creating an immersive space that combines a tech-savvy feel and a sports atmosphere.
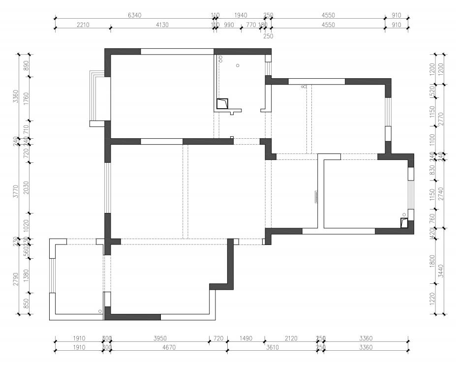
一层原始平面图|1F ARCHITECTURAL PLANE
一层平面布置图|1F FLOOR PLANE
二层原始平面图|2F ARCHITECTURAL PLANE
二层平面布置图|2F FLOOR PLANE
1
1

认证 · 让您身份增值