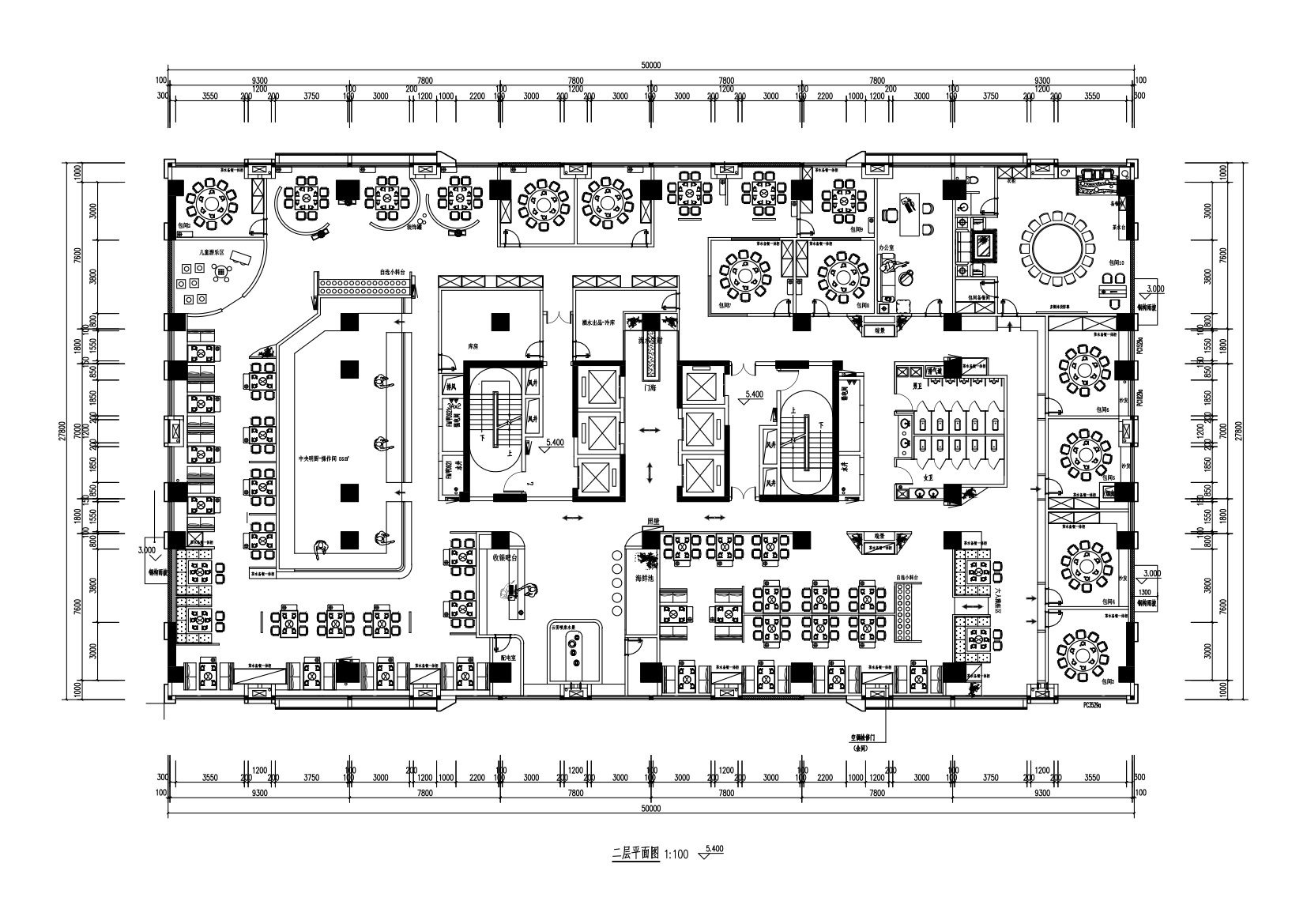
辣江南火锅
62
作品说明
- 项目类型:餐饮
- 项目地点:九江市
- 建筑面积:1000.0000㎡
- 项目造价:200.0000万元
- 主案设计师: 熊巍
- 参与设计师:宋艾慧
- 竣工时间:2025.01.06
- 设计机构:西安熊巍设计有限公司
-
项目定位:项目定位:项目位于九江市八里湖新区,商务区,餐饮类型,海鲜姿造肥牛火锅
-
空间意境:设计格调:新中式,东方气韵,含蓄内敛,结合时尚潮流,不同的诠释了新中式格调在餐饮火锅业态,空间设计中的表达和呈现
-
空间布局:空间设计中,多采用中式园林设计中“游园”的设计理念,一步一景,移步换景的理念,注重空间设计的动线变化
-
设计选材:多采用降本增效的材料,墙板,艺术涂料,镜面板
-
用户体验:还原度高,客户满意度,餐厅环境受到当地消费者的喜欢和好评
0
0

认证 · 让您身份增值