翡然


作品说明
- 项目类型:住宅公寓
- 项目地点:成都市
- 建筑面积:180.0000㎡
- 项目造价:80.0000万元
- 主案设计师: 胡顺
- 参与设计师:郭雅琪
- 竣工时间:2024/07/06
-
项目定位:设计之初在充分和客户沟通完需求后,我们提炼出客户希望空间最终呈现的效果是:家里有温馨感,简约美,外加一点奢华感。于是定下了现代轻奢的主基调。
-
空间意境:客户家庭成员为三代同居,年龄段跨度较大,我们希望每位成员都能在空间找到属于自己的个性需求和与家人共通的情感共性需求。如何让空间具有更好包容性也是设计重点。在硬装上针对一些梁,柱,墙角,吊顶进行了圆弧处理,增加空间柔性。同时软装上也使用了一些弧形的家具及图案来呼应整个空间氛围。
-
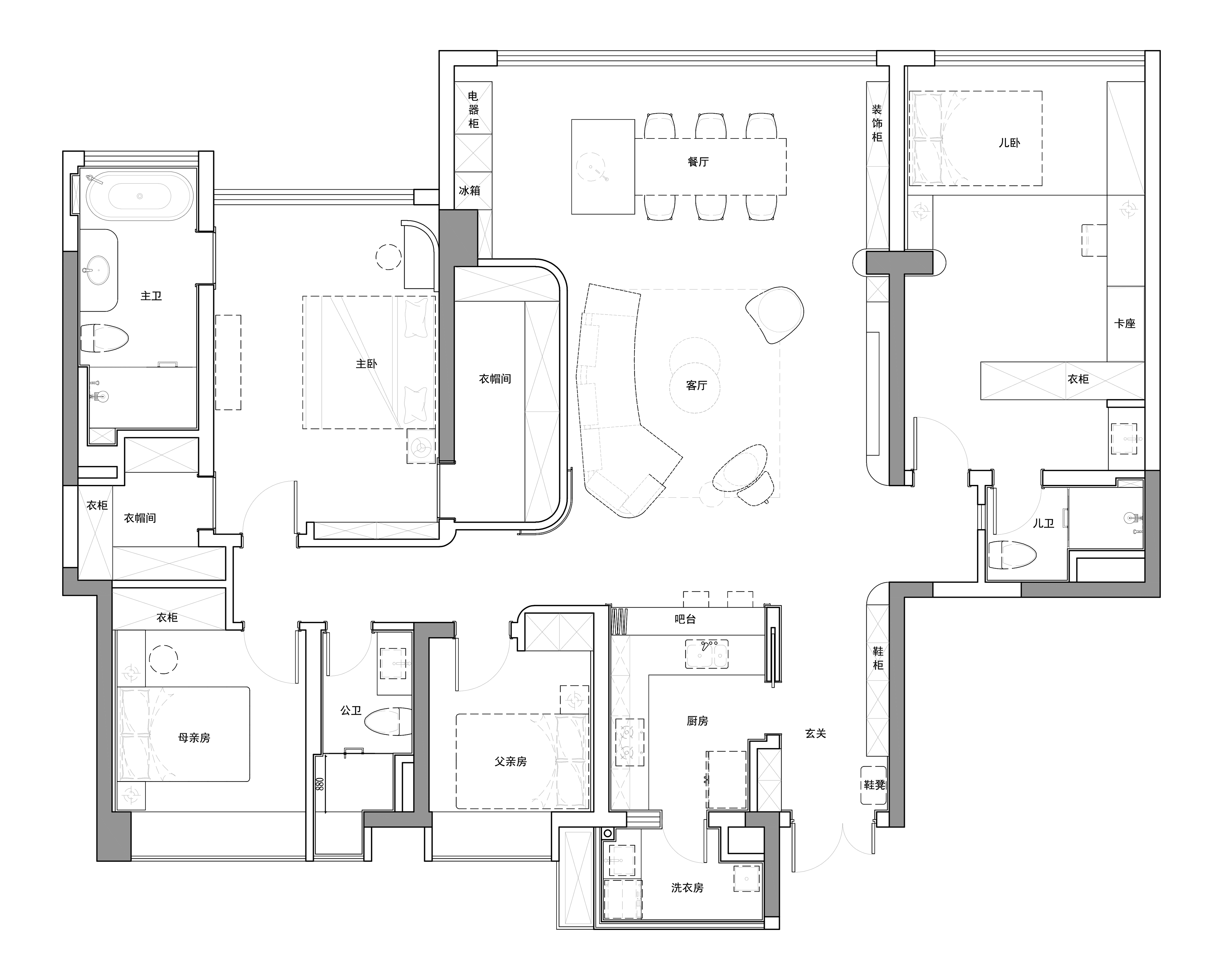
空间布局:调整厨房墙体位置,增加鞋柜收纳量。改变厨房门方向并,减少玄关到厨房距离。增加厨房外挂吧台,吧台上做折叠门,厨房门藏于墙内,所有门打开厨房变为全开放式。通过门的开合方式让厨房在封闭式和开放式中任意切换,满足实用性和美观度。
原客餐厅区域为横厅,因人员较多沙发餐桌款式较大,按原有布局摆放客餐厅空间较小,通行舒适度低。设计调整为竖厅,把餐厅挪到阳台区域,餐厅,西厨,茶台三个功能合三为一释放客厅空间,提高了原阳台利用率,用餐饮茶的同时也能观赏到室内景色。
原客厅释放的空间改为主卧衣帽间,让主卧变成双衣帽间,翻倍提升收纳量满足业主使用需求。
原儿童房中间有一个大柱子和大梁,影响床的摆放。设计调整为靠窗区域放置大榻榻米床,靠卫生间门位置设置衣柜,解决卫生间门对床的问题。同时卧室中间区域释放出来成为自由活动区,可用作学习或玩耍。卫生间洗手台外置解决了卫生间较小的问题。 -
设计选材:客户选择了全案服务.设计,施工,软装,设备,电器均由设计方主导完成。通过前期的预算分析,我们梳理了资金分配计划,最后和业主达成一致:将岩板作为点睛之笔的材料,采用进口岩板完成,同时计算好数量,合理分配到电视墙,西厨,中厨,主卫等空间使用,不浪费分毫。卫浴采用部分进口品牌+国产一线品牌的组合方式。艺术涂料和木地板以及瓷砖都采用性价比高的国产品牌完成。中央空调,地暖,净水等设备采用进口品牌。智能方面只考虑网络覆盖和基础灯光控制智能化。软装部分全部为高定产品。合理的资金分配计划提前制定,后期严格按计划实施,能有效保证落地效果及造价控制。
-
用户体验:客户入住后非常喜欢每个空间的细节设计,使用起来很方便。将随手拍的照片发到业主群,引起一阵羡慕。

