沐光書苑



作品说明
- 项目类型:公共
- 项目地点:台湾
- 建筑面积:397.0000㎡
- 项目造价:400.0000万元
- 竣工时间:2024年9月
- 设计机构:宇甄室內裝修設計有限公司
-
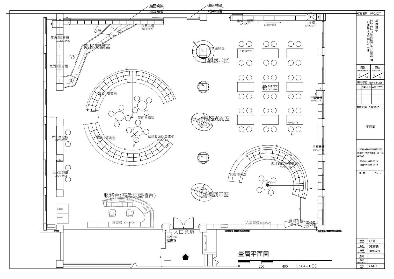
项目定位:本案件為國中校園舊有圖書館活化再利用案件,大量拆除舊有裝修並導入現代簡約的客家文化元素,以「圓」的意念來來導入圓、橢圓、曲線等線條造型,貫穿整體空間,達到空間串流手法!本案風格導入侘寂風格,期望以優雅方式傳達出人文的自然與璞真,沒有過多的裝飾、花俏,只有簡單文化之美,寧靜的享受著書中各自的黃金屋!
-
空间意境:延續苗栗在地文化精神,本案風格導入侘寂風格,期望以優雅方式傳達出人文的自然與璞真,以「圓」的意念來來導入圓、橢圓、曲線等線條造型,貫穿整體空間,達到空間串流手法!
「圓」代表簡單的美,最原始最荒蕪的美感文化元素;「橢圓」代表不同與不完美的美,如同在自然中尋找智慧,在不對稱中尋求魅力的不斷練習過程;
「曲線」則代表流串的時間長河,孕育出最長遠的文化之美! -
空间布局:本案採用減法設計,拆除掉原有裝修滿滿的舊有材質。不做天花板及大量高聳的櫃體,改以噴塗水性綠能漆及不同形式的燈具來表現空間輕巧與層次!櫃體皆以高度120公分的弧形書櫃置入空間中央,表現圓的文化概念與空間活潑流動意念!在選材上,侘寂設計風格更導向自然材料,因此帶入木材、綠色植栽等大自然材料,在材質的感受上,沒有過度修飾的光滑與拋光,體現出的是材料的粗糙及不規則感,以此來找回空間的自然質樸之感!
-
设计选材:1.在材料層面上,大量運用可拆解組裝方式進行設計,此案件使用的大量材質多考慮永續,如弧形木作櫃體可以拆解為小小一座來進行移動,未來亦可移至他處使用!木地板則採用卡扣綠能地板,未來亦可以拆解後至他處重新使用!
2.在設計精神層面上,我們以「少即是多」的侘寂風格,來向未來說明不需過度華麗裝修也有提昇品質的藝術美感空間!
3.在空間活化層面,我們創造校園、學子、社區等三方共同合作的未來共享夥伴關係,使未來產生更多元的發展使用的可能性行為活動在此發生~ -
用户体验:木質元素是建國共讀站的設計主軸,原木芬多精可以讓人放鬆、靜心、沉澱,以溫潤的質感創造幸福的閱讀空間

