平行空间



作品说明
- 项目类型:住宅公寓
- 项目地点:温州市
- 建筑面积:152.0000㎡
- 项目造价:120.0000万元
- 主案设计师: 陈磊
- 参与设计师:陈磊
- 竣工时间:2024.03
- 设计机构:境尚空间设计
-
项目定位:以”平行空间“为思考概念,设计将空间视为居住者内心世界的表达,描绘在快节奏都市生活背景下,内心所向往的”另一处平行空间“,时间相错,人物不变,却与外界无关,旨在挖掘内心深处的情感需求。考虑到项目业主是一位单身的年轻男士,在未来的生活状态中,可能会面对无限的变化。设计以发展的目光审视空间,同时思考当下的使用感受,意图打造一个进退得宜,攻守兼备的空间状态。
-
空间意境:暗色物质压低空间明度,于是外来的自然光源更显充沛。设计师希望打造明亮富有质感的生活情景,同时尊重业主对暗色场域的喜好,揉合明与暗间的调和比例,打造一个年轻自由且具有思考深度的感性空间。
-
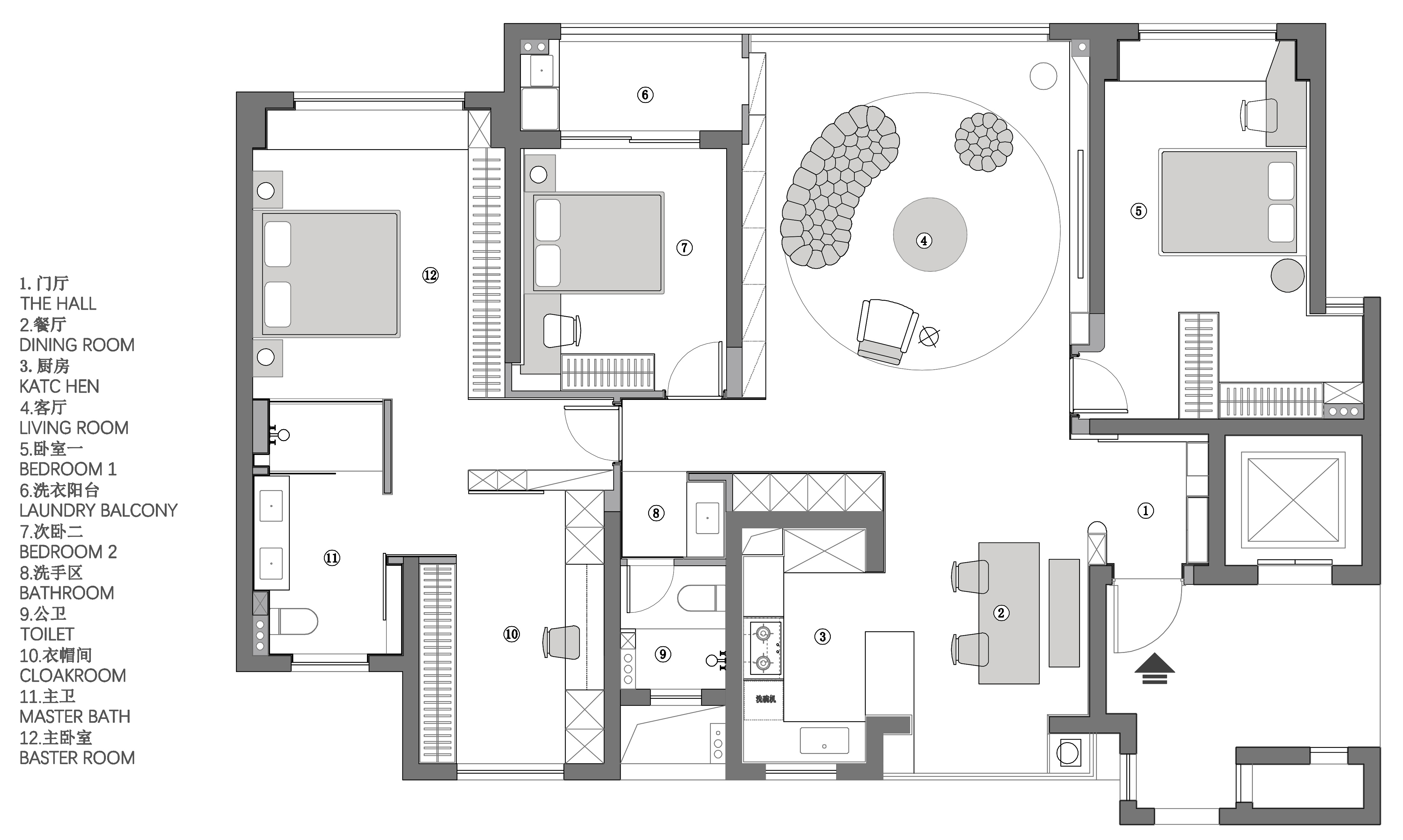
空间布局:纳入阳台,串联餐厅区域后,客厅汲取到来自两边的丰沛光照,但在设计看来,顶面无法避免的梁结构割裂了视觉关系,下一步要做的,是重建场域间的分离结构。设计通过弧形的线条,以及斜面的处理,带来自然的过渡效果,弱化梁柱的存在感,形成统一开放,明亮宽敞的布局。深色木饰面与白色墙体间形成分明的落差,一明一暗,一侧代表指引,一侧暗示转折,场景间不断穿插交替,却从未打断视线的延展,随着灯光亮起,归家的仪式感,在此刻形成完美闭环。设计,是让世界更接近我们的梦想。
-
设计选材:来到家装空间,设计师希望能够在实用性的选择之余,尽可能贴近业主的心中所想,于是在最具个人倾向的主卧空间使用大量的暗色元素,并减少不必要的装饰,只通过材质间肌理质感的不同作为层次的区分。
-
用户体验:设计,是让世界更接近我们的梦想。来到家装空间,设计师希望能够在实用性的选择之余,尽可能贴近业主的心中所想 ,于是在最具个人倾向的主卧空间使用大量的暗色素,并减少不必 要的装饰,只通过材质间肌理质感的不同作为层次的区分。

