佛山优范酒店



作品说明
- 项目类型:酒店
- 项目地点:佛山市
- 建筑面积:310.0000㎡
- 项目造价:1000.0000万元
- 参与设计师:陶贤龙
- 竣工时间:2024
- 设计机构:广西东壹壹装饰设计有限公司
-
项目定位:佛山作为岭南文化的代表城市,其深厚的历史文化底蕴与繁荣的当代经济交织在一起,为设计注入了独特的灵感与活力。本次是优范酒店品牌进驻佛山的第一家酒店,将设计聚焦于兼具现代感与地域文化特色的空间,目标是为客人提供一个舒适、雅致且充满当地文化氛围的迎宾环境。
-
空间意境:大堂空间的设计强调宁静、雅致与文化气息的融合。通过简洁的线条和丰富的材质变化,创造出一种既现代又传承文化的氛围。空间内的布置以“留白”的设计手法,使整个环境显得宽敞、明亮且富有层次感。大堂中央的绿植装饰,赋予空间生机与自然的感觉,与佛山传统园林艺术不谋而合。
-
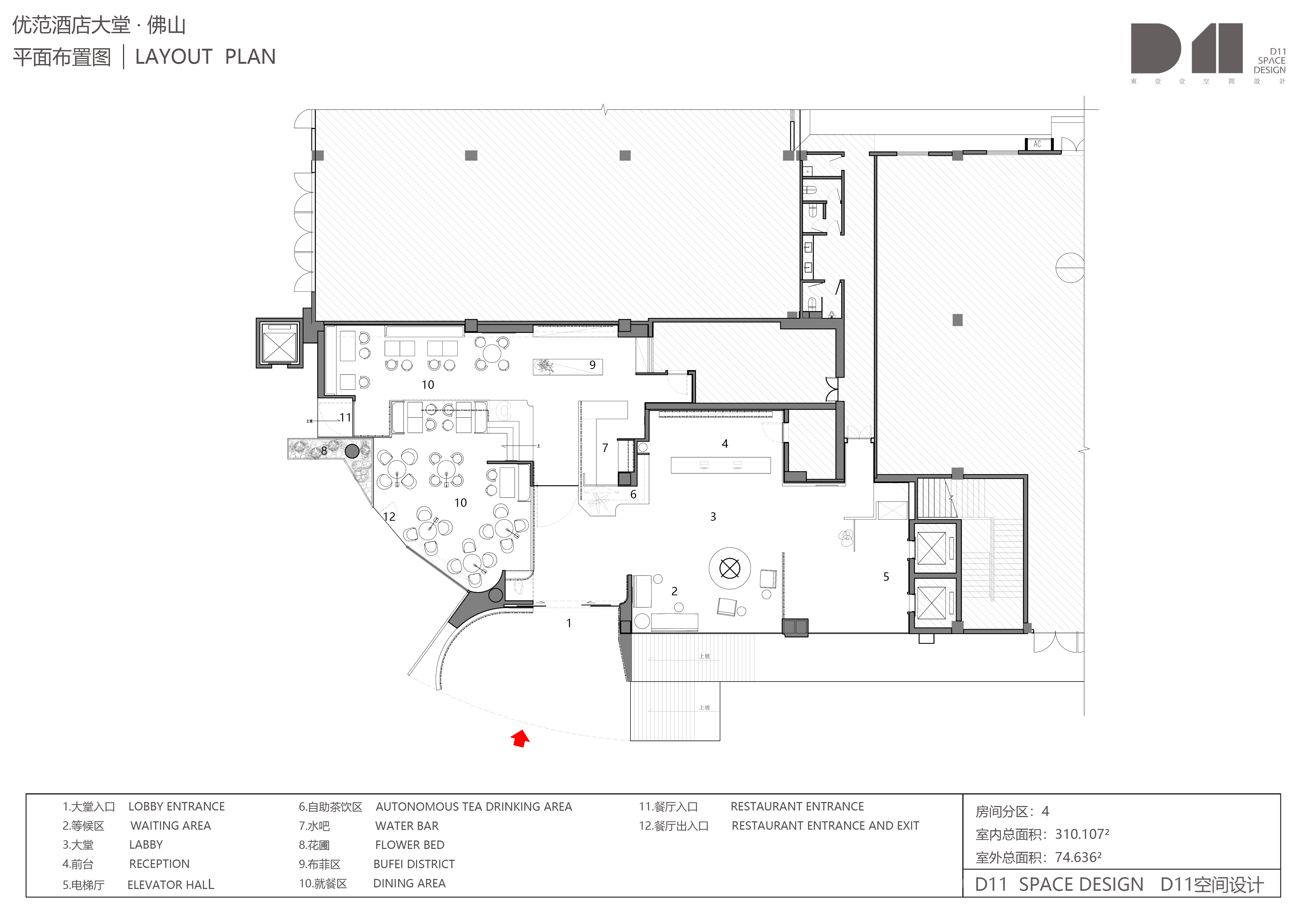
空间布局:大堂的布局通过开放式的设计理念,使功能区域划分明确且流畅。接待区设在入口处,便于客人快速办理入住手续。等候区设置了圆形的座桌与舒适的座椅,宾客可以在此休息、交流。大堂一侧展示了包含传统与现代元素的艺术装置,进一步增强了空间的文化内涵。另一侧是简单而宽敞的就餐区,为客人提供就餐、喝咖啡的选择。
-
设计选材:大堂采用了简洁而高端的材质组合,强调质感与实用的平衡。地面与墙壁选用了高质感的石材与木材,提升整体空间的温暖感,其中木材体现了佛山传统建筑的温润质朴。灯光设计运用了暖色调,尤其是悬挂在中央的圆形吊灯,既是一道亮丽的风景线,又恰好呼应了岭南文化中的圆满理念。艺术装饰画则采用了岭南画派的风格,强调中西结合,既保留中国传统水墨神韵,又吸收西方写实主义的技巧。彰显地域文化的独特魅力。
-
用户体验:佛山优范酒店大堂通过细致入微的设计,让宾客在每个细节上感受到舒适与贴心。柔和的灯光、简洁的家具配置,结合高端的材质选用,使客人在进入大堂的第一时间就能感受到温馨与放松。同时,多样化的设计元素与开放的空间布局,既保持了私密性,又方便了客人的行动与互动。绿植的点缀不仅带来视觉上的愉悦,更营造了健康、清新的氛围。
通过对佛山传统文化与现代设计风格的碰撞,佛山优范酒店大堂不仅提供了一个舒适优雅的环境,更展现出了佛山深厚的文化底蕴和创新活力。无论是材质的选用,还是空间的布局,都体现了设计师对细节与功能的极致追求,成功地为宾客打造了一个独特而难忘的空间体验。

