-
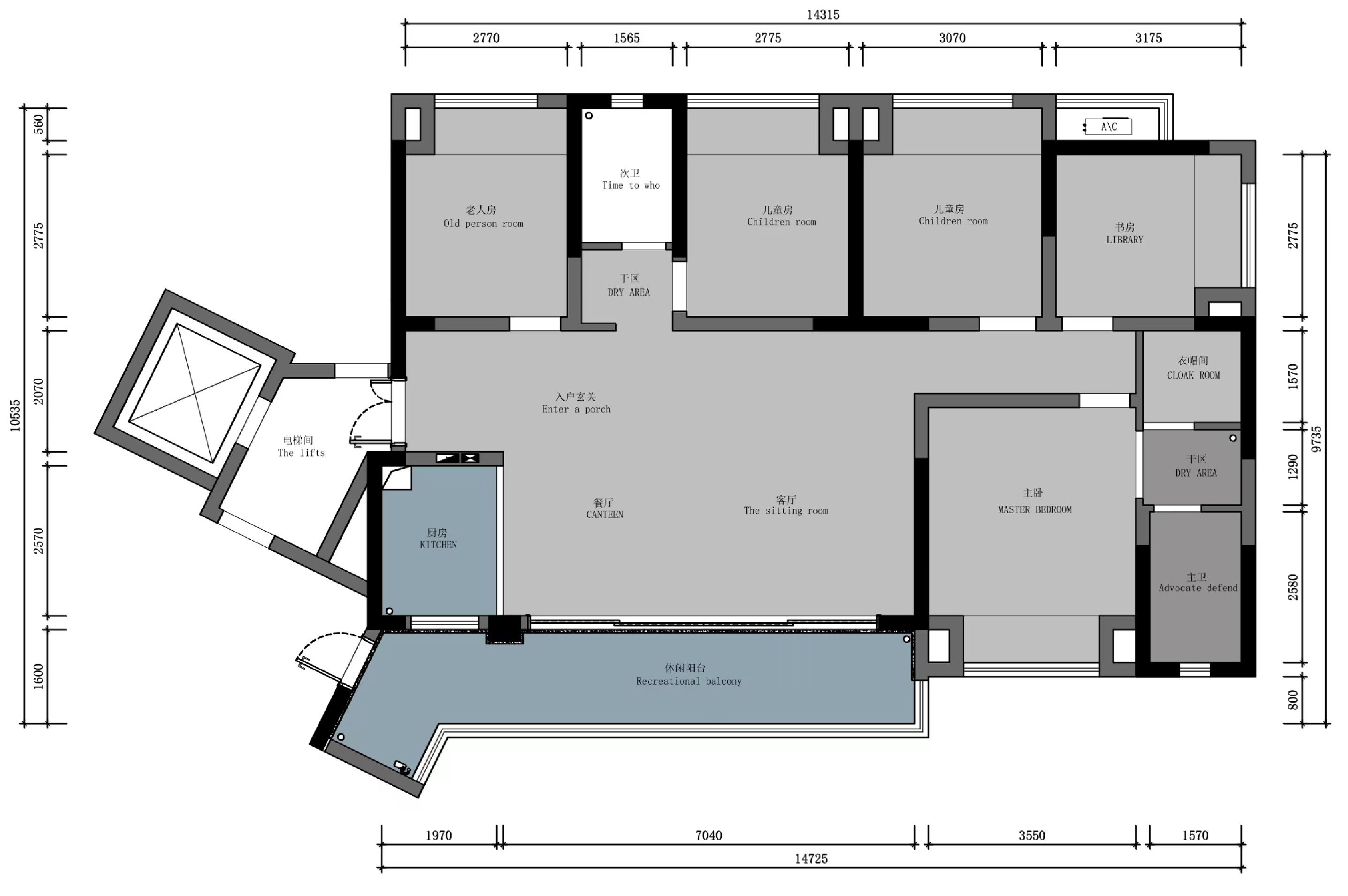
项目定位:客厅扩大,让空间看起来比实际大.空间利用率用起来。电视机换个方向让空间的过道与客厅形成整体。
-
空间意境:目前是一家人入住,夫妻二人,两个宝贝儿子,父母,需要空间分配合理,因为考虑和父母一起住,希望空间动线上合理,顺畅,储物功能强大,需要杂物间,喜欢偏法式,带复古韵味,钟爱红色。
主卧套入衣帽间,舒适干净安逸的环境,不要太多繁琐的东西,想要简单不浮夸。 -
空间布局:入户有独立的中厨将冰箱放置在入户门口,方便拿取,并且使厨房的利用率变得更加宽敞,保留原有的外阳台,平时围炉煮茶,偶尔在阳台吃吃烧烤,看看夜景,还是很惬意的
-
设计选材:家里大多数是女业主做主,平时她喜欢旅游,喜欢收集精致的旅行藏品,她的内心其实很细腻,像纯净的小女生,钟情于乖巧精致的东西。在家具选择上更多是小巧为主,抛弃调传统美式家具的厚重感,将柔软,亲肤的材质融入空间,用一些圆润的元素去打破空间的棱角,同时线条感的融入,让空间有一个延伸感,拉长视角,给一种空间大的视角,而不会显得家具太过小巧。
-
用户体验:觉得设计师很专业,结果可以说是完美的呈现,甚至有过之而无不及,感觉设计师不仅仅是在为业主设计房子,而是在设计生活。

