陆川优范酒店


作品说明
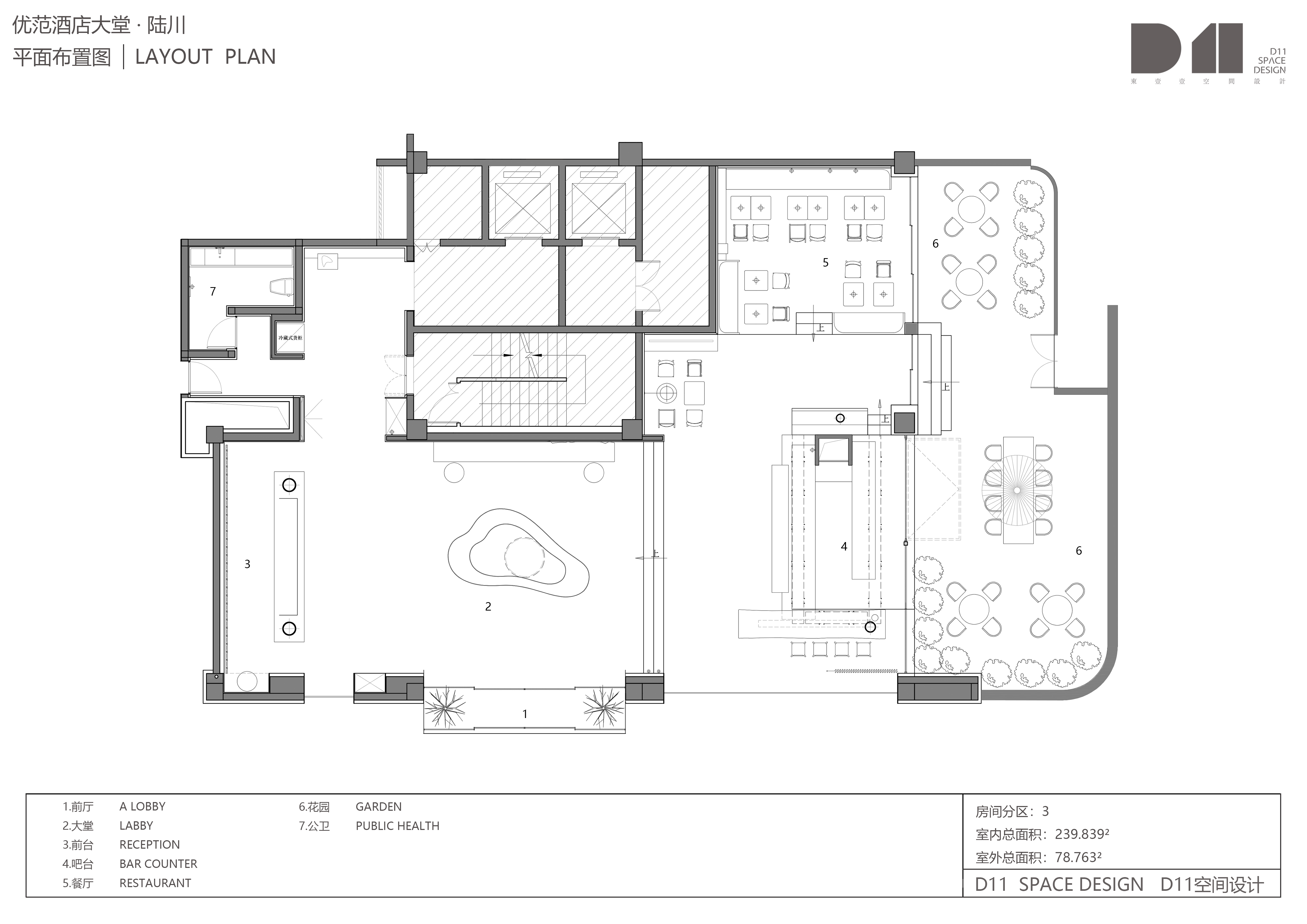
- 项目类型:酒店
- 项目地点:玉林市
- 建筑面积:239.0000㎡
- 项目造价:1500.0000万元
- 参与设计师:陶贤龙
- 竣工时间:2020
- 设计机构:广西东壹壹装饰设计有限公司
-
项目定位:陆川县位于广西壮族自治区南部,以独特的地理环境和悠久的少数民族历史著名。本次优范酒店品牌来到陆川,设计师希望通过现代设计理念与陆川丰富的地貌和文化特色的结合,打造一个能为宾客提供兼具美学价值和功能性的别致空间。
-
空间意境:步入酒店大堂,高耸且充满金属质感的穹顶和流畅的线条,穹顶挑高最高达10米,不仅达到视觉上的延伸,更让充满仪式感的氛围迎面扑来。 大堂中心的圆柱显示屏,不仅是一种现代科技的点缀,更像是对传统与现代完美融合的礼赞,下沉式空间设计,增添了空间的层次感。设计灵感来源于陆川独特的自然地貌,以简约现代的设计风格为基础融合当地的山地、丘陵、平原等自然元素,宾客置身其中,能感受到这是一个富有层次感和自然韵味的空间。
-
空间布局:酒店大堂的布局设计合理,功能明确。从入口处延伸至接待台的直线动线设计,使得空间显得开阔而不凌乱。接待台背后高大的金属墙面设计和流线型的穹顶设计,赋予空间强烈的立体感和现代感。中央的圆柱显示屏,在拉伸空间纵深感的同时,也成为整个大堂的视觉焦点。延续至餐厅区域,超高加大的饰品展示架上,在白日阳光通过一整面落地玻璃窗倾泻而下,在夜间设计师运用温暖的灯光营造下,饰品显得熠熠生辉。
-
设计选材:大堂地面采用自然纹理的石材铺设,具有良好的耐久性和美观性。石材的自然纹理与陆川的山地和丘陵地貌相呼应,增强了空间的自然气息。墙面的一部分采用金属装饰,形成冷暖材的对比,提升了空间的现代感。大堂内的家具选择简洁、舒适的现代风格座椅,表面材质多样,兼顾了美观性和用性。
-
用户体验:酒店大堂不仅是一处过渡空间,更是宾客初次接触酒店的第一印象所在。通过巧妙的空间布局和选材,增添了空间的舒适度和审美性,令宾客一入大堂便能感受到酒店的精致和用心。大堂内置有舒适的座椅和等候区域,为宾客提供舒心的等待和交流空间。整体设计注重视觉和情感的双重体验,浸润于当地文化的同时,也符合现代人的审美需求。
此次项目设计师注重空间的层次感和流动性,模拟山地和丘陵起伏的线条,利用高低错落的手法,使空间更具动态感和自然美。通过高效的空间布局、精细的材料选择和贴心的用户体验设计,不仅提升了酒店的整体形象和品牌价值,也为宾客带来了一独特的入住体验,完美诠释了品牌理念与当地特色结合的设计精髓。

