-
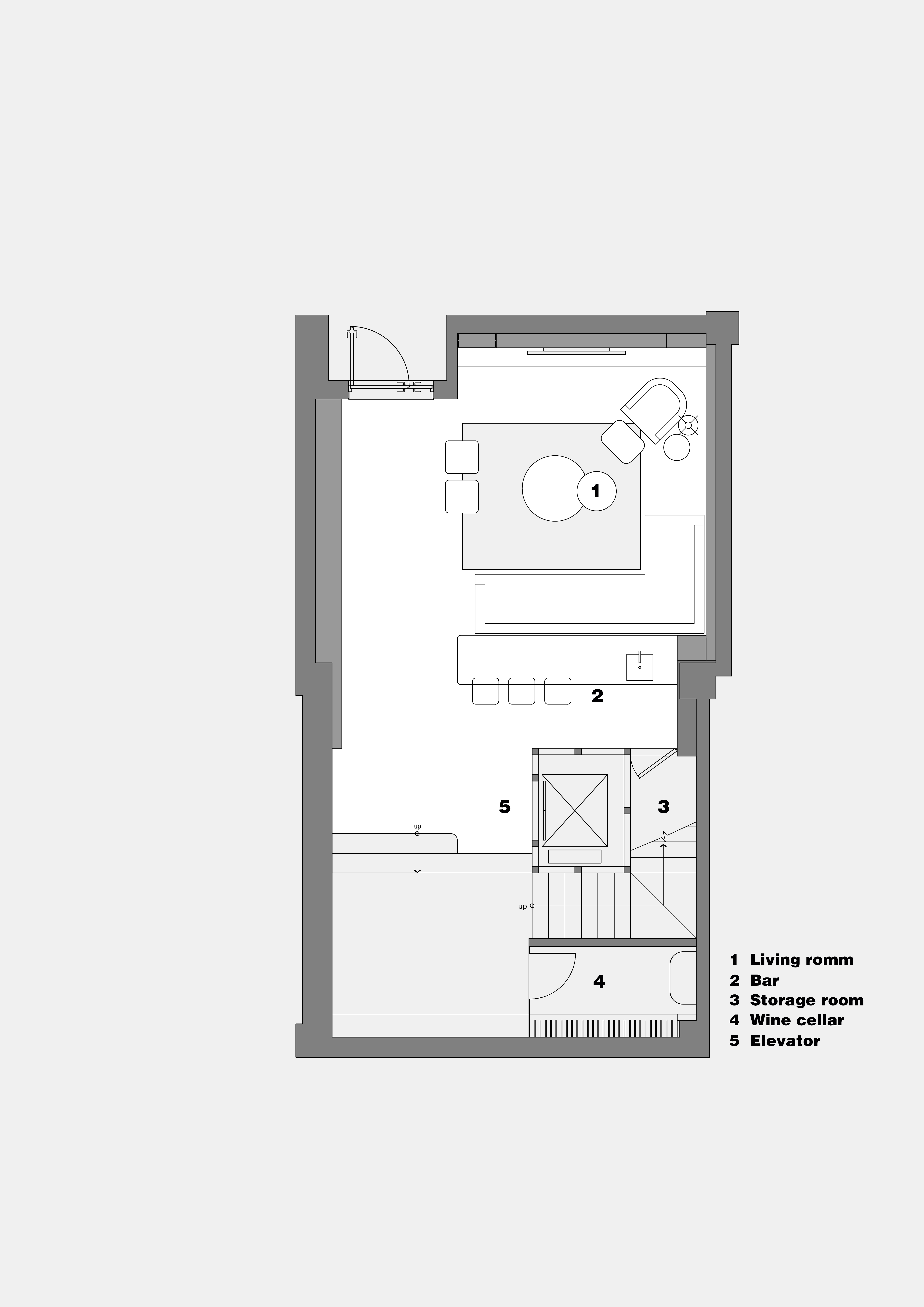
项目定位:本案为三层别墅,向下延伸一层地下空间。设计师采用非线性叙事结构,将空间元素进行组合、转化、互译,自由调度多场景联动,传达自然、共生的场域精神。
-
空间意境:在现代布局中汲取城市与自然的互译元素,运用艺术的律动重塑生活美学。
-
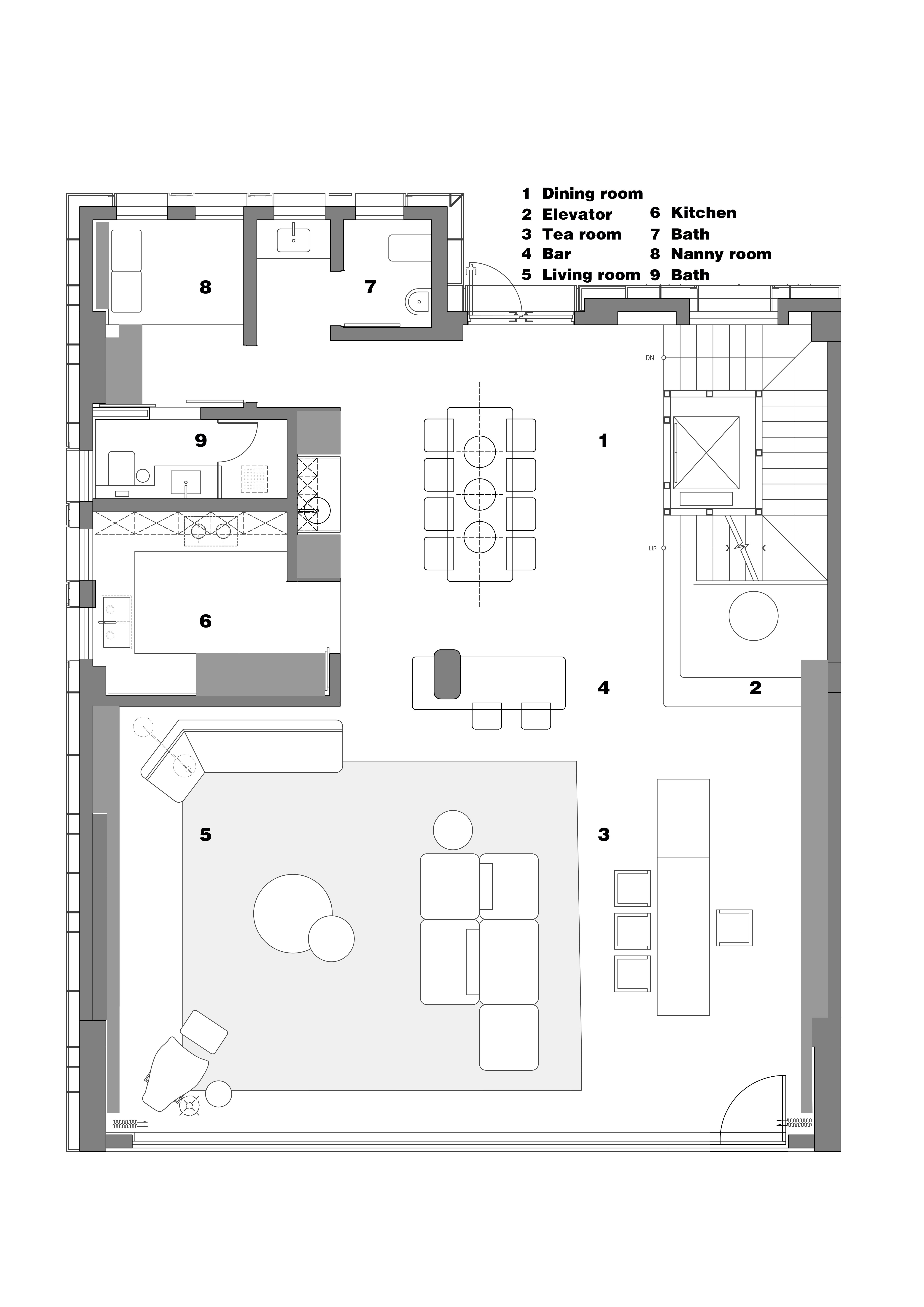
空间布局:克制的隐退释放舒朗格局。设计师将客厅、餐厅、茶室、吧台进行综合梳理,最大化隐去立面阻挡。同时采取秩序协调、分而不离的区域调度,捕捉风景与光的自然感知,在既定的尺寸中,释放漫无边际的生活纵深。
-
设计选材:弱化装饰性背景,大面采用艺术涂料 强调空间平衡 自然
-
用户体验:流畅动线呈现高效布局,理性主义体现地淋漓尽致。

