龙生售楼处项目
370
作品说明
- 项目类型:样板间/售楼处
- 项目地点:沈阳市
- 建筑面积:1068㎡
- 项目造价:481万元
- 主案设计师: 许磊
- 参与设计师:许磊、刘明雪、郭嘉懿
- 竣工时间:2024.06
- 设计机构:辽宁品铸三石装饰设计有限公司
-
项目定位:本项目旨在打造一个集缅怀、纪念、文化传承与生态环保于一体的现代化墓园,为逝者提供安息之所,为生者提供一个寄托哀思、缅怀亲人的宁静场所,同时融入丰富的人文内涵与生态理念,成为城市中独具特色的生命纪念园区。
-
空间意境:售楼处整体空间以现代简约风格为基础,采用简洁流畅的线条和大面积的通透空间设计,营造出宽敞明亮的视觉效果。天花板的简洁造型与大面积的白色墙面相互呼应,给人一种干净、整洁且大气的感觉,摒弃了传统墓园售楼处可能带来的压抑与沉闷,展现出一种与时俱进的现代气息。售楼处大面积的落地窗将充足的自然光线引入室内,使整个空间明亮通透。自然光洒在光滑的大理石地面上,形成自然的光影流动,随着时间的推移,光影的变化为空间增添了一份灵动与生机。窗外的景色透过玻璃映入室内,模糊了室内外的界限,让客户在选购墓园的过程中,也能感受到自然的美好与宁静,缓解内心的沉重与忧伤。
-
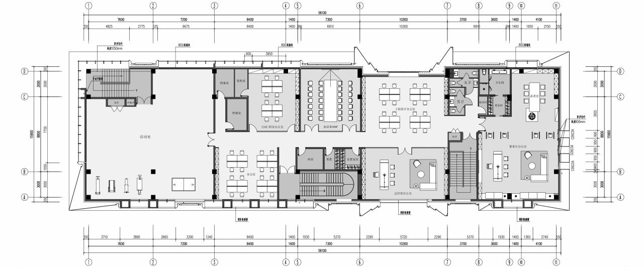
空间布局:售楼处内部采用高挑空设计,天花板高度远超常规空间,营造出开阔大气的氛
围。这种设计不仅让整个空间显得更加宽敞明亮,还赋予了一种空灵、庄重之感,契合墓园
售楼处所应有的宁静与肃穆氛围。高挑的空间使得光线能够更好地在室内流转,自然光透过
大面积的窗户洒入,与室内灯光相互辉映,营造出温馨而不失庄重的环境,让客户在进入售
楼处的瞬间便能感受到空间的独特魅力与品质感。墙面上方采用了大面积的镂空金属格栅作
为隔断,这种设计既在视觉上划分了空间区域,又保持了空间的通透感。格栅的排列疏密有
致,光影透过格栅洒下,形成独特的光影效果,仿佛时光的印记,寓意着对逝者的缅怀与纪
念。同时,格栅的存在也为空间增添了一份层次感和神秘感,吸引客户进一步探索售楼处内
部的各个区域。开放式的布局,将接待区、洽谈区和展示区等功能区域有机地融合在一起,
形成一个流畅的空间动线。客户可以在各个区域之间自由穿梭,不会感到空间的局促和压抑,
这种开放式布局打破了传统售楼处功能分区明确但略显生硬的模式,增强了客户与空间的互
动性和体验感。 中央位置悬挂着一个极具视觉冲击力的大型吊灯,其独特的造型宛如一个
时光的容器,吸引着人们的目光。吊灯由多层圆环组成,外层是轻盈的金属网,内层则是错
落有致的酒架,既具有装饰性又兼具实用性。这个吊灯不仅成为了整个空间的视觉焦点,还
巧妙地起到了空间引导的作用,客户的视线自然会被其吸引,进而引导他们向售楼处的核心
区域移动,如接待台和展示区等。大面积的落地窗将室外景观引入室内,使室内外空间相互
交融。客户在售楼处内可以欣赏到窗外的自然景色,如绿树、蓝天等,这种与自然的连接不
仅缓解了室内空间可能带来的压抑感,还为客户提供了一个放松身心的环境。窗外的景观与
室内的装饰和布局相得益彰,共同营造出一种宁静、舒适且富有诗意的氛围,让客户在了解
墓园项目的过程中,能够感受到一种对生命的敬畏和对自然的尊重。 -
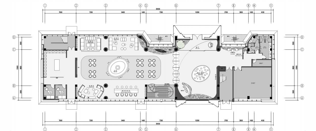
设计选材:售楼处内材质的选择丰富多样,且注重质感的对比与融合,营造出独特的空间氛
围。地面采用了光滑如镜的深色大理石材质,其细腻的纹理和强烈的反光效果,不仅提升了
空间的奢华感,还通过反射周围的环境,增加了空间的层次感和开阔感。而家具则多选用白
色的皮质或仿皮质材料,柔软的质感与硬朗的大理石地面形成鲜明对比,给人一种刚柔并济
的舒适体验。此外,立柱表面采用了带有天然纹理的石材,其粗犷的质感与周围精致的材质
相互映衬,仿佛在诉说着自然的力量与生命的坚韧,为整个空间增添了一份沉稳与厚重。 -
用户体验:踏入售楼处,首先映入眼帘的是极具设计感的空间布局。高挑的天花板搭配独
特的圆形吊灯,吊灯由金属线条和网状结构构成,内部还巧妙地设置了酒架,既现代又富有
创意,成为整个空间的视觉焦点,仿佛一件艺术装置,瞬间吸引来访者的目光,给人一种高
端大气的感觉。尽管是墓园售楼处,但整体氛围并不压抑,而是通过软装和细节设计营造出
一种舒适与温馨的感觉。白色的沙发和座椅造型简约时尚,搭配色彩鲜艳的抱枕,为空间增
添了一抹活力与温暖。沙发的材质柔软舒适,坐上去能够很好地缓解疲劳,让来访者在咨询
和了解相关信息时感到放松和自在。售楼处的布局合理,设置了多个咨询区域和展示区域。
咨询台的工作人员热情专业,能够为来访者详细介绍墓园的各种信息,包括墓型、价格、位
置、配套设施以及墓园的文化理念等。展示区域通过图文并茂的方式,展示了墓园的规划图、
景观效果图、不同墓型的模型等,让来访者能够更加直观地了解墓园的整体情况和细节特点,
方便他们做出决策。对于一些对墓园文化和丧葬礼仪不太了解的来访者,售楼处还提供了相
关的宣传资料和视频讲解,帮助他们更好地理解和接受墓园所倡导的理念和服务,提升了信
息传递的效果和客户的满意度。 从整体设计到细节装饰,售楼处都展现出了高品质和专业
的形象,这无疑提升了墓园项目在客户心目中的品牌形象。来访者通过对售楼处的体验,能
够感受到墓园项目背后的用心和实力,从而增加对项目的信任度。
0
0

认证 · 让您身份增值