阿玛周措大酒店



作品说明
- 项目类型:商业
- 项目地点:甘南藏族自治州
- 建筑面积:21000.0000㎡
- 项目造价:150000.0000万元
- 主案设计师: 郑述戈
- 参与设计师:牛正乐
- 竣工时间:2020.5
- 设计机构:甘肃雅普装饰工程有限公司
-
项目定位:阿玛周措(藏语)意为天池的意思,位于离内地最近的雪域高原甘南藏族自治州冶力关景区。这里主要分布的民族回、汉、藏。号称“山水冶力关”兰州后花园。项目面积21000平方米,涵盖酒店、民宿、公寓和培训中心。甘南它不仅是一个地理学意义的概念,更是一个旅游与文化与宗教的代名词,在这里世俗的喧嚣与澄澈的信仰共生,是独一无二又无法复制的彼岸。不同的民族、民俗、民风与大自然和谐共唱。是一个栖身之所和灵魂净土。
设计以“境遇”为设计思源,将甘南的地域、人文、自然等多维度体现在酒店设计之中。同时将生态文化与现代价值观体现在少数民族地区这一生态智慧载体中,并渐渐显现了他自身价值,这也需是对自生文化认同的探索。
设计思考建筑、空间、生态、与人的共生关系和情感交互关系。我们努力创造物理环境的同时重点创造“心里环境”。因为酒店不仅是个物理概念,也不仅是个空间容器,它是一种和谐与沟通,情感与讲述的转化。还是对功能行为的人文思考,也是对乡村文化自信的认同。
旅游激活了曾经的落后同时也打破了曾经的安静。在这里我体会到差距有时候也是一种特殊的资源。这里在发生变化,但变的是原住民明天收获的微笑。变的是这里的每一个物件都延续着本民族的身份记忆和对乡土的情怀。 -
空间意境:一种质朴的材质它们的存在从来都是以量存在,绝对不是以个体存在。量的聚变本身构成一个环境秩序的美感。空间真实的情感表达,体现一种恰当的朴素和梦幻的情感。“碉房”以木质结构最为特点,体现了高寒地区安全与温暖的内心含义。同时也体现了旅居者舒适、尊享,对异质文化空间的想象力和艺术感染力,也是人类对于第三空间的探索和期盼。
-
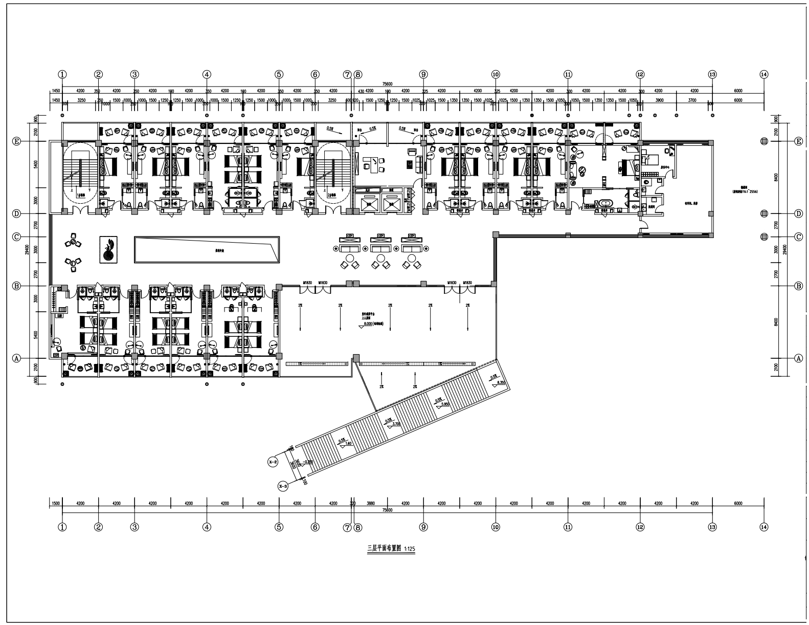
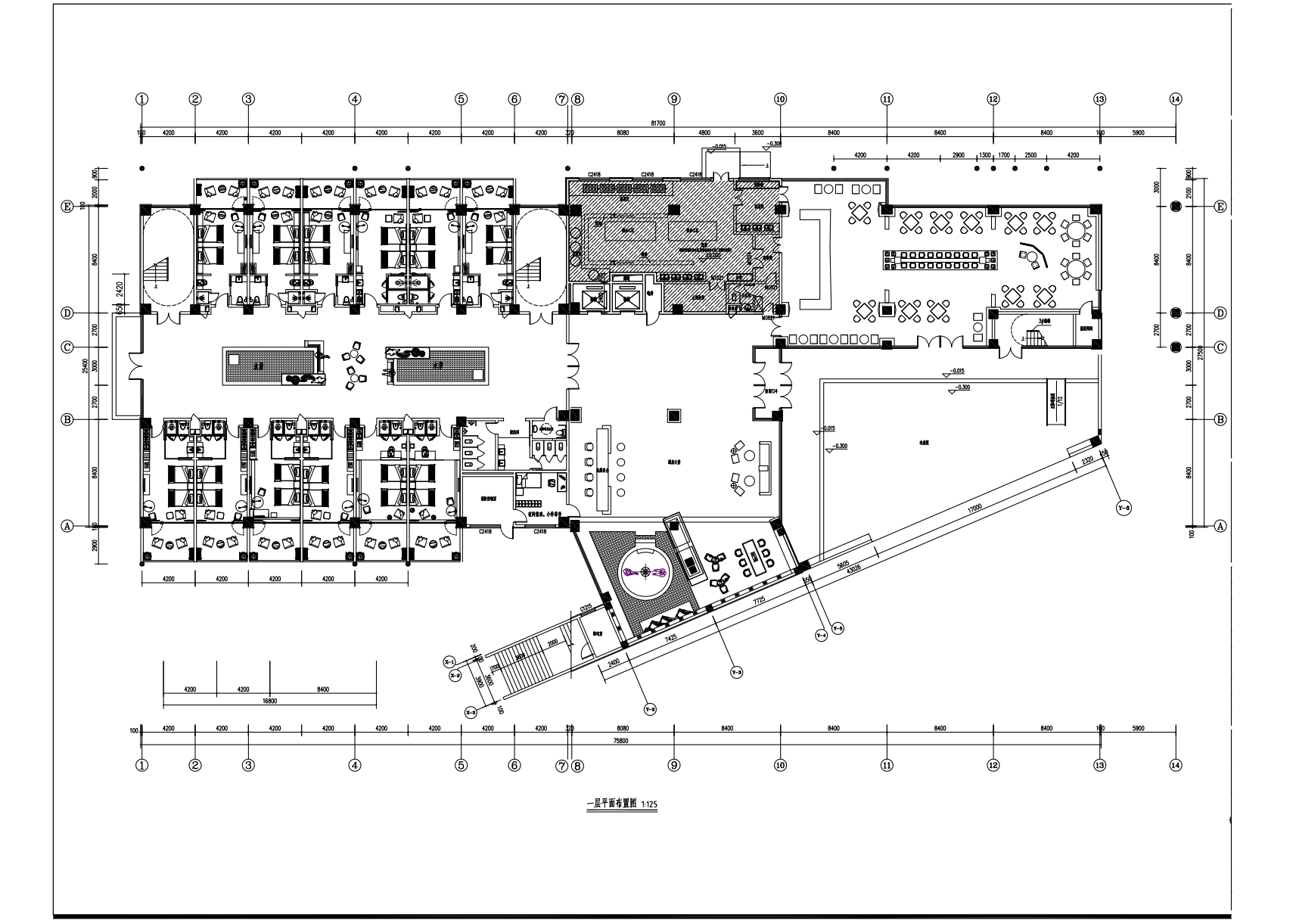
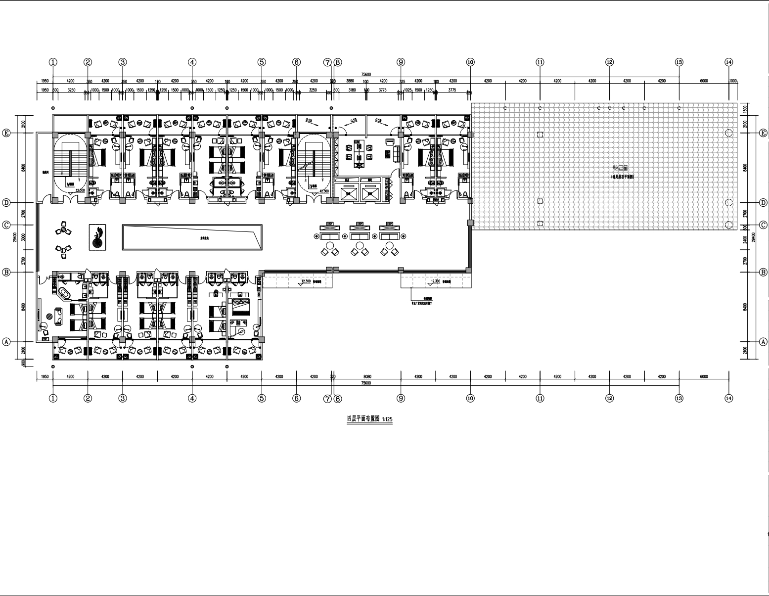
空间布局:户外景观视角优化
精心设计酒店建筑的朝向和布局,确保客房和公共区域能够拥有最佳的景观视角。将客房布置在面向景区核心景观的一侧,通过合理的窗户设计,让客人可以躺在床上或坐在沙发上就能欣赏到最美的风景。
在酒店的屋顶、露台等高处设置观景平台,为客人提供俯瞰景区全景的绝佳视角。观景平台可以配备望远镜、休闲座椅等设施,让客人可以尽情欣赏景区的壮丽景色。
雨水收集与循环利用系统
建立雨水收集系统,收集酒店屋顶、地面等区域的雨水,经过处理后用于酒店的绿化灌溉、景观用水等。例如,在酒店建筑的屋顶设置雨水收集槽,将雨水引入地下蓄水池,经过过滤、净化等处理后,通过灌溉系统用于浇灌室内外的植物。 -
设计选材:由于项目地处景区附近,海拔较高且占地面积广阔,节能减排成为我们项目的首要考虑因素。在酒店的热水供应方面,我们采用了太阳能与空气能相结合的系统。我们安装了两个容量为12吨的水箱,并在水箱中集成了水质净化和软化功能。鉴于高原地区晴朗天气较多,太阳能储水系统基本上能够满足酒店的热水需求,这大大降低了整体能耗,有效实现了节能目标。
-
用户体验:酒店于开业后的5个月内,成功举办了91场会议,受到了社会各界人士的好评,政府给予了“独一无二,不可复制。珠联璧合,相得益彰”的高度评价。

