-
项目定位:项目位于榕城核心地段——香格里拉八匚汇,是一家位于福州的潮州菜馆,建筑外围的环形水面,在微风中泛起潋滟波光,如潮水欲来之际的静默淡然,包裹着郁郁葱葱的山景,在熙攘的闹市里,与福州地标白塔遥遥相望,四顾无声。
自然意象开篇
取其“声、形、光、韵”
“潮”,取形与声之意,是苏轼词中的“白露横江,水光接天",是"桂棹兮兰桨,击空明兮溯流光"的开阔与豪放;亦是“声驱千骑疾,气卷万山来”与“岸边草木静,潮汐声悠悠”的节律起落。
“滟”,水面波光,潋滟成辉,潮起潮落间激起的万千落珠,随光而灼灼,亦如空间铺陈的规则,设计构筑潮水般层层叠进的形态美感,光为其勾勒波动的生命力。
“潮滟”以“美是食的世界观”为理念,定位“精致潮宴”,将潮菜之鲜,化入对形与色的考究理解,外放至空间场所的“潮”式表达。
入内而行,经幽静的廊道转入开阔的前庭,外与内的转化过程中,一收一放,巧妙地唤起感官的兴奋,场景如画卷般随步伐舒展,又如文言的絮语,款款道之,层次渐朗。
-
空间意境:原建筑玻璃顶面积过大,设计通过缩小顶部采光面的方式,收拢日照阳光,并设置电动帘布滤光,控制空间在不同时节下的舒适度。而大面积光照容易导致空间层次单一,设计在保留其丰沛照明条件的同时,分化光线的侵入路径,以达到明亮舒适,且层次分明的采光效果。
这种光影关系在层叠的大理石置景中,得到分明的呈现,从而形成由上及下,由外及内的设计语言,给予空间从平面至立面的层级变换。
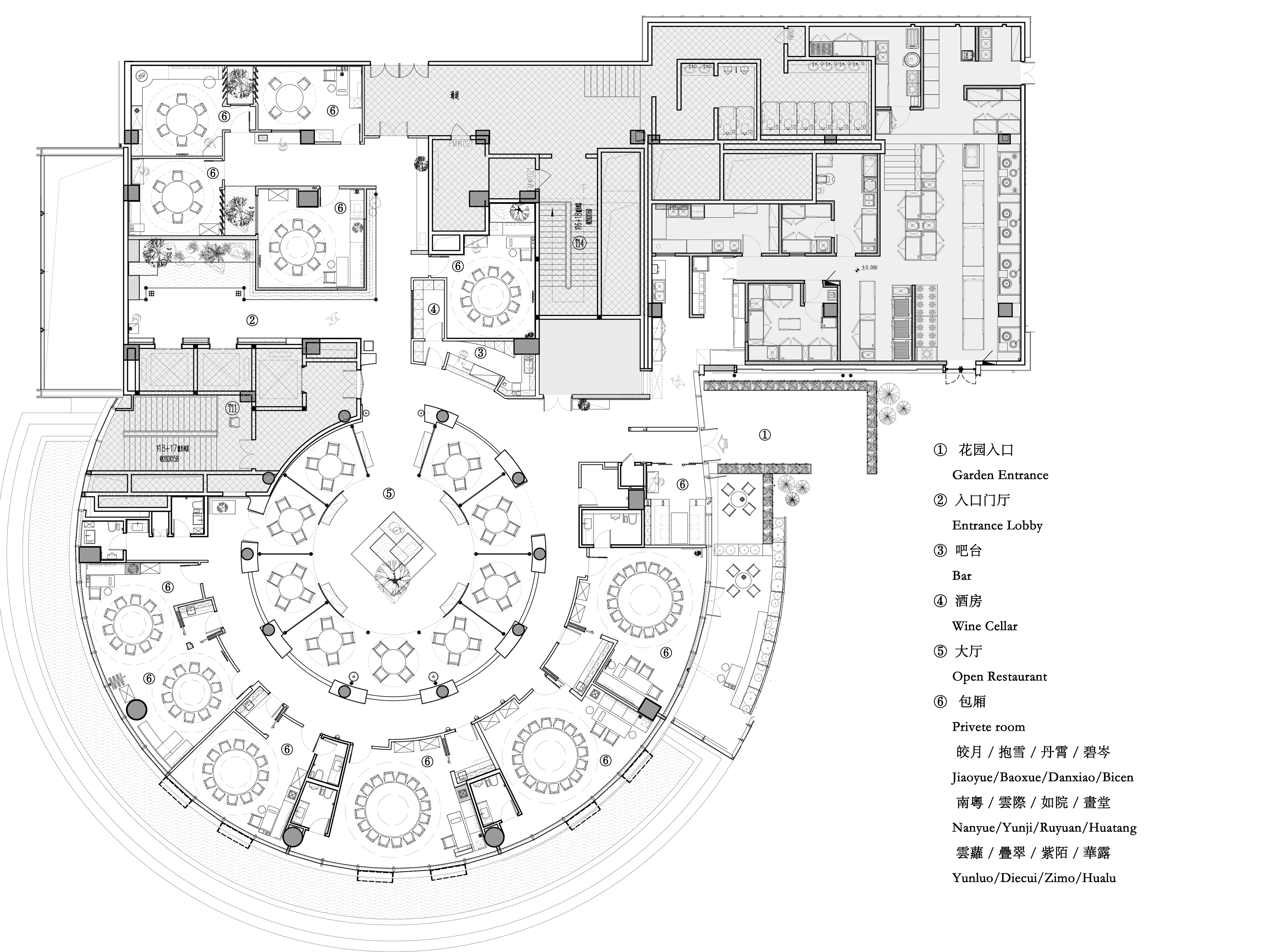
通过对于空间关系的梳理与分析,首当其冲的是原始空间的大厅中心围合着的八根圆柱,其粗状的柱体形成的强烈存在感,成了空间设计需要重点去化解的问题或对象,也是圆形大厅的设计难点所在。
设计希望在保持原建筑序列感的同时,能够弱化柱体带来的巨大存在感。于是通过包饰的手段,将圆柱进行平面化处理,形成片墙与屏风的视觉感。同时,在大体块的空间中,置入细柱分化出小空间,将大场景不断的切分,并加入不少造型层次与细节,不断丰富与细化空间的视觉效果与颗粒度。
-
空间布局:潮起,澎湃波涛刹那汹涌;
潮落,碧波荡漾静谧无声。
关于潮起潮落的印象画面,被矩阵排列的玉石幕墙记录,透光泛黄的光晕,时刻提醒着空间的主题。
设计在空间上做抽象化、碎片化的关键词处理,元素被反复提及,又隐入建筑的形式中,通过控制色彩、明度、形态间的比例关系,形成和谐同频的感知状态。
如果拆出各处场景来看,每个小空间都不是主体场景的依附,而是各自呈现独立的景观小品,表达着各不相同的文人雅韵。而当聚合而来,又组成一副完整的山水画卷,山峦、流水与云雾和衷共济,组合成如国画般深缈的意境。
潮水连绵,波澜壮阔。设计提取其抽象化的场景概念,根植入空间整体叙述性的脉络中。这种层层递进,互为衬托又各呈对比的关系,化形为具体可感的场景状态:收与放、封闭与开阔、明与暗、静谧与喧嚣......
从前厅移步到中心圆形大厅,景色徐徐展开,是由紧至松的空间关系;从圆形大厅,到环形过道,再到外环形包厢,是从内到外的层次关系;再从位于大厅半开放的就餐落座到各自独立存在的包房,是聚与散的形态关系……在种种关系的繁杂交错中,赋予了场景独特的艺术气质与空间气韵.
-
设计选材:包厢茶座的背景屏风,宛如鱼皮精美的纹理与质感,犹如细致的刺绣,又洽和潮水中奋力巡游的鱼儿,溅起的滟滟水珠辉映自然的点点星光,在浪潮中不断闪烁。
13间包厢沿建筑的结构依次排布,各不相同,提供丰富有致的就餐体验。沿窗的空间因朝向与时节的不同,带来窗景的差异变化;向内的空间则布置以不同的功能属性,例如茶室空间文雅细腻的宋式气韵;例如枯山水置景配合淙淙水声化为静谧的疗愈所;又如独特的壁炉包厢,在冬日也别有一番意趣……四时四季、白日夜晚、主客尽欢。
-
用户体验:从项目的命名出发,文字化形,潮起潮落的自然意象为索引。项目立足当代审美语言,糅合传统美学意象,新与旧,承与续,艺术与现实,古典与新锐……时间与空间的不断交织,汇成共生的建筑语言,如潮汐的蓬勃,浩瀚有力、波澜壮阔,又沉静无言。
0
0

认证 · 让您身份增值
356