枕山栖谷



作品说明
- 项目类型:别墅
- 项目地点:宜宾市
- 建筑面积:772.0000㎡
- 项目造价:240.0000万元
- 主案设计师: 王晓樱
- 参与设计师:王晓樱
- 竣工时间:2024年1月
- 设计机构:宜宾集创装饰设计有限公司
-
项目定位:择一处诗文雅境,觅一方闲适所居,山野间的灵性滋养,让人们感知到自然意境之美。本案将侘寂美学与东方意境相结合,以原始自然的材料和纹理质朴的器皿,营造出浪漫诗意的度假别墅空间。
-
空间意境:设计承袭东方人文的历史沉淀,以“守艺人的避世生活”为起点,通过光影、材质与情绪的表达,实现自然与制器生活的完美融合。
-
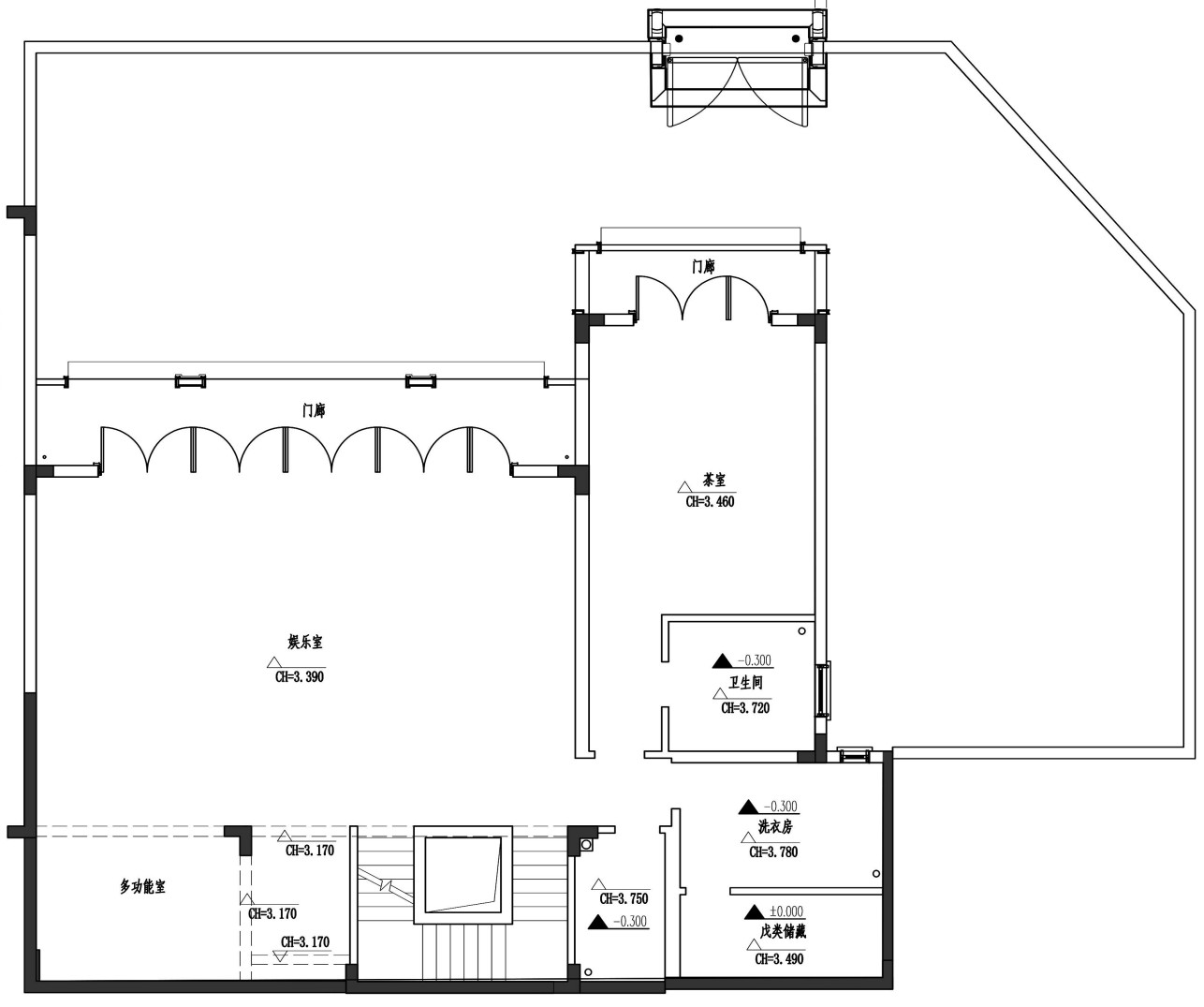
空间布局:1.将书画区与卫生间打通,并调整室外进门方向,形成合理的、便捷的行动路径;
2.拆除多功能室的多于墙体,打造成开放式的水吧区;
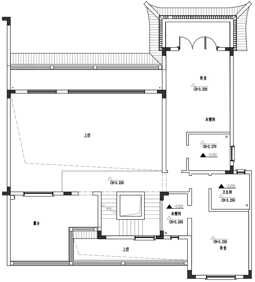
3.重新规划三楼原始空间布局,将空间拆分成两间卧室,形成合理的规划布局。 -
设计选材:瓷砖、金属、岩板、艺术漆、木饰面
-
用户体验:一室禅意古朴贯穿空间,满足了居者的设计要求
简约的空间形制,以藤编屏风半通透的材料属性,为场域保留了恰当的贯穿感。传统而温馨的圆桌,通过氛围光源与具有中式雅韵的枯叶挂饰,给予人一种回归自然、俯仰自得的圆融自在感。
建筑承袭中式府邸的传统对称性布局,再现威仪大气的礼序空间。设计将高墙深院、白墙黛瓦,飞檐翘角与现代生活气息糅为一体,摹写出雅隽清逸的人文底色,呈现独具东方气韵的园林空间。
院中庭院凝聚着传统园林的精粹,设计以自然、闲适为理念,巧妙运用竹、石与几何形纹元素,营造出独具匠心的中式美学意境。
棋牌室运用自然材质与光影变化,贯续东方气韵同现代理念的交融渗透,临窗以木质窗框为镜头,在捕捉生活瞬间的同时,围合出一方专属区域,或慢煮时光,或细烹雪月。
卧室颉取清雅碧玉糅合点缀,传统的木质窗柩以套方锦花格图案,与光影铺设下的静谧氛围相映衬,质感与温度的并存,使素雅简净的居住格调,舒缓疲于都市节奏的身心。
隐去传统中式繁复沉重的设计表现与具象形态,通过大量留白与弧形沙发相映衬,优雅意境与自在雅趣就此而生。斜屋顶以木材质的运用与床头凹格形成呼应,结构与质感的交织,形成温润且多样的空间层次。
信步徜徉于宽敞的公区,在空间构筑中融入朴直侘寂、简素净雅的表现手法,借景于不同的转角、间隙,营造出移步异景、场景多元的空间体验。
开放式的水吧设计,以中岛台构建洄游动线,促成光影在空间中灵活游走。一侧切缺打破沉闷,在暖光的掩映下,与拙朴的肌理形成共鸣。

