设计了一个洄游动线的洗浴中心!



作品说明
- 项目类型:住宅公寓
- 项目地点:上海市
- 建筑面积:96.0000㎡
- 项目造价:81.0000万元
- 主案设计师: 王玉洁
- 参与设计师:王玉洁
- 竣工时间:2023.05.25
- 设计机构:上海臻言室内设计有限公司
-
项目定位:本次设计立意在于打造一个既满足四口之家当前生活需求,又兼顾未来成长变化,同时兼顾美观与实用性的理想家居环境。通过优化空间布局,创造出流畅的洄游动线,提升了家居生活的便捷性和舒适度。设计注重细节,如独立玄关的设置满足了特殊时期的消杀需求,而开放式厨房与餐厅的结合则增强了家庭成员间的互动。在卧室和卫浴设计中,充分考虑了公平性和私密性,确保两个女儿拥有相同大小的房间和个性化的空间。同时,利用斜屋面夹角等空间,创造出额外的储物空间,满足了家庭物品的收纳需求。整体设计以奶油色涂料、原木色和白色为主色调,营造出温馨、舒适、放松的家居氛围,让一家人在忙碌的生活中也能找到属于自己的宁静角落。
-
空间意境:在环境风格上的创新点主要体现在以下几个方面:首先,利用顶楼复式的独特优势,通过精心设计的洄游动线,巧妙地将各个功能区连通,既保证了空间的私密性,又增强了便利性。奶油色涂料、原木色与白色柜子和地板的搭配,以及焦糖色沙发,营造出一种慵懒放松的氛围,让家成为一家人休闲放松的理想场所。其次,在细节处理上,采用了嵌入式晾衣架、耐污板墙面、磁吸配件等创新设计,既满足了实际需求,又提升了空间的整洁度和美观度。此外,还巧妙地利用楼梯下方空间打造玄关柜,以及将阳台窗户改为大扇固定落地窗,引入更多自然光,让室内更加明亮通透。最后,在二楼的设计中,特别注重了公平性和个性化需求的平衡,通过相同的家具、床品和天窗设计,满足了姐妹俩对于平等空间的渴望,同时又在床头小摆件等细节上体现出她们的不同喜好,让整个家既和谐又充满个性。
-
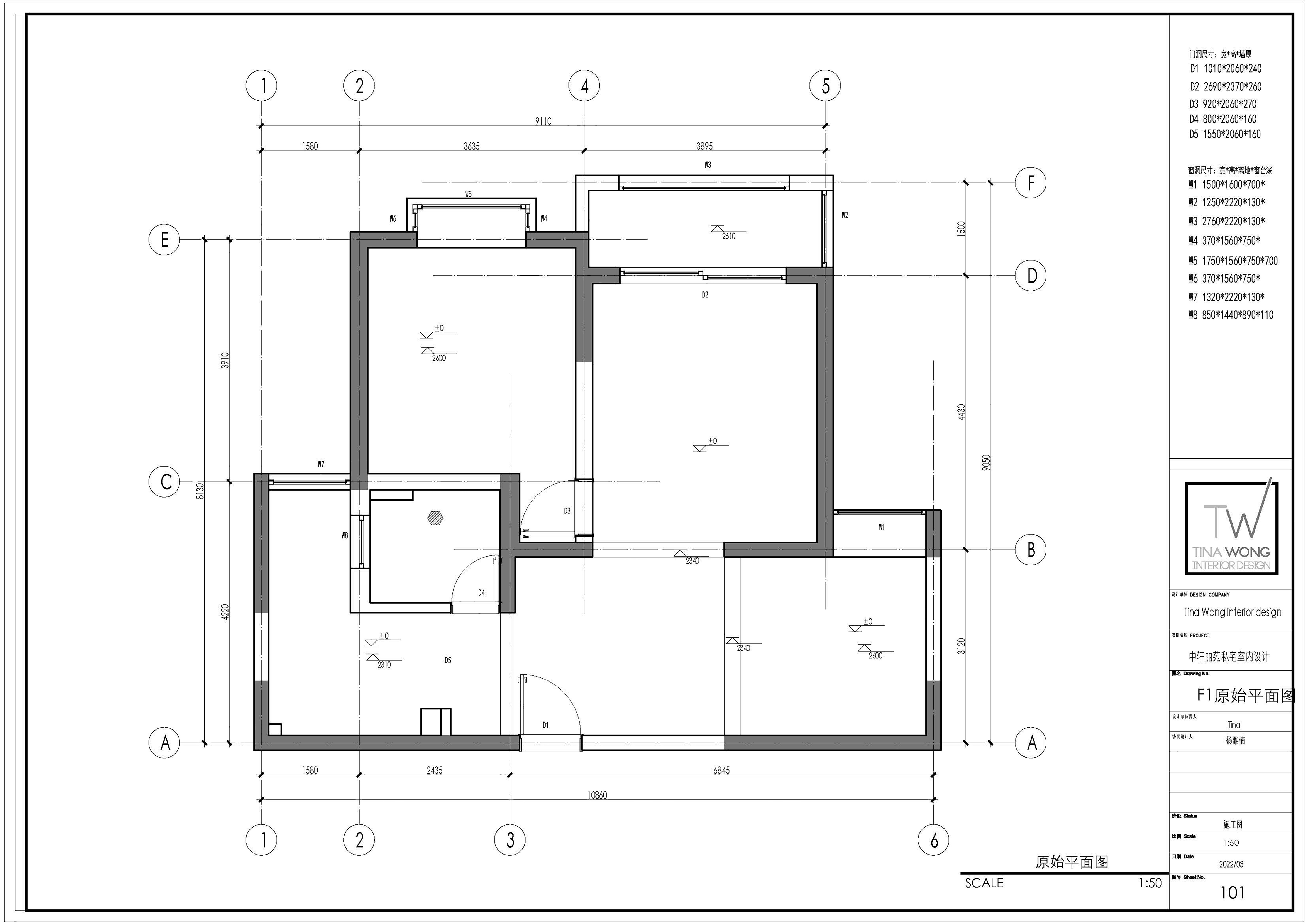
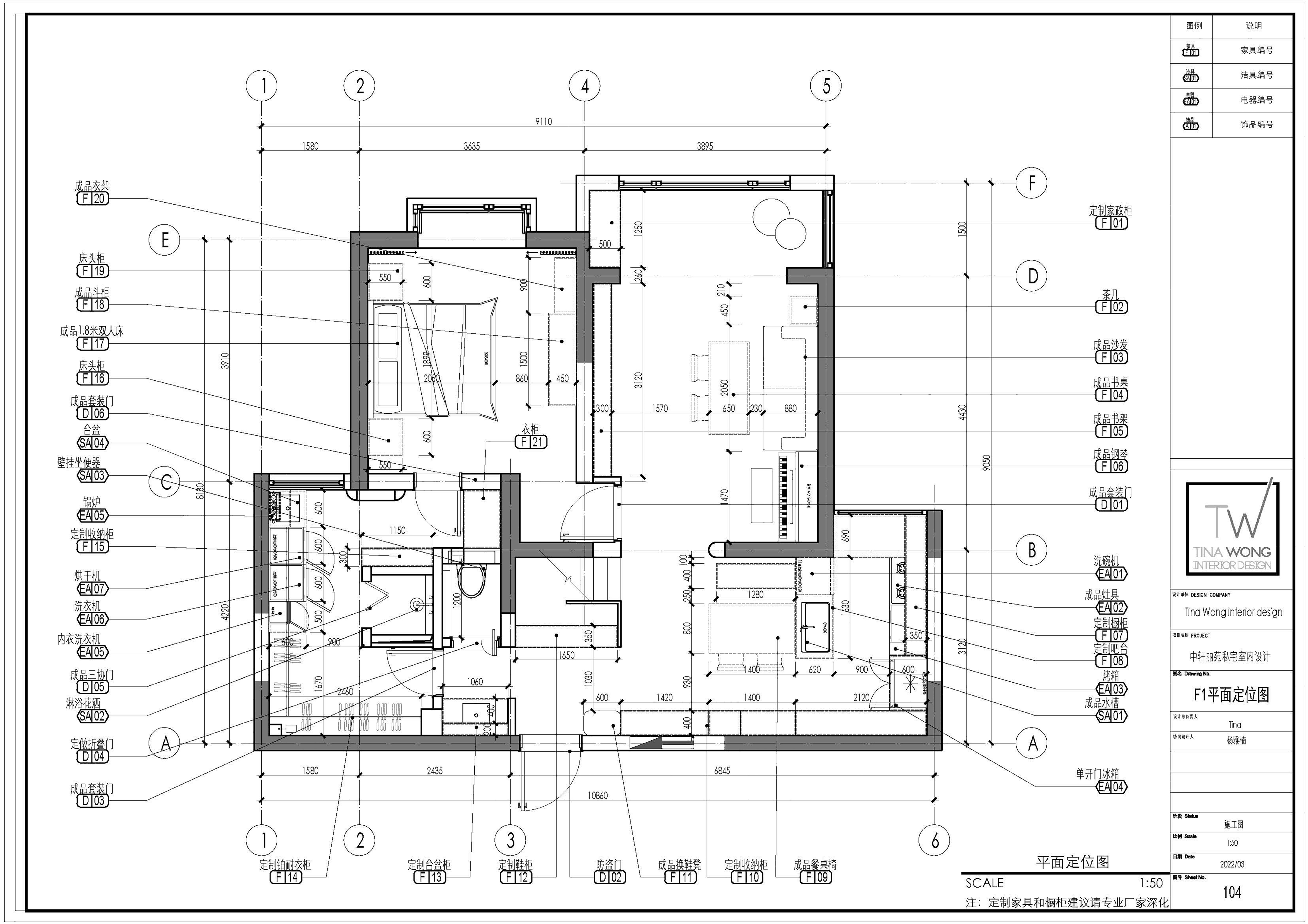
空间布局:1洄游动线设计:设计师围绕T形承重墙,巧妙地设计了一个大型洄游动线,实现了卧室、卫生间、洗衣房、衣帽间的连通,既保证了空间的四通八达,又满足了家庭成员对隐私和便利性的双重需求。这一设计不仅优化了空间利用,还提升了居住体验。
2厨房与餐厅的结合与改造:原厨房位于东侧,距离餐厅较远,设计师将其改至西侧,并采用开放式厨房布局,增强了家庭成员间的互动。同时,在客餐厅间的柱子上打造了一个窗洞,使厨房与餐厅之间的视线得以连通,增加了空间的通透性和趣味性。
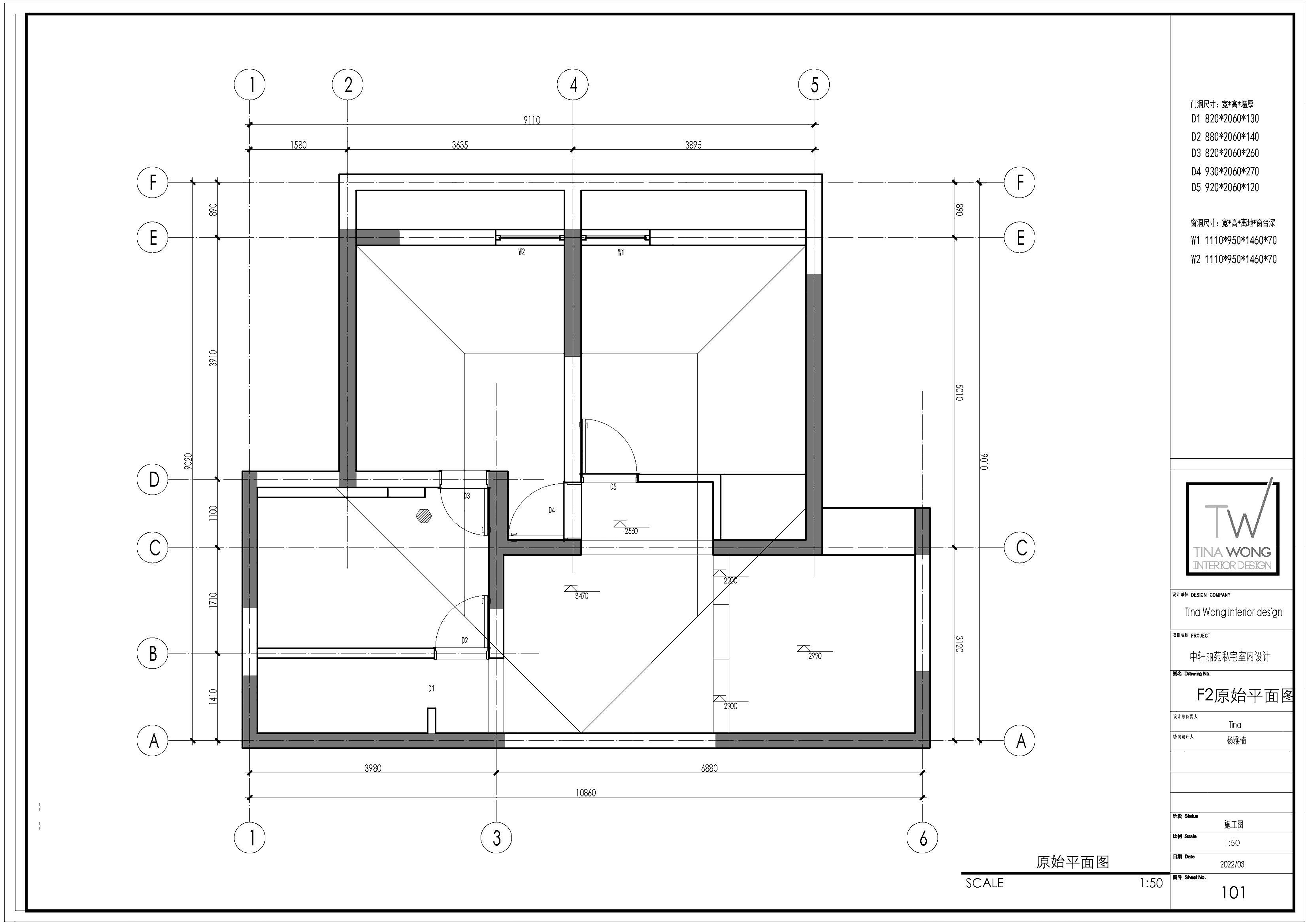
3二楼卧室与公共区域的平等与个性化设计:为了满足两个女儿对公平性的需求,设计师在二楼卧室的设计上力求一致,包括房间大小、家具、床品以及天窗等,都保持相同。同时,通过床头小摆件等个性化元素,展现出姐妹二人的不同喜好。此外,二楼还设置了公共区域,包括工作区、西橱柜和卫浴空间等,既满足了家庭成员的各自需求,又促进了家庭互动。
3多功能收纳空间的创新利用:设计师在空间中巧妙地设置了多个多功能收纳空间,如楼梯下方的玄关柜、一楼和二楼的卫生间及洗浴区的收纳柜、临时收纳间等,这些空间不仅满足了家庭成员的收纳需求,还提高了空间的利用率和整洁度。
3细节设计的创新:如利用三协门和骊住折叠门等创新产品,实现了空间的灵活分隔和高效利用;在阳台窗户上安装了垂直帘,增加了空间的温柔浪漫气氛;在厨房墙面使用了整面耐污板,不仅易于清洁,还方便磁吸配件的吸附和使用等。这些细节设计不仅提升了空间的实用性和美观性,还体现了设计师对居住体验的深刻理解和关注。 -
设计选材:选材方面注重实用与美观的结合。厨房墙面采用了整面耐污板,不仅易于清洁,还能利用磁性吸附厨具配件,非常适合厨房高油污的环境。卫生间则选用了三协门和骊住折叠门,前者轻薄防水不占空间,后者隔音效果好且风格搭配整体。浴室地面做下沉处理,并选用防滑材料。客厅与卧室墙面使用奶油色涂料,搭配原木色和白色的柜子和地板,营造出慵懒放松的氛围。此外,还选用了垂直帘、嵌入式晾衣架、蒸烤一体灶、直饮水机等多种实用家居产品,以及小火柴的手工珠光砖等装饰性材料,提升了空间的实用性和美观性。
-
用户体验:最让我满意的是那个洗浴中心的设计,从洗手池到洗浴区,再到洗衣晾衣区,动线流畅得不得了。用起来很方便,真是太感谢设计师了

